Chiltern Close, West Green
AS

Chiltern Close, West Green

By Astons

£ 339,950

Reviews

3 out of 5 stars

Astons says ..

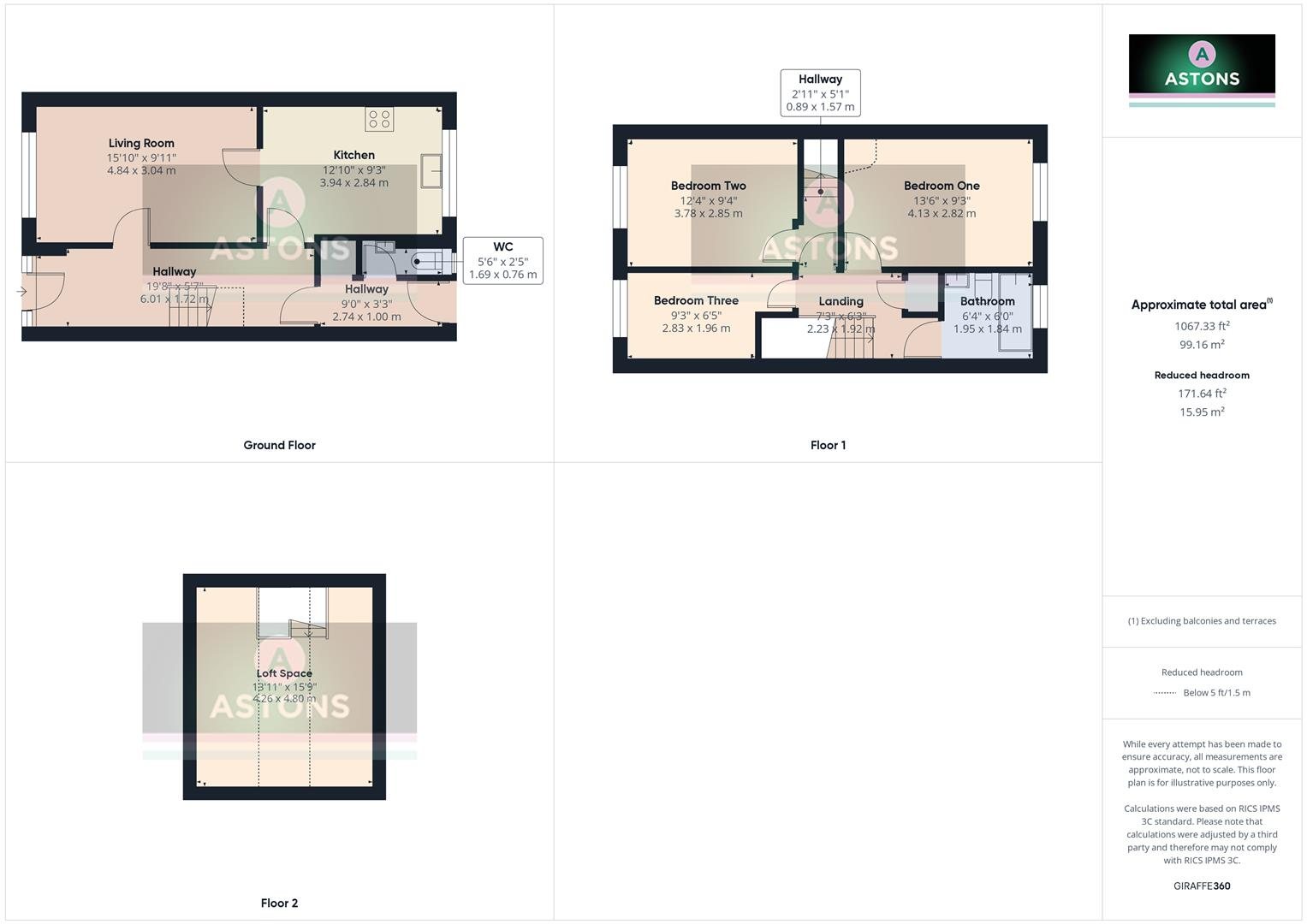
Astons are pleased to offer to the market this well presented three bedroom house which is ideally located in a close opposite a small green area. The property is centrally located close to the town centre in Crawley, local amenities, train station and bus routes. The house has been impr...

Property Oracle says ..

The property is a 3-bedroom, 2-bathroom house with a total area of 2,505.09 sqft. It is situated in West Green, Crawley, and is listed at £339,950. The property benefits from a private rear garden. The interior appears to be in good condition, with a modern and well-maintained kitchen and bathrooms. The location offers proximity to several amenities, including schools with good Ofsted ratings and convenient access to transport links. Considering the area’s average price and price per sqft, the listed price appears competitive, especially given the property’s larger size and good condition.

Therefore, we give this property 7 / 10. *Disclaimer: This is our option and does constitute a recommendation or financial advice. Do your own research. *

Price
8
Condition
8
Location
8
Land
7
Bedrooms
3
Bathrooms
2
Sqft (est)
2,505.09

The heatmap indicates the level of crime in the area. The color of the heatmap indicates the crime severity and recency.

Metrics Year-on-Year

Average area value
330,889.00 £
Increased by 3.04 %
from 321,125.00 £
Est sale value
1,169,877.03 £
Increased by 11.72 %
from 1,047,127.62 £
Average area rental value
1,354.00 £/mo
Decreased by 16.83 %
from 1,628.00 £/mo
Est letting value
2,505.09 £/mo
Decreased by 50.00 %
from 5,010.18 £/mo
Est rental Yield
4.91 %
Decreased by 19.24 %
from 6.08 %
Crime Rate
5.00 %
Unchanged by 0.00 %
from 5.00 %

Agent Activity

  • Astons created the listing.

Nearby Schools

NameTypeOfstedDistance
St Wilfrid'S Catholic Comprehensive School, CrawleyVoluntary Aided SchoolGood0.54 KM
West Green Primary SchoolCommunity SchoolGood0.77 KM
Ifield Community CollegeCommunity SchoolGood0.78 KM
Manor Green Primary SchoolCommunity Special SchoolOutstanding0.83 KM
St Margaret'S Cofe Primary SchoolVoluntary Aided SchoolRequires improvement0.83 KM

Images

CAM02202G0-PR0494-STILL019.jpg CAM02202G0-PR0494-STILL003.jpg CAM02202G0-PR0494-STILL004.jpg CAM02202G0-PR0494-STILL005.jpg CAM02202G0-PR0494-STILL006.jpg CAM02202G0-PR0494-STILL001.jpg CAM02202G0-PR0494-STILL002.jpg CAM02202G0-PR0494-STILL010.jpg Bedroom Two Bathroom CAM02202G0-PR0494-STILL011.jpg CAM02202G0-PR0494-STILL013.jpg Loft Space CAM02202G0-PR0494-STILL017.jpg CAM02202G0-PR0494-STILL018.jpg CAM02202G0-PR0494-STILL021.jpg Bedroom Three Loft Space CAM02202G0-PR0494-STILL015.jpg CAM02202G0-PR0494-STILL016.jpg

Nearby Streets

NameAverage PriceAverage SqftDistance
Chiltern Close £ 330,00000.00 KM
Garden Walk £ 149,75000.00 KM
Park View £ 425,00000.00 KM
Thornhill £ 000.00 KM
The Spinney £ 000.00 KM

Nearby Transport

NameNLCTLCDistance
Ifield5495IFI1.25 KM
Crawley5484CRW1.89 KM
Three Bridges5491TBD4.68 KM
Gatwick Airport5416GTW6.59 KM
Faygate5493FGT6.91 KM

Nearby Listings

AddressPriceTypeScoreDistance
Chiltern Close, West Green £ 339,950BUY7 / 100.00 KM
Chiltern Close, Crawley, RH11 £ 325,000BUY7 / 100.02 KM
Westfield Road, West Green, Crawley, West Sussex, RH11 7BT £ 450,000BUYUnknown0.09 KM
Westfield Road, West Green, Crawley, West Sussex, RH11 £ 450,000BUY6 / 100.12 KM
Cotswold Close, West Green, Crawley, West Sussex, RH11 £ 350,000BUY6 / 100.12 KM

Nearby Properties

AddressPriceDistance
38 Chiltern Close £ 330,0000.04 KM
44 Chiltern Close £ 304,0000.04 KM
20 Chiltern Close £ 285,0000.04 KM
4 Chiltern Close £ 326,5000.07 KM
40 Chiltern Close £ 224,0000.07 KM