Pitick Terrace, Flushing, TR11
By Heather & Lay
£ 575,000
Reviews
2 out of 5 stars
Heather & Lay says ..
Pitick is a much admired short terrace of six Victorian houses, enviably situated fronting the harbour and with the most spectacular and engaging views along the waterfront across to Falmouth.
Property Oracle says ..
This property is a terraced house located in Flushing, Cornwall. It benefits from a waterfront location and is within walking distance of local amenities and schools, including Flushing School (rated Good by Ofsted). The property is in need of some modernisation, as seen in the photos, but retains some traditional character. The list price is slightly above the average for the area, but comparable properties in the vicinity are priced similarly, suggesting the asking price is reasonable considering its location and size. The lack of plot size is a drawback, but this is typical for terraced houses in this area.
Therefore, we give this property 5 / 10. *Disclaimer: This is our option and does constitute a recommendation or financial advice. Do your own research. *
- Price
- 7
- Condition
- 6
- Location
- 9
- Land
- 1
- Bedrooms
- 2
- Bathrooms
- 1
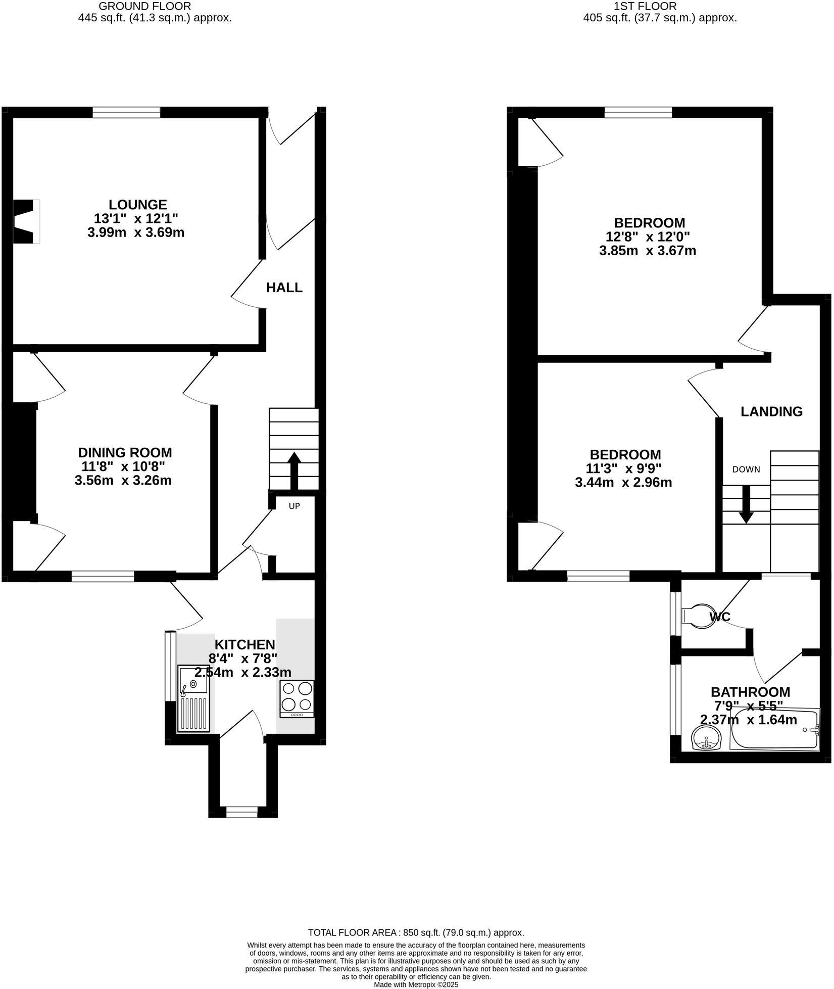
- Sqft (est)
- 850.00
The heatmap indicates the level of crime in the area. The color of the heatmap indicates the crime severity and recency.
Metrics Year-on-Year
- Average area value
- 856,250.00 £Increased by 50.90 %
- Est sale value
- 379,950.00 £Increased by 25.21 %
- Average area rental value
- 1,750.00 £/moIncreased by 16.43 %
- Est letting value
- 0.00 £/mo
- Est rental Yield
- 2.45 %Decreased by 22.96 %
- Crime Rate
- 1.00 %Unchanged by 0.00 %
Agent Activity
Heather & Lay created the listing.
Nearby Schools
| Name | Type | Ofsted | Distance |
|---|---|---|---|
| Flushing School | Voluntary Controlled School | Good | 0.15 KM |
| Falmouth Primary Academy | Academy Sponsor Led | Good | 1.30 KM |
| Falmouth & Penryn Children'S Centre | Children's Centre | 1.46 KM | |
| Falmouth University | Higher Education Institutions | 1.54 KM | |
| King Charles Primary School | Academy Converter | 1.66 KM |
Images
Nearby Streets
| Name | Average Price | Average Sqft | Distance |
|---|---|---|---|
| River View | £ 750,000 | 0 | 0.00 KM |
| Mulberry Passage | £ 0 | 0 | 0.00 KM |
| Free Steps Ope | £ 0 | 0 | 0.00 KM |
| Fountain Ope | £ 0 | 0 | 0.00 KM |
| Fish Strand Quay | £ 0 | 0 | 0.00 KM |
Nearby Transport
| Name | NLC | TLC | Distance |
|---|---|---|---|
| Falmouth Town | 3591 | FMT | 1.71 KM |
| Falmouth Docks | 3508 | FAL | 2.04 KM |
| Penmere | 3499 | PNM | 2.06 KM |
| Penryn (Cornwall) | 3525 | PYN | 4.72 KM |
| Perranwell | 3528 | PRW | 7.57 KM |
Nearby Listings
| Address | Price | Type | Score | Distance |
|---|---|---|---|---|
| Pitick Terrace, Flushing, TR11 | £ 575,000 | BUY | 5 / 10 | 0.00 KM |
| Flushing, Nr. Falmouth, Cornwall | £ 625,000 | BUY | 7 / 10 | 0.01 KM |
| Trefusis Road, Flushing, TR11 | £ 500,000 | BUY | 6 / 10 | 0.07 KM |
| Rose Cottage, 57 Trefusis Road, Flushing, Falmouth TR11 5TZ | £ 500,000 | BUY | 6 / 10 | 0.07 KM |
| 17 Trefusis Road, Flushing, TR11 | £ 425,000 | BUY | 6 / 10 | 0.08 KM |
Nearby Properties
| Address | Price | Distance |
|---|---|---|
| 5 Pitick Terrace | £ 395,000 | 0.01 KM |
| 56 Trefusis Road | £ 235,000 | 0.07 KM |
| 29 Trefusis Road | £ 225,000 | 0.07 KM |
| 60 Trefusis Road | £ 277,500 | 0.07 KM |
| 37 Trefusis Road | £ 388,000 | 0.07 KM |