Nine Mile Ride, Finchampstead, WOKINGHAM
By Barnard Marcus
£ 699,000
Reviews
3 out of 5 stars
Barnard Marcus says ..
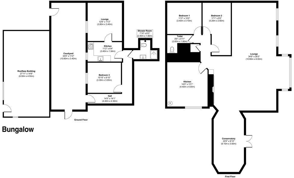
AUCTION SALE 16 December 2025 - Freehold site comprising three dwellings requiring updatingFurther site development potentialSite area approx. 0.68 acresPrivate Lane and semi-rural locationFull vacant possession
Property Oracle says ..
This is a detached bungalow located on Nine Mile Ride, Finchampstead, Wokingham. The property requires extensive renovation but offers a large plot of land. The property is situated in a location with access to schools and transportation. The listing price is £699,000.
Therefore, we give this property 6 / 10. *Disclaimer: This is our option and does constitute a recommendation or financial advice. Do your own research. *
- Price
- 7
- Condition
- 3
- Location
- 7
- Land
- 9
- Bedrooms
- 6
- Bathrooms
- 3
- Lot (est)
- 184,000.00
The heatmap indicates the level of crime in the area. The color of the heatmap indicates the crime severity and recency.
Metrics Year-on-Year
- Average area value
- 1,516,667.00 £Increased by 102.87 %
- Average area rental value
- 2,250.00 £/moDecreased by 16.20 %
- Est rental Yield
- 1.78 %Decreased by 58.70 %
- Crime Rate
- 0.00 %
Agent Activity
Barnard Marcus created the listing.
Nearby Schools
| Name | Type | Ofsted | Distance |
|---|---|---|---|
| Bohunt School Wokingham | Academy Sponsor Led | Good | 1.27 KM |
| Gorse Ride Junior School | Community School | Requires improvement | 2.29 KM |
| Finchampstead Children'S Centre | Children's Centre | 2.49 KM | |
| Gorse Ride Infants' School | Community School | Good | 2.52 KM |
| Finchampstead Cofe Va Primary School | Voluntary Aided School | Good | 2.71 KM |
Images
Nearby Streets
| Name | Average Price | Average Sqft | Distance |
|---|---|---|---|
| Nuthatch Drive | £ 0 | 0 | 0.00 KM |
| Commonfield Lane | £ 0 | 0 | 0.00 KM |
| Lime Grove | £ 600,000 | 0 | 0.00 KM |
| Buttenshaw Close | £ 0 | 0 | 0.00 KM |
| Cook Way | £ 0 | 0 | 0.00 KM |
Nearby Transport
| Name | NLC | TLC | Distance |
|---|---|---|---|
| Wokingham | 5696 | WKM | 5.86 KM |
| Winnersh | 5697 | WNS | 5.97 KM |
| Winnersh Triangle | 5698 | WTI | 6.72 KM |
| Crowthorne | 5628 | CRN | 7.11 KM |
| Earley | 5694 | EAR | 8.14 KM |
Nearby Listings
| Address | Price | Type | Score | Distance |
|---|---|---|---|---|
| Nine Mile Ride, Finchampstead, WOKINGHAM | £ 699,000 | BUY | 6 / 10 | 0.00 KM |
| Nine Mile Ride, Finchampstead, WOKINGHAM | £ 745,000 | BUY | 5 / 10 | 0.00 KM |
| Nine Mile Ride, Wokingham, RG40 | £ 595,000 | BUY | Unknown | 0.01 KM |
| Nine Mile Ride, Finchampstead, Wokingham, Berkshire, RG40 | £ 795,000 | BUY | 8 / 10 | 0.14 KM |
| Nine Mile Ride, WOKINGHAM | £ 420,000 | BUY | 5 / 10 | 0.15 KM |
Nearby Properties
| Address | Price | Distance |
|---|---|---|
| Denewood | £ 715,000 | 0.00 KM |
| Pentre Stable | £ 755,000 | 0.00 KM |
| Rushmere Lodge | £ 401,000 | 0.00 KM |
| Santolina | £ 320,000 | 0.00 KM |
| 7a Nine Mile Ride | £ 747,500 | 0.25 KM |