Yarningale Road, Birmingham, West Midlands, B14
By Dixons
£ 375,000
Reviews
3 out of 5 stars
Dixons says ..
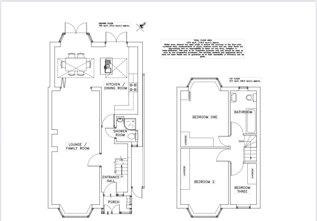
**** THREE BEDROOM **** SEMI DETACHED **** EXTENDED **** DRIVE WAY **** SCHOOL CATCHMENT **** This beautiful, family home is located in the vibrant suburb of Kings Heath. The wider area boasts thriving cafés, independent shops, and green spaces in nearby Highbury & Kings Hea...
Property Oracle says ..
This is a 3-bedroom semi-detached property located on Yarningale Road in Birmingham. The property benefits from a modern kitchen and updated bathrooms. While the property is in generally good condition, some areas could use some updating. It features a garden that requires some maintenance. The property is located near schools and transportation links. The asking price of £375,000 seems reasonable considering the square footage and recent renovations, but it’s on the higher end compared to some nearby listings.
Therefore, we give this property 6 / 10. *Disclaimer: This is our option and does constitute a recommendation or financial advice. Do your own research. *
- Price
- 6
- Condition
- 7
- Location
- 7
- Land
- 6
- Bedrooms
- 3
- Bathrooms
- 2
- Sqft (est)
- 1,272.00
The heatmap indicates the level of crime in the area. The color of the heatmap indicates the crime severity and recency.
Metrics Year-on-Year
- Average area value
- 258,571.00 £Decreased by 18.16 %
- Est sale value
- 417,216.00 £Increased by 11.95 %
- Average area rental value
- 1,230.00 £/moIncreased by 21.30 %
- Est letting value
- 1,272.00 £/mo
- Est rental Yield
- 5.71 %Increased by 48.31 %
- Crime Rate
- 5.00 %Unchanged by 0.00 %
Agent Activity
Dixons created the listing.
Nearby Schools
| Name | Type | Ofsted | Distance |
|---|---|---|---|
| Lindsworth School | Community Special School | Good | 0.86 KM |
| Allens Croft Nursery School | Local Authority Nursery School | Outstanding | 0.86 KM |
| Allens Croft Primary School | Community School | Good | 0.86 KM |
| Woodthorpe Junior And Infant School | Community School | Outstanding | 1.15 KM |
| Bells Farm Primary School | Community School | Outstanding | 1.27 KM |
Images
Nearby Streets
| Name | Average Price | Average Sqft | Distance |
|---|---|---|---|
| Oakwood Drive | £ 300,000 | 0 | 0.00 KM |
| Wilde Close | £ 0 | 0 | 0.00 KM |
| Bilberry Road | £ 0 | 0 | 0.00 KM |
| Pineapple Close | £ 0 | 0 | 0.00 KM |
| Kings Close | £ 0 | 0 | 0.00 KM |
Nearby Transport
| Name | NLC | TLC | Distance |
|---|---|---|---|
| Bournville | 1112 | BRV | 2.42 KM |
| Kings Norton | 1109 | KNN | 2.89 KM |
| Selly Oak | 1105 | SLY | 4.19 KM |
| University (Birmingham) | 4504 | UNI | 4.97 KM |
| Yardley Wood | 4537 | YRD | 5.77 KM |
Nearby Listings
| Address | Price | Type | Score | Distance |
|---|---|---|---|---|
| Yarningale Road, Birmingham, West Midlands, B14 | £ 375,000 | BUY | 6 / 10 | 0.00 KM |
| Yarningale Road, Birmingham, West Midlands, B14 | £ 375,000 | BUY | 7 / 10 | 0.01 KM |
| Yarningale Road, Birmingham, West Midlands, B14 | £ 365,000 | BUY | 6 / 10 | 0.01 KM |
| Yarningale Road, Kings Heath, Birmingham, B14 | £ 325,000 | BUY | 7 / 10 | 0.04 KM |
| Yarningale Road, Birmingham, West Midlands, B14 | £ 300,000 | BUY | 6 / 10 | 0.05 KM |
Nearby Properties
| Address | Price | Distance |
|---|---|---|
| 141 Yarningale Road | £ 225,000 | 0.00 KM |
| 121 Yarningale Road | £ 270,000 | 0.00 KM |
| 133 Yarningale Road | £ 265,000 | 0.00 KM |
| 123 Yarningale Road | £ 63,000 | 0.00 KM |
| 137 Yarningale Road | £ 260,000 | 0.00 KM |