PE
Withycombe Village Road, Exmouth, EX8 3BD
By Pennys
£ 475,000
Reviews
4 out of 5 stars
Pennys says ..
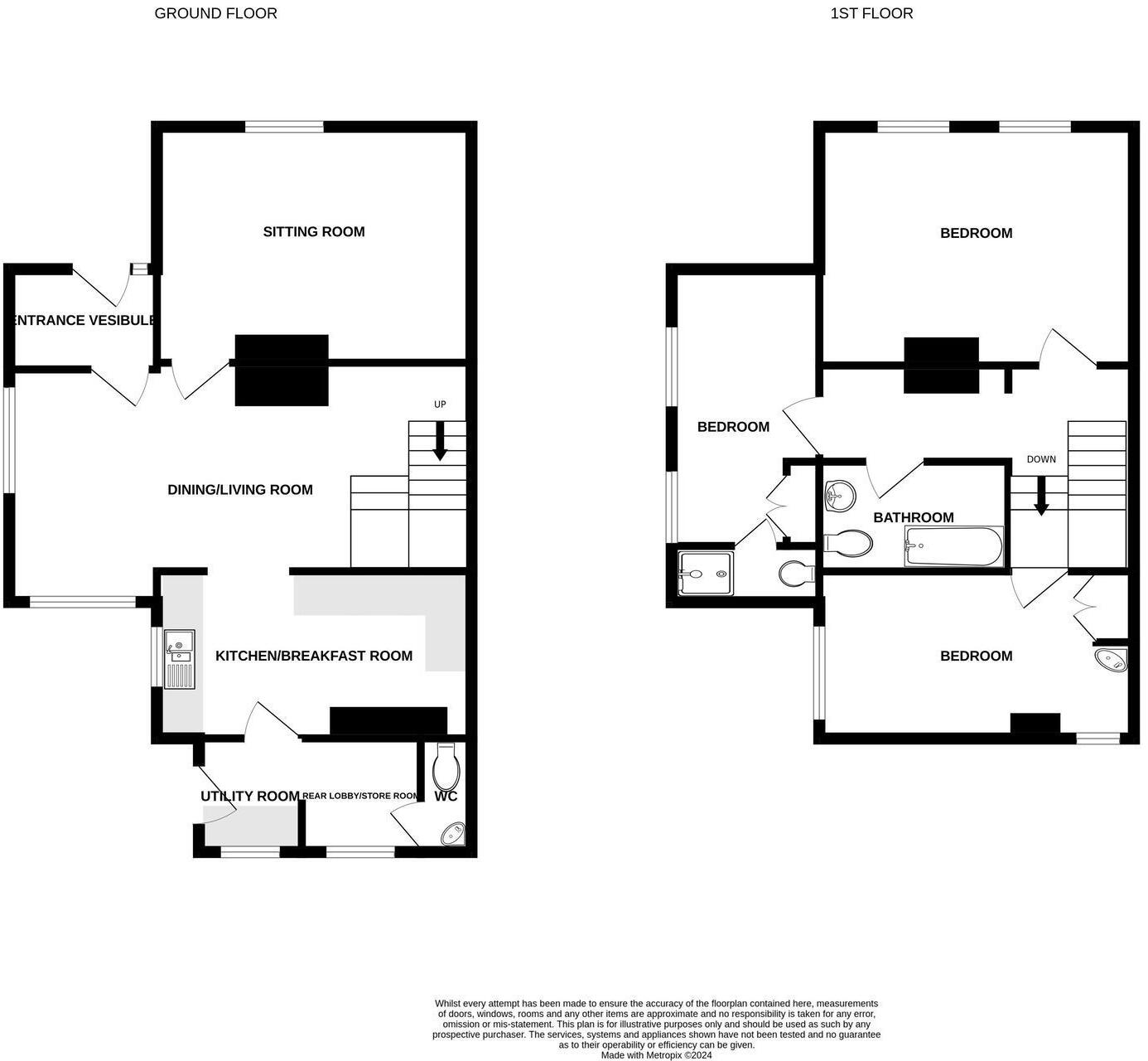
A Well Presented And Deceptively Spacious Semi-Detached Period House With Wonderful Generously Sized Gardens, Ample Off-Road Parking And Double Garage
Property Oracle says ..
Therefore, we give this property 8 / 10. *Disclaimer: This is our option and does constitute a recommendation or financial advice. Do your own research. *
- Price
- 7
- Condition
- 8
- Location
- 8
- Land
- 9
- Bedrooms
- 3
- Bathrooms
- 2
- Sqft (est)
- 1,173.00
The heatmap indicates the level of crime in the area. The color of the heatmap indicates the crime severity and recency.
Metrics Year-on-Year
- Average area value
- 322,940.00 £Decreased by 9.74 %
- Est sale value
- 445,740.00 £Increased by 6.44 %
- Average area rental value
- 1,284.00 £/moIncreased by 22.29 %
- Est letting value
- 1,173.00 £/moUnchanged by 0.00 %
- Est rental Yield
- 4.77 %Increased by 35.51 %
- Crime Rate
- 10.00 %Unchanged by 0.00 %
from 357,789.00 £
from 418,761.00 £
from 1,050.00 £/mo
from 1,173.00 £/mo
from 3.52 %
from 10.00 %
Agent Activity
Pennys created the listing.
Nearby Schools
| Name | Type | Ofsted | Distance |
|---|---|---|---|
| Exmouth & District Children'S Centre | Children's Centre | 0.21 KM | |
| Marpool Primary School | Foundation School | Good | 0.24 KM |
| Withycombe Raleigh Church Of England Primary School | Voluntary Controlled School | Good | 0.31 KM |
| Brixington Primary Academy | Academy Sponsor Led | Requires improvement | 0.94 KM |
| Exmouth Community College | Academy Converter | Requires improvement | 1.16 KM |
Images
Nearby Streets
| Name | Average Price | Average Sqft | Distance |
|---|---|---|---|
| St John's Road | £ 270,000 | 0 | 0.00 KM |
| Brook Meadow | £ 0 | 0 | 0.00 KM |
| Broad Park Road | £ 350,000 | 0 | 0.00 KM |
| School Lane | £ 0 | 0 | 0.00 KM |
| Park Terrace | £ 190,000 | 0 | 0.00 KM |
Nearby Transport
| Name | NLC | TLC | Distance |
|---|---|---|---|
| Exmouth | 5756 | EXM | 2.28 KM |
| Lympstone Village | 5761 | LYM | 4.36 KM |
| Starcross | 3413 | SCS | 5.71 KM |
| Lympstone Commando | 5762 | LYC | 6.11 KM |
| Dawlish Warren | 3409 | DWW | 6.29 KM |
Nearby Listings
| Address | Price | Type | Score | Distance |
|---|---|---|---|---|
| Withycombe Village Road, Exmouth, EX8 3BD | £ 475,000 | BUY | 8 / 10 | 0.00 KM |
| Withycombe Village Road, Exmouth | £ 575,000 | BUY | 6 / 10 | 0.04 KM |
| Withycombe Village Road, Exmouth, EX8 3BD | £ 310,000 | BUY | 6 / 10 | 0.04 KM |
| Forton Road, Exmouth, Devon | £ 335,000 | BUY | 7 / 10 | 0.11 KM |
| Brooklyn Park, Exmouth | £ 195,000 | BUY | 7 / 10 | 0.12 KM |
Nearby Properties
| Address | Price | Distance |
|---|---|---|
| 251 Withycombe Village Road | £ 190,000 | 0.01 KM |
| 243 Withycombe Village Road | £ 305,000 | 0.01 KM |
| 198 Withycombe Village Road | £ 368,000 | 0.01 KM |
| 204a Withycombe Village Road | £ 210,000 | 0.01 KM |
| 245 Withycombe Village Road | £ 270,000 | 0.01 KM |