Deronda Road, Herne Hill, London, SE24
By Pedder
£ 600,000
Reviews
3 out of 5 stars
Pedder says ..
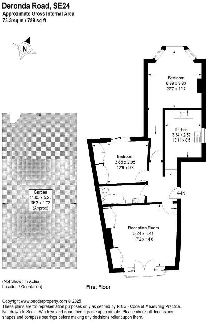
An unusually spacious two double bedroom split level flat on the middle floors of this attractive Victorian end of terrace home. The property is neutrally decorated throughout, has its own private section of rear garden and benefits from being a Share of Freehold. The accommodation compr...
Property Oracle says ..
This is a two-bedroom apartment in Herne Hill, London. The property is in good condition and benefits from a garden. The property is located in a desirable area with good access to transportation, schools, and local amenities. The property is listed for £600,000, which is slightly above the average price for the area, but the condition and garden justify the price. The property is approximately 788.99 sqft. The property is located close to several schools and transportation links.
Therefore, we give this property 7 / 10. *Disclaimer: This is our option and does constitute a recommendation or financial advice. Do your own research. *
- Price
- 7
- Condition
- 7
- Location
- 8
- Land
- 6
- Bedrooms
- 2
- Bathrooms
- 1
- Sqft (est)
- 788.99
- Lot (est)
- 119.00
The heatmap indicates the level of crime in the area. The color of the heatmap indicates the crime severity and recency.
Metrics Year-on-Year
- Average area value
- 418,111.00 £Decreased by 38.49 %
- Est sale value
- 504,164.61 £Decreased by 6.85 %
- Average area rental value
- 2,476.00 £/moIncreased by 11.08 %
- Est letting value
- 2,366.97 £/moIncreased by 50.00 %
- Est rental Yield
- 7.11 %Increased by 80.46 %
- Crime Rate
- 7.00 %Unchanged by 0.00 %
Agent Activity
Pedder created the listing.
Nearby Schools
| Name | Type | Ofsted | Distance |
|---|---|---|---|
| St Martin In The Fields High School For Girls | Academy Converter | Good | 0.45 KM |
| The Elmgreen School | Academy Converter | Good | 0.67 KM |
| Rosendale Primary School & Children'S Centre | Children's Centre | 0.77 KM | |
| Rosendale Primary School | Academy Converter | 0.87 KM | |
| Fenstanton Primary School | Community School | Good | 0.91 KM |
Images
Nearby Streets
| Name | Average Price | Average Sqft | Distance |
|---|---|---|---|
| Jemma Knowles Close | £ 0 | 0 | 0.00 KM |
| Neil Wates Crescent | £ 375,000 | 0 | 0.00 KM |
| Crosby Walk | £ 0 | 0 | 0.00 KM |
| Croxted Close | £ 0 | 0 | 0.00 KM |
| Bannister Close | £ 375,000 | 0 | 0.00 KM |
Nearby Transport
| Name | NLC | TLC | Distance |
|---|---|---|---|
| Tulse Hill | 5390 | TUH | 0.50 KM |
| Herne Hill | 5066 | HNH | 1.07 KM |
| West Norwood | 5438 | WNW | 1.41 KM |
| West Dulwich | 5086 | WDU | 1.63 KM |
| North Dulwich | 5429 | NDL | 2.27 KM |
Nearby Listings
| Address | Price | Type | Score | Distance |
|---|---|---|---|---|
| Deronda Road, Herne Hill, London, SE24 | £ 600,000 | BUY | 7 / 10 | 0.00 KM |
| Deronda Road, London, SE24 | £ 700,000 | BUY | 8 / 10 | 0.03 KM |
| Norwood Road, SE24 | £ 500,000 | BUY | Unknown | 0.06 KM |
| Norwood Road, London, SE24 | £ 725,000 | BUY | 7 / 10 | 0.06 KM |
| Norwood Road, Herne Hill, London, SE24 | £ 750,000 | BUY | 8 / 10 | 0.07 KM |
Nearby Properties
| Address | Price | Distance |
|---|---|---|
| 20 Berwyn Road | £ 1,135,000 | 0.10 KM |
| 3a Berwyn Road | £ 275,000 | 0.10 KM |
| 2 Berwyn Road | £ 612,000 | 0.10 KM |
| 4 Berwyn Road | £ 1,540,000 | 0.10 KM |
| 2a Berwyn Road | £ 940,000 | 0.10 KM |