Bagshaws says ..
An exceptional and rare opportunity to acquire a model dairy farm set within the Nottinghamshire countryside only approximately 6 miles south of the city of Nottingham.
Property Oracle says ..
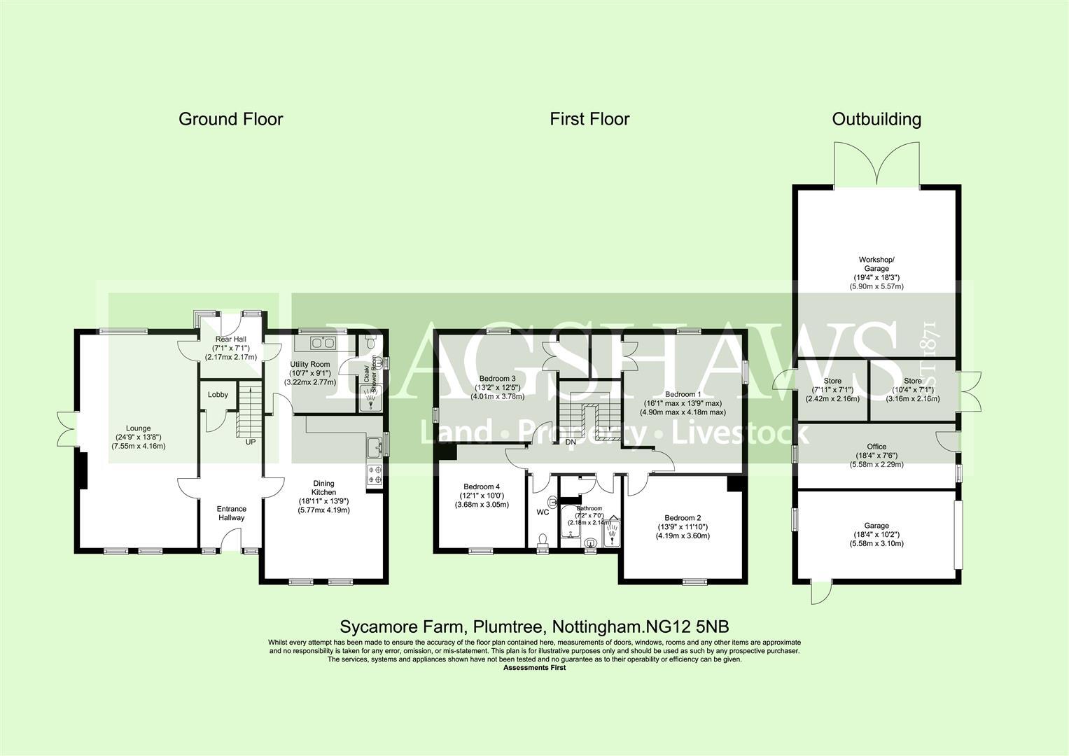
Sycamore Farm is a four-bedroom farmhouse located in the village of Plumtree, Nottinghamshire. The property offers a substantial amount of land and is situated in a desirable rural location, close to local amenities and schools. However, the farmhouse and outbuildings appear to be in need of renovation, and the asking price seems high compared to the average price per square foot in the area.
Therefore, we give this property 6 / 10. *Disclaimer: This is our option and does constitute a recommendation or financial advice. Do your own research. *
- Price
- 4
- Condition
- 5
- Location
- 7
- Land
- 8
- Bedrooms
- 4
- Bathrooms
- 2
- Sqft (est)
- 2,297.18
The heatmap indicates the level of crime in the area. The color of the heatmap indicates the crime severity and recency.
Metrics Year-on-Year
- Average area value
- 307,772.00 £Increased by 19.74 %
- Est sale value
- 1,201,425.14 £Increased by 90.88 %
- Average area rental value
- 871.00 £/moDecreased by 8.32 %
- Est letting value
- 2,297.18 £/moUnchanged by 0.00 %
- Est rental Yield
- 3.40 %Decreased by 23.42 %
- Crime Rate
- 5.00 %Unchanged by 0.00 %
Agent Activity
Bagshaws created the listing.
Nearby Schools
| Name | Type | Ofsted | Distance |
|---|---|---|---|
| Plumtree School | Other Independent School | 0.32 KM | |
| Tollerton Primary School | Academy Converter | 0.98 KM | |
| Crossdale Primary School | Academy Converter | Good | 1.42 KM |
| Keyworth Primary And Nursery School | Academy Converter | Good | 2.18 KM |
| The South Wolds Academy & Sixth Form | Academy Converter | Good | 2.32 KM |
Images
Nearby Streets
| Name | Average Price | Average Sqft | Distance |
|---|---|---|---|
| Station Road | £ 0 | 0 | 0.00 KM |
| Orchard Close | £ 399,950 | 0 | 0.00 KM |
| The Leys | £ 0 | 0 | 0.00 KM |
| Brockdale Gardens | £ 0 | 0 | 0.00 KM |
| Abbot Close | £ 420,000 | 0 | 0.00 KM |
Nearby Transport
| Name | NLC | TLC | Distance |
|---|---|---|---|
| Netherfield | 6241 | NET | 7.68 KM |
| Carlton | 6201 | CTO | 8.11 KM |
| Nottingham | 1826 | NOT | 8.54 KM |
| Radcliffe (Nottinghamshire) | 6242 | RDF | 8.58 KM |
Nearby Listings
| Address | Price | Type | Score | Distance |
|---|---|---|---|---|
| Sycamore Farm, Plumtree | £ 1,750,000 | BUY | 6 / 10 | 0.00 KM |
| Town End Cottages, Plumtree, Nottingham | £ 275,000 | BUY | 6 / 10 | 0.06 KM |
| Plumtree Court, Plumtree, Nottingham | £ 270,000 | BUY | 7 / 10 | 0.14 KM |
| Plumtree Court, Plumtree, Nottinghamshire, NG12 5NQ | £ 230,000 | BUY | Unknown | 0.14 KM |
| Saddlers Yard, Plumtree, Nottingham, Nottinghamshire, NG12 | £ 475,000 | BUY | Unknown | 0.16 KM |
Nearby Properties
| Address | Price | Distance |
|---|---|---|
| Sunview | £ 173,000 | 0.13 KM |
| Font-y-gary | £ 190,000 | 0.13 KM |
| Hoe View | £ 247,000 | 0.13 KM |
| Davison House | £ 425,000 | 0.13 KM |
| The Old Post Office | £ 380,000 | 0.13 KM |