Grummock Avenue, Ramsgate, CT11
By Fresh Estates
£ 300,000
Reviews
3 out of 5 stars
Fresh Estates says ..
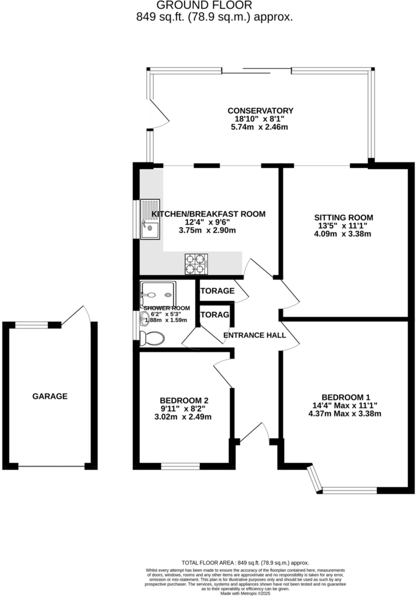
Fresh Estates are pleased to offer for sale this well presented bungalow in Ramsgate.
Property Oracle says ..
This property is a 2-bedroom bungalow located in Ramsgate, Kent. The location benefits from being within proximity to several well-regarded schools, including Newington Community Primary School (Outstanding Ofsted rating) and Chilton Primary School (Outstanding Ofsted rating), both within a 1km radius. Ramsgate railway station is also conveniently located approximately 1.14km away, providing easy access to transport links. The property itself appears to be in good condition, with a recently updated kitchen and bathroom. There is a conservatory extension, adding extra living space and a garden with a shed and greenhouse, suggesting ample outdoor space. The list price of £300,000 is slightly above the average price for the area (£290,310), but considering the property’s good condition, additional living space, and outdoor amenities, it could be considered reasonable. However, the average price per square foot in the area is £284, and this property is smaller than average, which might affect the perceived value.
Therefore, we give this property 7 / 10. *Disclaimer: This is our option and does constitute a recommendation or financial advice. Do your own research. *
- Price
- 7
- Condition
- 8
- Location
- 8
- Land
- 7
- Bedrooms
- 2
- Bathrooms
- 1
- Sqft (est)
- 686.04
- Lot (est)
- 849.00
The heatmap indicates the level of crime in the area. The color of the heatmap indicates the crime severity and recency.
Metrics Year-on-Year
- Average area value
- 279,983.00 £Decreased by 14.38 %
- Est sale value
- 217,474.68 £Increased by 13.62 %
- Average area rental value
- 1,013.00 £/moDecreased by 7.91 %
- Est letting value
- 686.04 £/mo
- Est rental Yield
- 4.34 %Increased by 7.43 %
- Crime Rate
- 3.00 %Unchanged by 0.00 %
Agent Activity
Fresh Estates created the listing.
Nearby Schools
| Name | Type | Ofsted | Distance |
|---|---|---|---|
| St Laurence In Thanet Church Of England Junior Academy | Academy Sponsor Led | Good | 0.54 KM |
| Ellington Infant School | Community School | Good | 0.75 KM |
| Newington Children'S Centre | Children's Centre | 0.77 KM | |
| Newington Community Primary School | Community School | Outstanding | 0.85 KM |
| Chilton Primary School | Academy Converter | Outstanding | 0.88 KM |
Images
Nearby Streets
| Name | Average Price | Average Sqft | Distance |
|---|---|---|---|
| Telham Avenue | £ 230,000 | 0 | 0.00 KM |
| Staner Court | £ 127,500 | 0 | 0.00 KM |
| Queens Avenue | £ 334,999 | 0 | 0.00 KM |
| Old School Row | £ 380,000 | 0 | 0.00 KM |
| Grasmere Avenue | £ 324,950 | 0 | 0.00 KM |
Nearby Transport
| Name | NLC | TLC | Distance |
|---|---|---|---|
| Ramsgate | 5023 | RAM | 1.14 KM |
| Dumpton Park | 5034 | DMP | 3.34 KM |
| Broadstairs | 5006 | BSR | 4.84 KM |
| Margate | 5018 | MAR | 6.08 KM |
| Westgate-On-Sea | 5195 | WGA | 8.17 KM |
Nearby Listings
| Address | Price | Type | Score | Distance |
|---|---|---|---|---|
| Grummock Avenue, Ramsgate, CT11 | £ 300,000 | BUY | Unknown | 0.01 KM |
| Grummock Avenue,Ramsgate,CT11 0RP | £ 325,000 | BUY | 6 / 10 | 0.05 KM |
| Hawes Avenue, Ramsgate, CT11 0RN | £ 395,000 | BUY | Unknown | 0.07 KM |
| Grummock Avenue, Ramsgate | £ 340,000 | BUY | Unknown | 0.09 KM |
| Grummock Avenue, Ramsgate, Kent | £ 290,000 | BUY | 5 / 10 | 0.10 KM |
Nearby Properties
| Address | Price | Distance |
|---|---|---|
| 39 Grummock Avenue | £ 280,000 | 0.04 KM |
| 25 Grummock Avenue | £ 255,000 | 0.04 KM |
| 24 Grummock Avenue | £ 280,000 | 0.08 KM |
| 25 Hawes Avenue | £ 150,000 | 0.08 KM |
| 7 Hawes Avenue | £ 347,500 | 0.08 KM |