Rectory Gardens, Worlingham
Durrants logo

Rectory Gardens, Worlingham

By Durrants

£ 575,000

Reviews

4 out of 5 stars

Durrants says ..

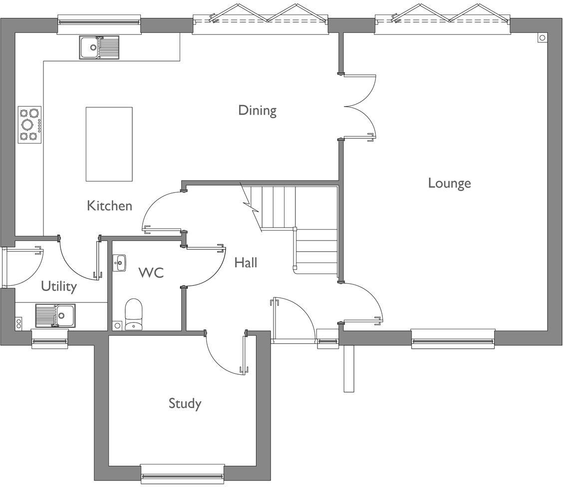
PLOT 8 THE BRUNDALL - Durrants are pleased to offer this substantial, 4 bedroom detached house, situated on the largest plot, with double garage, presented on an exclusive Badger Homes development of only 19 homes located in the popular village of Worlingham.

Property Oracle says ..

The property is located in Worlingham, a village in East Suffolk. Based on the provided information and images, the property appears to be in excellent condition, newly built or recently renovated to a high standard. The images show modern fixtures and fittings throughout. There is evidence of a garden, although the exact size is not specified. The list price is £575,000. Without square footage data for comparable properties, it is difficult to definitively assess the value for money. However, considering the apparent high quality of the finish and the desirable location, the price may be reasonable within the context of the local market. More data on comparable properties would be needed to provide a more accurate assessment.

Therefore, we give this property 8 / 10. *Disclaimer: This is our option and does constitute a recommendation or financial advice. Do your own research. *

Price
7
Condition
10
Location
8
Land
7
Bedrooms
4
Bathrooms
3
Sqft (est)
840.00

The heatmap indicates the level of crime in the area. The color of the heatmap indicates the crime severity and recency.

Metrics Year-on-Year

Average area value
298,125.00 £
Decreased by 2.06 %
from 304,388.00 £
Est sale value
257,880.00 £
Increased by 1.99 %
from 252,840.00 £
Average area rental value
1,026.00 £/mo
Decreased by 21.20 %
from 1,302.00 £/mo
Est letting value
840.00 £/mo
Unchanged by 0.00 %
from 840.00 £/mo
Est rental Yield
4.13 %
Decreased by 19.49 %
from 5.13 %
Crime Rate
21.00 %
Unchanged by 0.00 %
from 21.00 %

Agent Activity

  • Durrants created the listing.

Nearby Schools

NameTypeOfstedDistance
Worlingham Church Of England Voluntary Controlled Primary SchoolVoluntary Controlled SchoolOutstanding0.57 KM
Beccles Primary AcademyAcademy Sponsor LedRequires improvement2.06 KM
Butterflies Children'S CentreChildren's Centre2.58 KM
Set Beccles SchoolFree SchoolsGood2.76 KM
The Albert Pye Community Primary SchoolAcademy ConverterGood3.54 KM

Images

8524168-interior11.jpg 8524168-interior12.jpg 8524168-interior05.jpg 8524168-interior03.jpg SavBadger_Plot42_3891 copy.jpg BADGER_WORLINGHAM_RECTORY_LANE_070622-2.jpg BADGER_WORLINGHAM_RECTORY_LANE_070622-5.jpg Worlingham_Plot 8 Brundall.jpeg 8524168-interior09.jpg 8524168-interior13.jpg 8524168-interior14.jpg 8524168-interior10.jpg 8524168-interior06.jpg 8524168-interior02.jpg BADGER_WORLINGHAM_RECTORY_LANE_070622-7.jpg BADGER_WORLINGHAM_RECTORY_LANE_070622-22.jpg 15335 Badger Building Rectory Gardens Logo MASTER.

Nearby Streets

NameAverage PriceAverage SqftDistance
Carlford Court £ 000.00 KM
Mirbeck's Close £ 220,00000.00 KM
Manor Close £ 1,200,00000.00 KM
The Laurels £ 295,00000.00 KM
Chestnut Close £ 000.00 KM

Nearby Transport

NameNLCTLCDistance
Beccles7258BCC3.29 KM
Brampton (Suffolk)7259BRP8.70 KM
Somerleyton7320SYT8.82 KM
Haddiscoe7300HAD9.00 KM

Nearby Listings

AddressPriceTypeScoreDistance
Rectory Gardens, Worlingham £ 575,000BUY8 / 100.00 KM
Rectory Gardens, Worlingham £ 540,000BUY8 / 100.01 KM
Rectory Gardens, Worlingham £ 495,000BUY7 / 100.03 KM
Rectory Lane, Worlingham, Beccles £ 540,000BUY7 / 100.03 KM
Rectory Lane, Worlingham, Beccles £ 625,000BUY6 / 100.04 KM

Nearby Properties

AddressPriceDistance
17 All Saints Green £ 218,0000.23 KM
21 All Saints Green £ 230,0000.23 KM
1 All Saints Green £ 149,5000.23 KM
43 All Saints Green £ 131,6080.23 KM
33 All Saints Green £ 255,0000.23 KM