CH
Waddington Close, Crawley, West Sussex, RH11
By Choices
£ 290,000
Reviews
2 out of 5 stars
Choices says ..
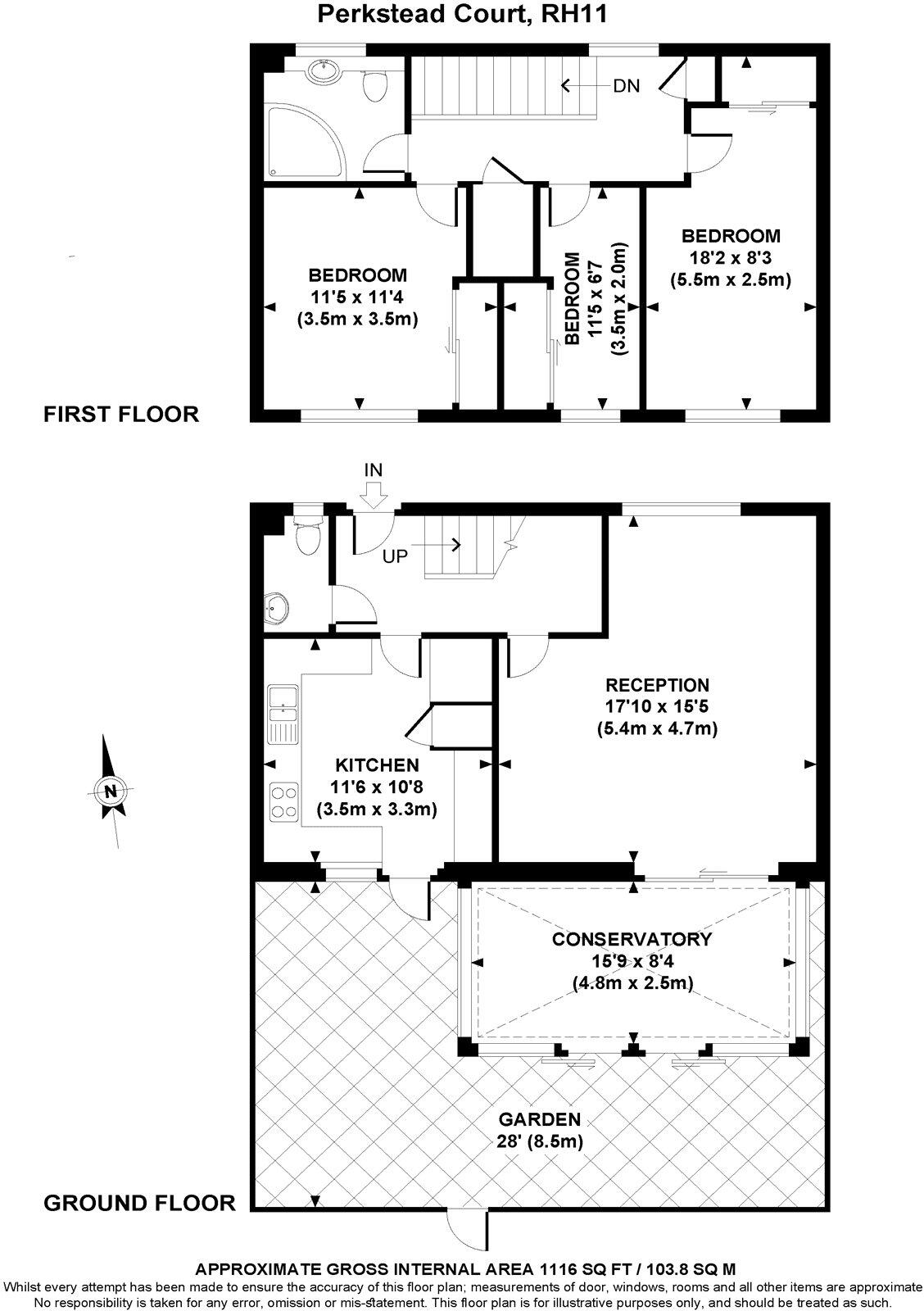
*GUIDE PRICE £290,000 - £300,000* Choices are delighted to welcome this three bedroom terraced house in a popular part of Bewbush, offered with no onward chain. The property comprises: entrance hall and downstairs toilet, fitted kitchen and a good sized reception room which...
Property Oracle says ..
Therefore, we give this property 5 / 10. *Disclaimer: This is our option and does constitute a recommendation or financial advice. Do your own research. *
- Price
- 6
- Condition
- 3
- Location
- 7
- Land
- 6
- Bedrooms
- 3
- Bathrooms
- 1
- Sqft (est)
- 881.89
The heatmap indicates the level of crime in the area. The color of the heatmap indicates the crime severity and recency.
Metrics Year-on-Year
- Average area value
- 254,421.00 £Decreased by 2.55 %
- Est sale value
- 454,173.35 £Increased by 54.65 %
- Average area rental value
- 1,045.00 £/moDecreased by 1.69 %
- Est letting value
- 1,763.78 £/moIncreased by 100.00 %
- Est rental Yield
- 4.93 %Increased by 0.82 %
- Crime Rate
- 11.00 %Unchanged by 0.00 %
from 261,086.00 £
from 293,669.37 £
from 1,063.00 £/mo
from 881.89 £/mo
from 4.89 %
from 11.00 %
Agent Activity
Choices created the listing.
Nearby Schools
| Name | Type | Ofsted | Distance |
|---|---|---|---|
| Seymour Primary School | Academy Converter | Good | 0.28 KM |
| Broadfield Primary Academy | Academy Sponsor Led | Good | 0.70 KM |
| Broadfield Children And Family Centre | Children's Centre | 0.76 KM | |
| Atelier21 Future School | Other Independent School | 0.87 KM | |
| Holy Trinity Cofe Secondary School, Crawley | Voluntary Aided School | Good | 0.98 KM |
Images
Nearby Streets
| Name | Average Price | Average Sqft | Distance |
|---|---|---|---|
| Lambeth Close | £ 210,000 | 0 | 0.00 KM |
| Broadfield Drive | £ 250,000 | 0 | 0.00 KM |
| Osborne Court | £ 0 | 0 | 0.00 KM |
| Primrose Close | £ 0 | 0 | 0.00 KM |
| Broadfield Drive | £ 0 | 0 | 0.00 KM |
Nearby Transport
| Name | NLC | TLC | Distance |
|---|---|---|---|
| Ifield | 5495 | IFI | 2.22 KM |
| Crawley | 5484 | CRW | 2.41 KM |
| Three Bridges | 5491 | TBD | 5.13 KM |
| Faygate | 5493 | FGT | 6.55 KM |
| Gatwick Airport | 5416 | GTW | 7.97 KM |
Nearby Listings
| Address | Price | Type | Score | Distance |
|---|---|---|---|---|
| Waddington Close, Crawley, West Sussex, RH11 | £ 290,000 | BUY | 5 / 10 | 0.00 KM |
| Waddington Close, Crawley, West Sussex, RH11 | £ 290,000 | BUY | 5 / 10 | 0.00 KM |
| Fulham Close, Broadfield | £ 200,000 | BUY | 6 / 10 | 0.00 KM |
| Fulham Close, Broadfield | £ 195,000 | BUY | Unknown | 0.00 KM |
| Fulham Close, Crawley, West Sussex | £ 450,000 | BUY | Unknown | 0.02 KM |
Nearby Properties
| Address | Price | Distance |
|---|---|---|
| 13 Fulham Close | £ 235,000 | 0.02 KM |
| 10 Fulham Close | £ 233,000 | 0.02 KM |
| 17 Fulham Close | £ 420,000 | 0.02 KM |
| 4 Fulham Close | £ 255,000 | 0.02 KM |
| 11 Fulham Close | £ 260,000 | 0.02 KM |