Raisby Terrace, West Cornforth, Ferryhill, Durham, DL17
By Ben Charles
£ 79,950
Reviews
2 out of 5 stars
Ben Charles says ..
SPACIOUS AND WELL PRESENTED. LARGE ENCLOSED GARDEN.
Property Oracle says ..
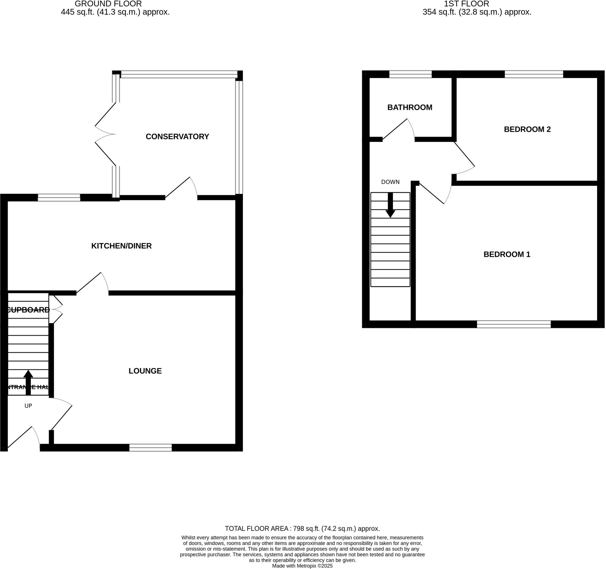
This two-bedroom semi-detached house in West Cornforth, County Durham, is listed at £79,950. The property appears to be structurally sound, but the interior requires some degree of modernisation. The kitchen and bathroom are dated and could benefit from upgrading. The flooring throughout is consistent with the age of the property. The property boasts a garden area with a shed, offering some outdoor space, though further details regarding the size would enhance the assessment.
The location in West Cornforth is relatively positive, with an ‘Outstanding’ primary school nearby. The availability of other amenities and public transport options would be important factors for prospective buyers. Additional information on local transport links and amenities would enhance the assessment. Neighbouring properties on Raisby Terrace have sold for prices ranging from £63,000 to £91,000, suggesting the listing price falls within the typical range for the street. The lack of precise square footage data for comparable properties makes a definitive comparative analysis challenging. The overall impression is that this property is suitable for someone looking for a reasonably priced home in need of updating. It is a reasonable investment that could potentially see value increase after modest renovations. A buyer would need to account for anticipated refurbishment costs to evaluate the financial viability.
Therefore, we give this property 5 / 10. *Disclaimer: This is our option and does constitute a recommendation or financial advice. Do your own research. *
- Price
- 7
- Condition
- 5
- Location
- 7
- Land
- 4
- Bedrooms
- 2
- Bathrooms
- 1
- Sqft (est)
- 798.68
The heatmap indicates the level of crime in the area. The color of the heatmap indicates the crime severity and recency.
Metrics Year-on-Year
- Average area value
- 211,000.00 £Increased by 2.49 %
- Est sale value
- 220,435.68 £Increased by 14.52 %
- Average area rental value
- 961.00 £/moDecreased by 14.43 %
- Est letting value
- 798.68 £/moUnchanged by 0.00 %
- Est rental Yield
- 5.47 %Decreased by 16.49 %
- Crime Rate
- 76.00 %Unchanged by 0.00 %
Agent Activity
Ben Charles created the listing.
Nearby Schools
| Name | Type | Ofsted | Distance |
|---|---|---|---|
| West Cornforth Primary School | Community School | Outstanding | 0.42 KM |
| Coxhoe Primary School | Community School | Outstanding | 1.30 KM |
| Cleves Cross Primary And Nursery School Academy | Academy Converter | 2.92 KM | |
| Ferryhill Station Primary School | Community School | Requires improvement | 3.36 KM |
| The Woodlands | Pupil Referral Unit | Good | 3.79 KM |
Images
Nearby Streets
| Name | Average Price | Average Sqft | Distance |
|---|---|---|---|
| Laburnum Road | £ 0 | 0 | 0.00 KM |
| Oak Terrace | £ 0 | 0 | 0.00 KM |
| Vicarage Road | £ 125,000 | 0 | 0.00 KM |
| Linden Road | £ 0 | 0 | 0.00 KM |
| Maple Grove | £ 60,000 | 0 | 0.00 KM |
Nearby Listings
| Address | Price | Type | Score | Distance |
|---|---|---|---|---|
| Raisby Terrace, West Cornforth, Ferryhill, Durham, DL17 | £ 79,950 | BUY | 5 / 10 | 0.00 KM |
| Raisby Terrace, West Cornforth | £ 89,950 | BUY | Unknown | 0.02 KM |
| Beech Parade, West Cornforth, | £ 105,000 | BUY | 7 / 10 | 0.05 KM |
| Raisby Terrace, West Cornforth, | £ 79,950 | BUY | 7 / 10 | 0.08 KM |
| Raisby Terrace, West Cornforth, Ferryhill, County Durham, DL17 | £ 110,000 | BUY | Unknown | 0.08 KM |
Nearby Properties
| Address | Price | Distance |
|---|---|---|
| 2 Raisby Terrace | £ 63,000 | 0.02 KM |
| 17 Raisby Terrace | £ 85,000 | 0.02 KM |
| 13 Raisby Terrace | £ 86,000 | 0.02 KM |
| 11 Raisby Terrace | £ 91,000 | 0.02 KM |
| 20 Raisby Terrace | £ 49,000 | 0.02 KM |