Wain Homes says ..
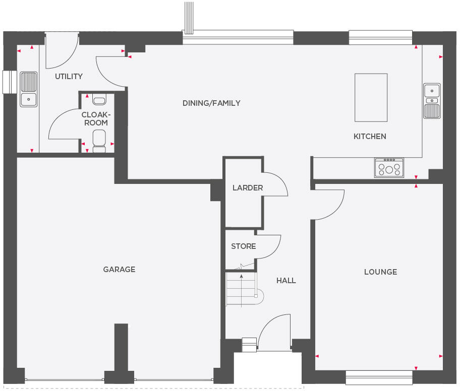
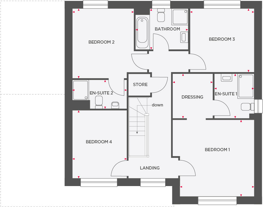
The Elm at Cardwell Park is a spacious 4 BEDROOM family home with an OPEN-PLAN KITCHEN DINER with INTEGRATED APPLIANCES, BI-FOLD DOORS to the turfed rear garden, 2 EN-SUITE bathrooms, Carpets & AMTICO FLOORING included, DRESSING ROOM from the Master Bedroom & an integral double garage.
Property Oracle says ..
The property is located in Barton, Lancashire, and is a four-bedroom detached house with two bathrooms. The list price is £459,950, and the property has 1,110 sqft of living space. The average house price in the area is £318,263, with an average price per sqft of £216. Nearby schools include Barton St Lawrence Church of England Primary School (Outstanding Ofsted rating) and Broughton High School (Outstanding Ofsted rating). The property appears to be in excellent condition, with modern fixtures and fittings throughout. The images show a well-maintained garden. Given the condition, location, and amenities, the list price appears to be at the higher end of the market but not unreasonable considering the quality of the property and the desirable location.
Therefore, we give this property 8 / 10. *Disclaimer: This is our option and does constitute a recommendation or financial advice. Do your own research. *
- Price
- 7
- Condition
- 10
- Location
- 9
- Land
- 8
- Bedrooms
- 4
- Bathrooms
- 2
- Sqft (est)
- 1,110.00
The heatmap indicates the level of crime in the area. The color of the heatmap indicates the crime severity and recency.
Metrics Year-on-Year
- Average area value
- 354,000.00 £Increased by 4.92 %
- Est sale value
- 399,600.00 £Increased by 39.53 %
- Average area rental value
- 922.00 £/moDecreased by 14.23 %
- Est letting value
- 0.00 £/mo
- Est rental Yield
- 3.13 %Decreased by 18.06 %
- Crime Rate
- 0.00 %
Agent Activity
Wain Homes created the listing.
Nearby Schools
| Name | Type | Ofsted | Distance |
|---|---|---|---|
| Barton St Lawrence Church Of England Primary School | Voluntary Aided School | Outstanding | 0.63 KM |
| St Lawrence Children'S Centre | Children's Centre Linked Site | 0.63 KM | |
| St Mary And St Andrew'S Catholic Primary School, Barton Newsham | Voluntary Aided School | Good | 0.82 KM |
| Broughton High School | Community School | Outstanding | 2.17 KM |
| Broughton-In-Amounderness Church Of England Primary School | Voluntary Aided School | Outstanding | 2.21 KM |
Images
Nearby Streets
| Name | Average Price | Average Sqft | Distance |
|---|---|---|---|
| Manor Croft | £ 0 | 0 | 0.00 KM |
| Palmerston Road | £ 0 | 0 | 0.00 KM |
| Boars Head Place | £ 0 | 0 | 0.00 KM |
| St Michael's Place | £ 0 | 0 | 0.00 KM |
| White Horse Lane | £ 259,995 | 0 | 0.00 KM |
Nearby Transport
| Name | NLC | TLC | Distance |
|---|---|---|---|
| Preston (Lancs) | 2753 | PRE | 8.15 KM |
Nearby Listings
| Address | Price | Type | Score | Distance |
|---|---|---|---|---|
| Cardwell Park, Garstang Road, Barton, PR3 | £ 491,950 | BUY | 7 / 10 | 0.00 KM |
| Cardwell Park, Garstang Road, Barton, PR3 | £ 489,950 | BUY | 7 / 10 | 0.00 KM |
| Garstang Road, Barton, PR3 5DR | £ 459,950 | BUY | 8 / 10 | 0.00 KM |
| Garstang Road, Barton, PR3 5DR | £ 491,950 | BUY | 7 / 10 | 0.00 KM |
| Cardwell Park, Garstang Road, Barton, PR3 | £ 399,950 | BUY | Unknown | 0.00 KM |
Nearby Properties
| Address | Price | Distance |
|---|---|---|
| 608 Garstang Road | £ 345,000 | 0.00 KM |
| 660 Garstang Road | £ 76,500 | 0.00 KM |
| 644 Garstang Road | £ 500,000 | 0.00 KM |
| 622 Garstang Road | £ 255,000 | 0.00 KM |
| 614 Garstang Road | £ 330,000 | 0.00 KM |