HA
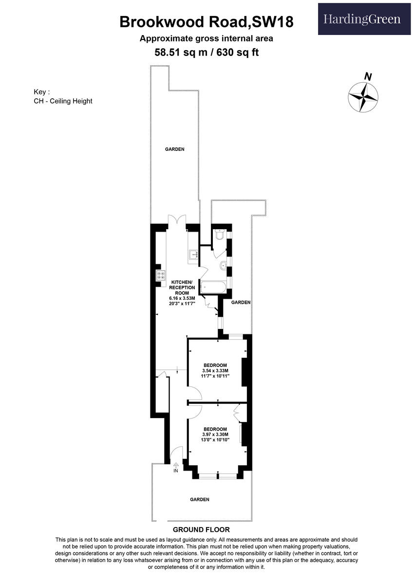
Brookwood Road, London, SW18
By Harding Green
£ 625,000
Reviews
3 out of 5 stars
Harding Green says ..
A wonderful two double bedroom garden maisonette on a hugely sought after street in Southfields
Property Oracle says ..
Therefore, we give this property 6 / 10. *Disclaimer: This is our option and does constitute a recommendation or financial advice. Do your own research. *
- Price
- 3
- Condition
- 8
- Location
- 8
- Land
- 7
- Bedrooms
- 2
- Bathrooms
- 1
- Sqft (est)
- 501.92
The heatmap indicates the level of crime in the area. The color of the heatmap indicates the crime severity and recency.
Metrics Year-on-Year
- Average area value
- 719,333.00 £Increased by 1.81 %
- Est sale value
- 393,003.36 £Decreased by 0.38 %
- Average area rental value
- 2,472.00 £/moDecreased by 10.69 %
- Est letting value
- 1,003.84 £/moDecreased by 33.33 %
- Est rental Yield
- 4.12 %Decreased by 12.34 %
- Crime Rate
- 9.00 %Unchanged by 0.00 %
from 706,552.00 £
from 394,509.12 £
from 2,768.00 £/mo
from 1,505.76 £/mo
from 4.70 %
from 9.00 %
Agent Activity
Harding Green created the listing.
Nearby Schools
| Name | Type | Ofsted | Distance |
|---|---|---|---|
| Riversdale Primary School | Community School | Good | 0.30 KM |
| Southfields Academy | Academy Converter | Good | 0.35 KM |
| Sheringdale Primary School | Community School | Outstanding | 0.53 KM |
| Wimbledon Park Primary School | Community School | Outstanding | 0.80 KM |
| St Michael'S Cofe Primary School | Voluntary Aided School | Outstanding | 0.84 KM |
Images
Nearby Streets
| Name | Average Price | Average Sqft | Distance |
|---|---|---|---|
| Alba Mews | £ 0 | 0 | 0.00 KM |
| Normanton Avenue | £ 0 | 0 | 0.00 KM |
| Glenville Mews | £ 0 | 0 | 0.00 KM |
| Wandle Trail | £ 690,000 | 0 | 0.00 KM |
| Duntshill Road | £ 0 | 0 | 0.00 KM |
Nearby Transport
| Name | NLC | TLC | Distance |
|---|---|---|---|
| Earlsfield | 5584 | EAD | 1.38 KM |
| Wandsworth Town | 5576 | WNT | 2.31 KM |
| Haydons Road | 5289 | HYR | 2.41 KM |
| Wimbledon | 5578 | WIM | 2.62 KM |
| Putney | 5603 | PUT | 2.65 KM |
Nearby Listings
| Address | Price | Type | Score | Distance |
|---|---|---|---|---|
| Brookwood Road, London, SW18 | £ 625,000 | BUY | 6 / 10 | 0.00 KM |
| Brookwood Road, London | £ 549,950 | BUY | 7 / 10 | 0.03 KM |
| Brookwood Road, London | £ 1,245,000 | BUY | 6 / 10 | 0.04 KM |
| Brookwood Road, Earlsfield | £ 625,000 | BUY | 6 / 10 | 0.04 KM |
| Astonville Street, London, SW18 | £ 725,000 | BUY | 7 / 10 | 0.05 KM |
Nearby Properties
| Address | Price | Distance |
|---|---|---|
| 63 Brookwood Road | £ 1,325,000 | 0.06 KM |
| 73 Brookwood Road | £ 823,000 | 0.06 KM |
| 99 Brookwood Road | £ 550,000 | 0.06 KM |
| 111 Brookwood Road | £ 680,000 | 0.06 KM |
| 85 Brookwood Road | £ 180,000 | 0.06 KM |