Forsythia Close, Havant, Hampshire, PO9
By Chapplins Estate Agents
£ 340,000
Reviews
3 out of 5 stars
Chapplins Estate Agents says ..
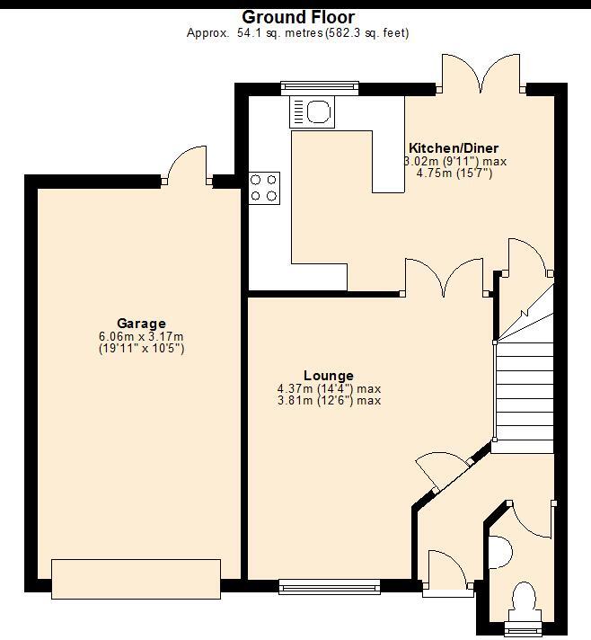
An well-presented, end of terrace house located in a cul-de-sac in the popular area of Denvilles, just a few minutes’ drive from both Havant and Emsworth. The accommodation includes an lounge, kitchen/diner, 3 bedrooms, a modern shower room and downstair cloakroom. Garage and off-road park...
Property Oracle says ..
Forsythia Close is located in Havant, Hampshire, a town in the South East of England. The property is a 3-bedroom house with 1 bathroom, and a total area of 492.11 sqft. The plot size is 582.30 sqft. The asking price is £340,000.
The property appears to be in good condition based on the provided images. The rooms are clean and well-maintained, and there is no visible evidence of significant damage or disrepair. The kitchen and bathroom appear modern and functional. The garden is of a reasonable size and appears well-maintained.
The location is good, with several primary and secondary schools within a reasonable distance, including Sharps Copse Primary and Nursery School (rated ‘Good’ by Ofsted) and Warblington School (also rated ‘Good’). There are also several train stations within a few kilometers, providing convenient access to other parts of the country.
Considering the property’s condition, location, and size, and comparing it to similar properties in the area, the list price of £340,000 seems reasonable. The average price for properties in the area is £436,333, and the average price per sqft is £329.00. While this property is smaller than average, its good condition and convenient location justify its price point. The nearby properties on Forsythia Close show a range of prices, with some significantly lower, but these may differ in size and condition.
Therefore, we give this property 7 / 10. *Disclaimer: This is our option and does constitute a recommendation or financial advice. Do your own research. *
- Price
- 7
- Condition
- 8
- Location
- 7
- Land
- 6
- Bedrooms
- 3
- Bathrooms
- 1
- Sqft (est)
- 492.11
- Lot (est)
- 582.30
The heatmap indicates the level of crime in the area. The color of the heatmap indicates the crime severity and recency.
Metrics Year-on-Year
- Average area value
- 354,000.00 £Decreased by 21.23 %
- Est sale value
- 173,714.83 £Decreased by 9.49 %
- Average area rental value
- 1,321.00 £/moIncreased by 24.62 %
- Est letting value
- 492.11 £/mo
- Est rental Yield
- 4.48 %Increased by 58.30 %
- Crime Rate
- 9.00 %Unchanged by 0.00 %
Agent Activity
Chapplins Estate Agents created the listing.
Nearby Schools
| Name | Type | Ofsted | Distance |
|---|---|---|---|
| Sharps Copse Primary And Nursery School | Community School | Good | 0.79 KM |
| Sharps Copse And Park Futures Children'S Centre | Children's Centre | 0.90 KM | |
| St Alban'S Church Of England Aided Primary School | Voluntary Aided School | Good | 1.07 KM |
| Warblington School | Community School | Good | 1.36 KM |
| Havant Academy | Academy Sponsor Led | Good | 1.55 KM |
Images
Nearby Streets
| Name | Average Price | Average Sqft | Distance |
|---|---|---|---|
| Wren Grove | £ 279,500 | 0 | 0.00 KM |
| Gold Street | £ 347,500 | 0 | 0.00 KM |
| Bartons Road | £ 0 | 0 | 0.00 KM |
| Oakfield Court | £ 278,750 | 0 | 0.00 KM |
| Ashe Road | £ 0 | 0 | 0.00 KM |
Nearby Transport
| Name | NLC | TLC | Distance |
|---|---|---|---|
| Warblington | 5264 | WBL | 1.24 KM |
| Havant | 5532 | HAV | 2.24 KM |
| Emsworth | 5257 | EMS | 3.14 KM |
| Rowlands Castle | 5658 | RLN | 3.21 KM |
| Bedhampton | 5538 | BDH | 3.71 KM |
Nearby Listings
| Address | Price | Type | Score | Distance |
|---|---|---|---|---|
| Forsythia Close, Havant, Hampshire, PO9 | £ 340,000 | BUY | 7 / 10 | 0.00 KM |
| Wisteria Gardens, Havant, Hampshire | £ 435,000 | BUY | 6 / 10 | 0.08 KM |
| Wisteria Gardens, Denvilles | £ 299,995 | BUY | 7 / 10 | 0.09 KM |
| Azalea Close, Havant | £ 425,000 | BUY | 8 / 10 | 0.16 KM |
| Azalea Close, Denvilles | £ 425,000 | BUY | 6 / 10 | 0.16 KM |
Nearby Properties
| Address | Price | Distance |
|---|---|---|
| 29 Forsythia Close | £ 155,000 | 0.06 KM |
| 25 Forsythia Close | £ 167,000 | 0.06 KM |
| 15 Forsythia Close | £ 375,000 | 0.06 KM |
| 31 Forsythia Close | £ 159,000 | 0.06 KM |
| 35 Forsythia Close | £ 125,000 | 0.06 KM |