Waghorn & Company says ..
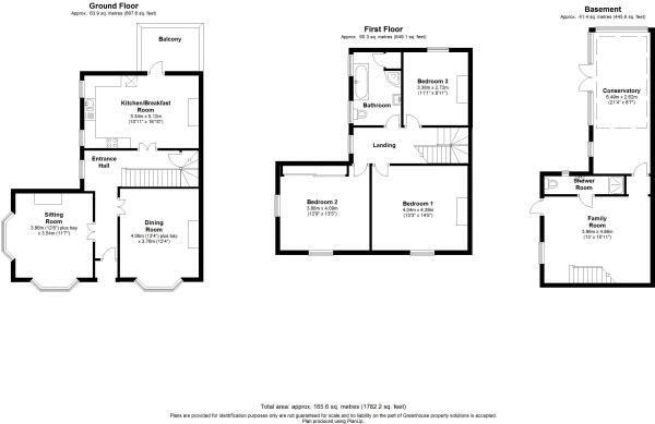
NO ONWARD CHAIN ! Waghorn & Company are delighted to offer the market this substantial, 3/4 bedroom detached family home, conveniently located for Tonbridge Train Station, High Street & excellent Schools. The property offers versatile accommodation, boasting a wealth of period features th...
Property Oracle says ..
Therefore, we give this property 6 / 10. *Disclaimer: This is our option and does constitute a recommendation or financial advice. Do your own research. *
- Price
- 4
- Condition
- 7
- Location
- 8
- Land
- 7
- Bedrooms
- 3
- Bathrooms
- 2
- Sqft (est)
- 1,782.50
The heatmap indicates the level of crime in the area. The color of the heatmap indicates the crime severity and recency.
Metrics Year-on-Year
- Average area value
- 432,250.00 £Decreased by 1.11 %
- Est sale value
- 1,834,192.50 £Increased by 80.84 %
- Average area rental value
- 1,183.00 £/moDecreased by 16.87 %
- Est letting value
- 3,565.00 £/moIncreased by 100.00 %
- Est rental Yield
- 3.28 %Decreased by 16.11 %
- Crime Rate
- 8.00 %Unchanged by 0.00 %
from 437,082.00 £
from 1,014,242.50 £
from 1,423.00 £/mo
from 1,782.50 £/mo
from 3.91 %
from 8.00 %
Agent Activity
Waghorn & Company created the listing.
Nearby Schools
| Name | Type | Ofsted | Distance |
|---|---|---|---|
| West Kent And Ashford College | Further Education | Requires improvement | 0.56 KM |
| The Judd School | Voluntary Aided School | Outstanding | 0.64 KM |
| Tonbridge Grammar School | Academy Converter | Outstanding | 0.76 KM |
| Sussex Road Community Primary School | Community School | Good | 0.88 KM |
| The Hayesbrook School | Academy Converter | Good | 0.96 KM |
Images
Nearby Streets
| Name | Average Price | Average Sqft | Distance |
|---|---|---|---|
| Quarry Rise | £ 0 | 0 | 0.00 KM |
| Fairview Close | £ 0 | 0 | 0.00 KM |
| Tonbridge Bypass | £ 0 | 0 | 0.00 KM |
| MU31 | £ 0 | 0 | 0.00 KM |
| MU29 | £ 0 | 0 | 0.00 KM |
Nearby Transport
| Name | NLC | TLC | Distance |
|---|---|---|---|
| Tonbridge | 5229 | TON | 0.95 KM |
| High Brooms | 5235 | HIB | 3.95 KM |
| Hildenborough | 5236 | HLB | 5.61 KM |
| Tunbridge Wells | 5230 | TBW | 5.96 KM |
| Leigh (Kent) | 5294 | LIH | 6.42 KM |
Nearby Listings
| Address | Price | Type | Score | Distance |
|---|---|---|---|---|
| Baltic Road, Tonbridge | £ 699,950 | BUY | 6 / 10 | 0.00 KM |
| Baltic Road, Tonbridge | £ 325,000 | BUY | Unknown | 0.00 KM |
| Baltic Road, Tonbridge | £ 335,000 | BUY | 8 / 10 | 0.00 KM |
| Baltic Road, Tonbridge, Kent | £ 375,000 | BUY | 6 / 10 | 0.00 KM |
| Baltic Road, Tonbridge (no chain) | £ 340,000 | BUY | 6 / 10 | 0.03 KM |
Nearby Properties
| Address | Price | Distance |
|---|---|---|
| 32 Baltic Road | £ 258,000 | 0.01 KM |
| 40 Baltic Road | £ 205,000 | 0.01 KM |
| 34 Baltic Road | £ 172,000 | 0.01 KM |
| 66 Baltic Road | £ 152,000 | 0.01 KM |
| 15 Baltic Road | £ 325,000 | 0.01 KM |