Highfield Road, Kemsing, Sevenoaks, TN15
By John Kingston Estate Agents
£ 700,000
Reviews
3 out of 5 stars
John Kingston Estate Agents says ..
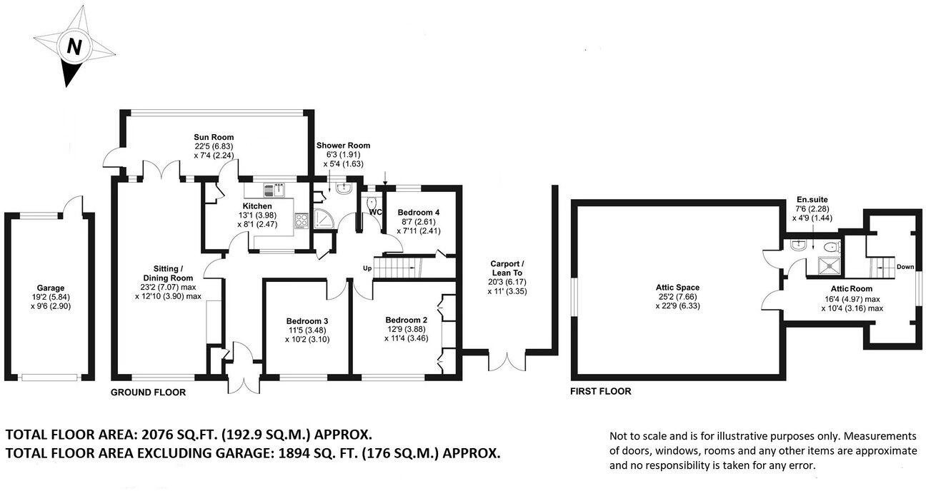
An abundance of opportunity awaits you within this 3 bedroomed detached chalet bungalow standing on a wide 1/4 acre plot with considerable undeveloped attic space with room and ensuite. The property has been a much enjoyed and cared for home for nearly 40 years. There is garage to one sid...
Property Oracle says ..
This detached bungalow in Kemsing presents a good opportunity, particularly for those looking for a property with a large garden and substantial living space. While the interior would benefit from modernization, the size and location offer a solid foundation. The property includes three bedrooms and two bathrooms. The listing price of £700,000 appears reasonable when compared to the average price per square foot in the area, but potential renovation costs should be considered. The property is located within a reasonable distance of local schools and transportation links, making it a practical choice for families and commuters alike. The inclusion of a garage is a further benefit.
Therefore, we give this property 6 / 10. *Disclaimer: This is our option and does constitute a recommendation or financial advice. Do your own research. *
- Price
- 7
- Condition
- 5
- Location
- 7
- Land
- 8
- Bedrooms
- 3
- Bathrooms
- 2
- Sqft (est)
- 2,076.36
The heatmap indicates the level of crime in the area. The color of the heatmap indicates the crime severity and recency.
Metrics Year-on-Year
- Average area value
- 1,145,000.00 £Increased by 51.85 %
- Est sale value
- 1,656,935.28 £Increased by 52.58 %
- Average area rental value
- 1,717.00 £/moDecreased by 6.07 %
- Est letting value
- 2,076.36 £/moUnchanged by 0.00 %
- Est rental Yield
- 1.80 %Decreased by 38.14 %
- Crime Rate
- 27.00 %Unchanged by 0.00 %
Agent Activity
John Kingston Estate Agents created the listing.
Nearby Schools
| Name | Type | Ofsted | Distance |
|---|---|---|---|
| St Michael'S Prep School | Other Independent School | 0.86 KM | |
| Kemsing Primary School | Community School | Good | 1.36 KM |
| Seal Church Of England Voluntary Controlled Primary School | Voluntary Controlled School | Good | 1.87 KM |
| Trinity School | Free Schools | Good | 2.52 KM |
| Russell House School | Other Independent School | 2.58 KM |
Images
Nearby Streets
| Name | Average Price | Average Sqft | Distance |
|---|---|---|---|
| Boleyn Road | £ 0 | 0 | 0.00 KM |
| Orchard Way | £ 0 | 0 | 0.00 KM |
| Nightingale Road | £ 577,333 | 0 | 0.00 KM |
| Church Lane | £ 875,000 | 0 | 0.00 KM |
Nearby Transport
| Name | NLC | TLC | Distance |
|---|---|---|---|
| Otford | 5071 | OTF | 2.26 KM |
| Bat And Ball | 5090 | BBL | 3.27 KM |
| Kemsing | 5079 | KMS | 3.64 KM |
| Shoreham (Kent) | 5074 | SEH | 4.03 KM |
| Dunton Green | 5102 | DNG | 5.24 KM |
Nearby Listings
| Address | Price | Type | Score | Distance |
|---|---|---|---|---|
| Highfield Road, Kemsing, Sevenoaks, TN15 | £ 700,000 | BUY | 6 / 10 | 0.00 KM |
| Highfield Road, Sevenoaks, TN15 | £ 780,000 | BUY | 7 / 10 | 0.01 KM |
| Bowden Court, Childsbridge Lane, Kemsing, Sevenoaks, TN15 | £ 1,100,000 | BUY | Unknown | 0.08 KM |
| Childsbridge Lane, Sevenoaks, TN15 | £ 750,000 | BUY | 6 / 10 | 0.12 KM |
| Highfield Road, Kemsing, Sevenoaks, Kent, TN15 | £ 700,000 | BUY | 7 / 10 | 0.14 KM |
Nearby Properties
| Address | Price | Distance |
|---|---|---|
| 21 Childsbridge Lane | £ 302,000 | 0.08 KM |
| 19 Childsbridge Lane | £ 607,000 | 0.08 KM |
| 15 Childsbridge Lane | £ 880,000 | 0.08 KM |
| 5 Hillside Road | £ 520,000 | 0.12 KM |
| 10 Hillside Road | £ 412,500 | 0.12 KM |