Hall & Scott says ..
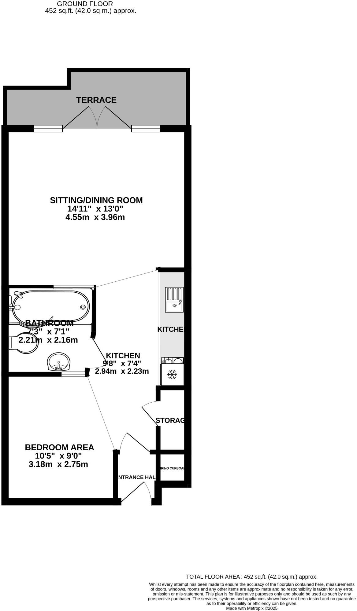
Well presented modern ground floor studio apartment, located on the prestigious Exmouth Marina development, just steps from Shelly beach, with the benefit of an outside terrace and allocated parking space, with views towards the Estuary and Dawlish Warren.
Property Oracle says ..
This ground floor flat in Exmouth offers a desirable coastal lifestyle. The property benefits from its proximity to the marina and Shelly Road, placing it within easy reach of local amenities and transport links. While the interior is generally well-maintained, some areas, particularly the kitchen and bathroom, could benefit from modernization. The inclusion of a balcony is a definite plus, providing private outdoor space and potential views. The price is slightly above the average for the area, but this may be justified by the prime location and the inclusion of the balcony. Overall, this property presents a good opportunity for those seeking a coastal residence in Exmouth.
Therefore, we give this property 7 / 10. *Disclaimer: This is our option and does constitute a recommendation or financial advice. Do your own research. *
- Price
- 7
- Condition
- 7
- Location
- 8
- Land
- 6
- Bedrooms
- 1
- Bathrooms
- 1
- Sqft (est)
- 452.00
The heatmap indicates the level of crime in the area. The color of the heatmap indicates the crime severity and recency.
Metrics Year-on-Year
- Average area value
- 353,125.00 £Increased by 13.69 %
- Est sale value
- 193,908.00 £Increased by 22.92 %
- Average area rental value
- 1,100.00 £/moDecreased by 4.18 %
- Est letting value
- 452.00 £/moUnchanged by 0.00 %
- Est rental Yield
- 3.74 %Decreased by 15.77 %
- Crime Rate
- 6.00 %Unchanged by 0.00 %
Agent Activity
Hall & Scott created the listing.
Nearby Schools
| Name | Type | Ofsted | Distance |
|---|---|---|---|
| The Beacon Church Of England (Va) Primary School | Voluntary Aided School | Good | 1.32 KM |
| Exeter Road Community Primary School | Foundation School | Good | 1.57 KM |
| Exeter Royal Academy For Deaf Education | Non-maintained Special School | Requires improvement | 2.09 KM |
| Exmouth Community College | Academy Converter | Requires improvement | 2.32 KM |
| St Joseph'S Catholic Primary School, Exmouth | Academy Converter | Good | 2.32 KM |
Images
Nearby Streets
| Name | Average Price | Average Sqft | Distance |
|---|---|---|---|
| Beacon Hill | £ 0 | 0 | 0.00 KM |
| South Street | £ 0 | 0 | 0.00 KM |
| Southern Road | £ 425,000 | 0 | 0.00 KM |
| Albion Terrace | £ 200,000 | 0 | 0.00 KM |
| Lyndhurst Road | £ 0 | 0 | 0.00 KM |
Nearby Transport
| Name | NLC | TLC | Distance |
|---|---|---|---|
| Exmouth | 5756 | EXM | 1.18 KM |
| Starcross | 3413 | SCS | 2.77 KM |
| Dawlish Warren | 3409 | DWW | 2.95 KM |
| Lympstone Village | 5761 | LYM | 3.47 KM |
| Lympstone Commando | 5762 | LYC | 5.26 KM |
Nearby Listings
| Address | Price | Type | Score | Distance |
|---|---|---|---|---|
| Exmouth Marina | £ 236,500 | BUY | 7 / 10 | 0.00 KM |
| Shelly Road, Exmouth | £ 315,000 | BUY | 5 / 10 | 0.02 KM |
| Shelly Road, Exmouth, EX8 1DA | £ 435,000 | BUY | 5 / 10 | 0.02 KM |
| Shelly Road, Exmouth, EX8 1DA | £ 355,000 | BUY | 6 / 10 | 0.02 KM |
| Shelly Road, Exmouth, EX8 1DA | £ 295,000 | BUY | 6 / 10 | 0.02 KM |
Nearby Properties
| Address | Price | Distance |
|---|---|---|
| 18 Shelly Court | £ 207,500 | 0.15 KM |
| 12 Shelly Court | £ 220,000 | 0.15 KM |
| 15 Shelly Court | £ 160,000 | 0.15 KM |
| 17 Shelly Court | £ 79,000 | 0.16 KM |
| 16 Shelly Court | £ 175,000 | 0.16 KM |