The Butts, Frome, Somerset, BA11
By McAllisters
£ 335,000
Reviews
2 out of 5 stars
McAllisters says ..
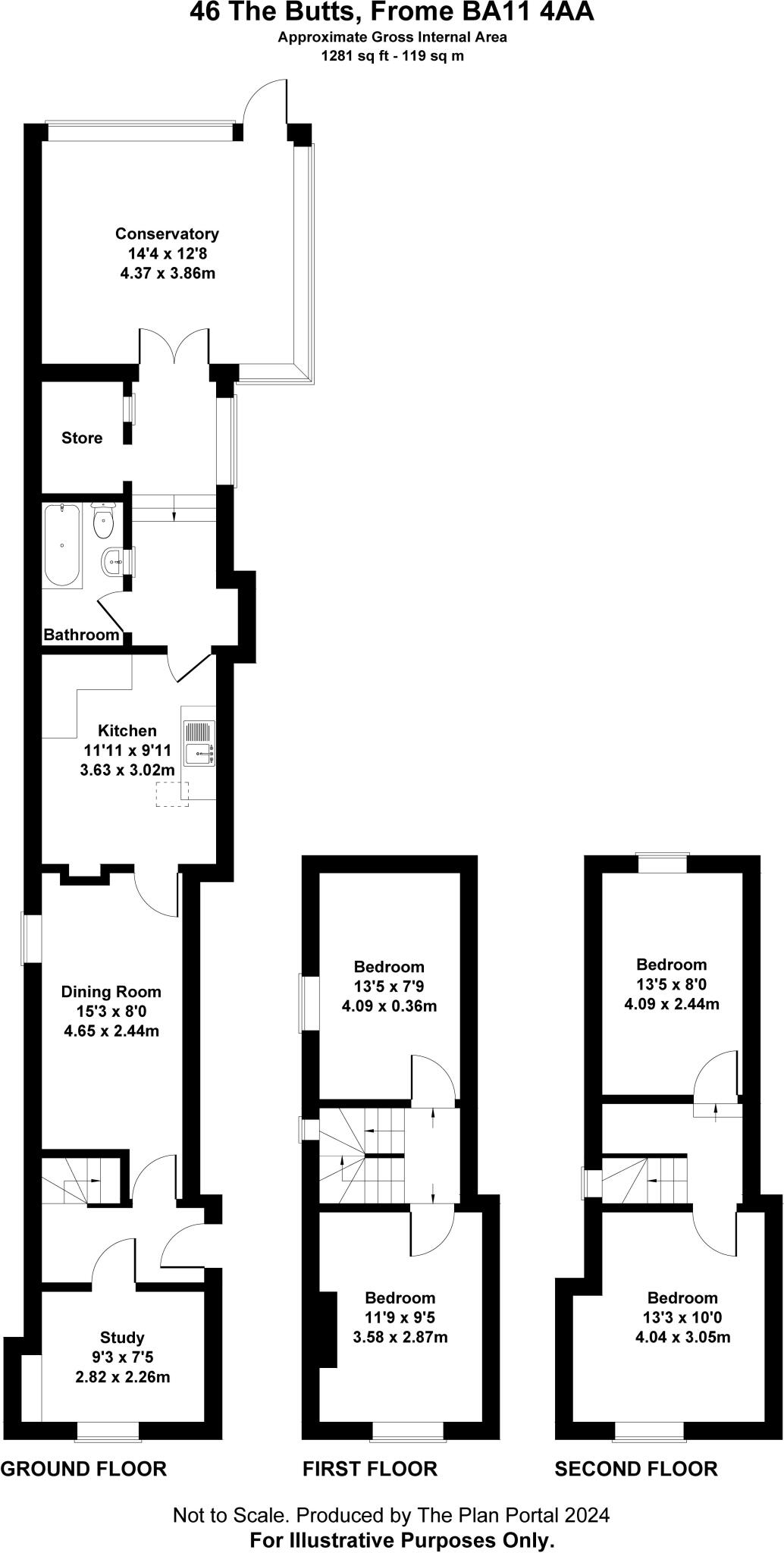
*An interesting and characterful four bedroom three storey period house*Two original receptions in addition to a large conservatory/garden room*Good sized rear garden*Renovation project to create a good sized family home. * No onward chain
Property Oracle says ..
This property is a 4-bedroom, 1-bathroom house located in Frome, Somerset. The list price is £335,000, and the property is 1,280.91 sqft. The average price for properties in the area is £419,163, with an average price per sqft of £310. This property is below average in price per sqft. The property includes a garden and appears to be a period property that requires some renovation. There are several nearby schools and Frome train station is within walking distance.
Therefore, we give this property 5 / 10. *Disclaimer: This is our option and does constitute a recommendation or financial advice. Do your own research. *
- Price
- 6
- Condition
- 4
- Location
- 7
- Land
- 5
- Bedrooms
- 4
- Bathrooms
- 1
- Sqft (est)
- 1,280.91
The heatmap indicates the level of crime in the area. The color of the heatmap indicates the crime severity and recency.
Metrics Year-on-Year
- Average area value
- 356,500.00 £Decreased by 7.90 %
- Est sale value
- 562,319.49 £Increased by 48.31 %
- Average area rental value
- 795.00 £/moDecreased by 21.44 %
- Est letting value
- 0.00 £/mo
- Est rental Yield
- 2.68 %Decreased by 14.65 %
- Crime Rate
- 12.00 %Unchanged by 0.00 %
Agent Activity
McAllisters created the listing.
Nearby Schools
| Name | Type | Ofsted | Distance |
|---|---|---|---|
| Avanti Park School | Free Schools | 0.45 KM | |
| Wessex Lodge School | Other Independent Special School | Good | 0.68 KM |
| St John'S Church Of England Voluntary Aided First School, Frome | Voluntary Aided School | Good | 0.90 KM |
| Vallis First School | Community School | Good | 0.92 KM |
| St Louis Catholic Primary School, Frome | Voluntary Aided School | Good | 0.99 KM |
Images
Nearby Streets
| Name | Average Price | Average Sqft | Distance |
|---|---|---|---|
| Wesley Slope | £ 0 | 0 | 0.00 KM |
| High Street | £ 200,000 | 0 | 0.00 KM |
| Morgan's Lane | £ 0 | 0 | 0.00 KM |
| Sheppard's Barton | £ 0 | 0 | 0.00 KM |
| Broadway | £ 0 | 0 | 0.00 KM |
Nearby Transport
| Name | NLC | TLC | Distance |
|---|---|---|---|
| Frome | 5707 | FRO | 1.87 KM |
Nearby Listings
| Address | Price | Type | Score | Distance |
|---|---|---|---|---|
| The Butts, Frome, Somerset, BA11 | £ 525,000 | BUY | 7 / 10 | 0.00 KM |
| The Butts, Frome, Somerset, BA11 | £ 335,000 | BUY | 5 / 10 | 0.00 KM |
| The Butts, Frome, Somerset, BA11 | £ 269,500 | BUY | 7 / 10 | 0.00 KM |
| The Butts, Frome | £ 575,000 | BUY | 6 / 10 | 0.01 KM |
| Whitewell Road, Frome | £ 350,000 | BUY | 6 / 10 | 0.06 KM |
Nearby Properties
| Address | Price | Distance |
|---|---|---|
| 60 The Butts | £ 229,000 | 0.01 KM |
| 62 The Butts | £ 860,000 | 0.01 KM |
| 30b The Butts | £ 219,523 | 0.01 KM |
| 32 The Butts | £ 440,000 | 0.01 KM |
| 12 The Butts | £ 170,000 | 0.01 KM |