Basford Court, Oxford Road, Newcastle, ST5 0
By Mooved
£ 240,000
Reviews
2 out of 5 stars
Mooved says ..
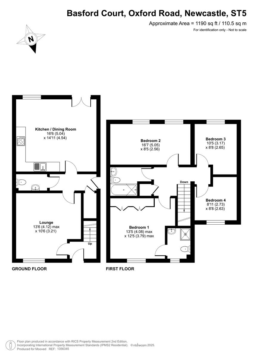
*NO ONWARD CHAIN* Mooved are proud to present this spacious four-bedroom, three-bathroom semi-detached home situated in the modern and well-regarded Basford Court development on Oxford Road, Newcastle-under-Lyme
Property Oracle says ..
The property is a four-bedroom semi-detached house in May Bank, Newcastle-Under-Lyme. It offers three bathrooms, which is a positive feature. However, the property requires some cosmetic updating and the garden needs maintenance. The location is convenient for families with young children, due to the proximity to a highly-rated primary school. The price is slightly below the average for the area, reflecting the condition of the property. Overall, this property presents an opportunity for buyers willing to invest in some renovation work.
Therefore, we give this property 5 / 10. *Disclaimer: This is our option and does constitute a recommendation or financial advice. Do your own research. *
- Price
- 7
- Condition
- 5
- Location
- 7
- Land
- 4
- Bedrooms
- 4
- Bathrooms
- 3
The heatmap indicates the level of crime in the area. The color of the heatmap indicates the crime severity and recency.
Metrics Year-on-Year
- Average area value
- 253,300.00 £Increased by 15.48 %
- Average area rental value
- 823.00 £/moIncreased by 0.73 %
- Est rental Yield
- 3.90 %Decreased by 12.75 %
- Crime Rate
- 6.00 %Unchanged by 0.00 %
Agent Activity
Mooved created the listing.
Nearby Schools
| Name | Type | Ofsted | Distance |
|---|---|---|---|
| May Bank Infants' School | Community School | Outstanding | 0.31 KM |
| St Wulstan'S Catholic Primary School | Academy Converter | Good | 0.72 KM |
| St Margaret'S Cofe (Vc) Junior School | Voluntary Controlled School | Good | 0.87 KM |
| Lyme Brook Independent School | Other Independent Special School | Good | 1.03 KM |
| Demetae Academy | Other Independent School | 1.19 KM |
Images
Nearby Streets
| Name | Average Price | Average Sqft | Distance |
|---|---|---|---|
| East Crescent | £ 249,950 | 0 | 0.00 KM |
| The Avenue | £ 283,475 | 0 | 0.00 KM |
| Walley's Drive | £ 0 | 0 | 0.00 KM |
| Stanley Road | £ 0 | 0 | 0.00 KM |
| West Avenue | £ 370,000 | 0 | 0.00 KM |
Nearby Transport
| Name | NLC | TLC | Distance |
|---|---|---|---|
| Longport | 1305 | LPT | 2.24 KM |
| Stoke-On-Trent | 1314 | SOT | 3.79 KM |
| Kidsgrove | 1229 | KDG | 8.02 KM |
| Longton | 1306 | LGN | 9.05 KM |
Nearby Listings
| Address | Price | Type | Score | Distance |
|---|---|---|---|---|
| Basford Court, Oxford Road, Newcastle, ST5 0 | £ 240,000 | BUY | 5 / 10 | 0.00 KM |
| Oxford Road, Newcastle, ST5 | £ 270,000 | BUY | 7 / 10 | 0.00 KM |
| Basford Court, Basford | £ 270,000 | BUY | 6 / 10 | 0.04 KM |
| Somerville Avenue, Newcastle, Staffordshire, ST5 | £ 250,000 | BUY | 6 / 10 | 0.06 KM |
| Oxford Road, Basford, Newcastle-under-Lyme, ST5 | £ 130,000 | BUY | 7 / 10 | 0.09 KM |
Nearby Properties
| Address | Price | Distance |
|---|---|---|
| 40 Somerville Avenue | £ 143,000 | 0.06 KM |
| 72 Somerville Avenue | £ 140,000 | 0.06 KM |
| 21 Somerville Avenue | £ 87,000 | 0.06 KM |
| 42 Somerville Avenue | £ 91,000 | 0.06 KM |
| 48 Somerville Avenue | £ 167,000 | 0.06 KM |