The Agency UK says ..
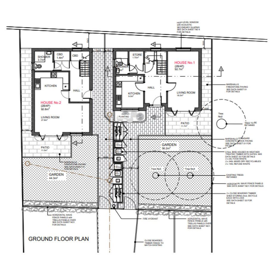
Rear plot on a popular residential road in Streatham with planning permission for the 2x two bedroom, two bathroom detached houses measuring 1,000sq ft per unit. Full Freehold
Property Oracle says ..
Therefore, we give this property 7 / 10. *Disclaimer: This is our option and does constitute a recommendation or financial advice. Do your own research. *
- Price
- 8
- Condition
- 9
- Location
- 7
- Land
- 6
- Bedrooms
- 0
- Bathrooms
- 0
The heatmap indicates the level of crime in the area. The color of the heatmap indicates the crime severity and recency.
Metrics Year-on-Year
- Average area value
- 487,285.00 £Decreased by 7.65 %
- Average area rental value
- 1,920.00 £/moIncreased by 13.27 %
- Est rental Yield
- 4.73 %Increased by 22.86 %
- Crime Rate
- 1.00 %Unchanged by 0.00 %
from 527,656.00 £
from 1,695.00 £/mo
from 3.85 %
from 1.00 %
Agent Activity
The Agency UK marked this listing as sold.
The Agency UK created the listing.
Nearby Schools
| Name | Type | Ofsted | Distance |
|---|---|---|---|
| St Leonard'S Church Of England Primary School | Academy Converter | 0.38 KM | |
| Goldfinch Primary School | Academy Sponsor Led | 0.45 KM | |
| Fayland Children'S Centre | Children's Centre | 0.45 KM | |
| Streatham Hub Children'S Centre | Children's Centre | 0.69 KM | |
| Immanuel And St Andrew Church Of England Primary School | Voluntary Aided School | Outstanding | 0.90 KM |
Images
Nearby Streets
| Name | Average Price | Average Sqft | Distance |
|---|---|---|---|
| Tooting Bec Road | £ 371,429 | 0 | 0.00 KM |
| Tooting Bec Road | £ 400,000 | 0 | 0.00 KM |
| Barrow Road | £ 0 | 0 | 0.00 KM |
| Bedford Hill | £ 1,600,000 | 0 | 0.00 KM |
| Meadfoot Road | £ 550,000 | 0 | 0.00 KM |
Nearby Transport
| Name | NLC | TLC | Distance |
|---|---|---|---|
| Streatham Common | 5384 | SRC | 0.67 KM |
| Streatham | 5383 | STE | 0.72 KM |
| Streatham Hill | 5435 | SRH | 1.93 KM |
| Norbury | 5428 | NRB | 2.28 KM |
| Mitcham Eastfields | 5069 | MTC | 2.63 KM |
Nearby Listings
| Address | Price | Type | Score | Distance |
|---|---|---|---|---|
| Conyers Road, London, SW16 | £ 425,000 | BUY | 7 / 10 | 0.00 KM |
| Conyers Road, London, SW16 | £ 895,000 | BUY | Unknown | 0.02 KM |
| Conyers Road, Streatham, London, SW16 | £ 550,000 | BUY | Unknown | 0.03 KM |
| Conyers Road, Streatham, London, SW16 | £ 560,000 | BUY | 7 / 10 | 0.03 KM |
| Conyers Road, Streatham, London, SW16 | £ 500,000 | BUY | 6 / 10 | 0.03 KM |
Nearby Properties
| Address | Price | Distance |
|---|---|---|
| 48 Conyers Road | £ 334,326 | 0.02 KM |
| 54 Conyers Road | £ 895,000 | 0.02 KM |
| 14 Conyers Road | £ 369,250 | 0.02 KM |
| 68 Conyers Road | £ 288,000 | 0.03 KM |
| 16 Conyers Road | £ 225,000 | 0.03 KM |