Romans says ..
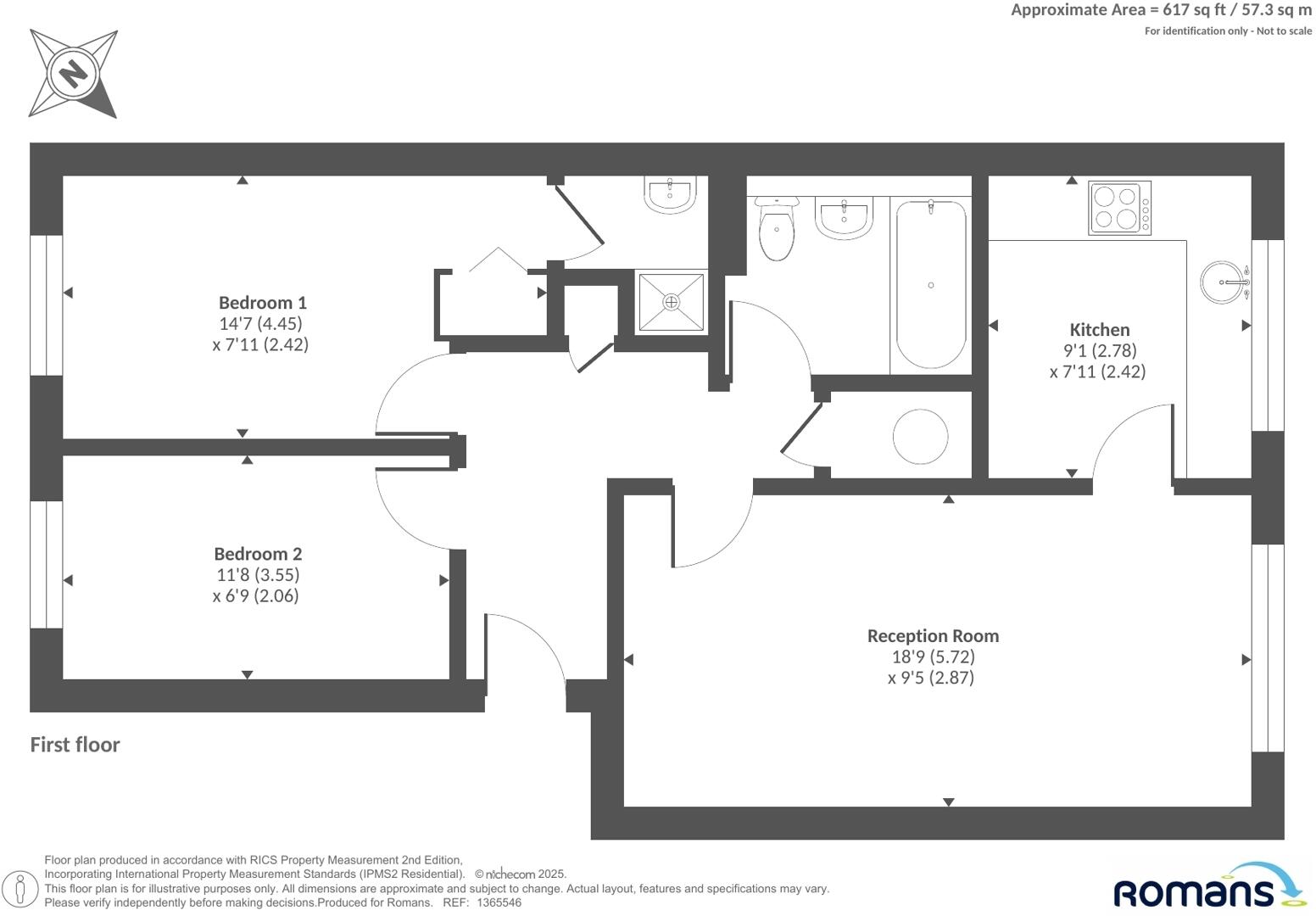
*NO ONWARD CHAIN* A first floor two bedroom flat which could benefit from cosmetic improvements and bosts an extended lease. Tucked away in a quiet location close to local amenities, the property offers a pleasant positon with an outlook over school playing fields. The accommodat...
Property Oracle says ..
This is a 2-bedroom apartment located in Clewer East, Windsor. The property is listed for £250,000 and has a square footage of 895.77. The apartment is situated in a convenient location, close to schools and transportation links. While the property is functional, it would benefit from some modernisation, particularly in the kitchen and bathrooms. The lack of private garden space is a drawback, but there is access to a communal green area. Overall, the price seems reasonable for the location and size of the property, but potential buyers should factor in the cost of renovations.
Therefore, we give this property 5 / 10. *Disclaimer: This is our option and does constitute a recommendation or financial advice. Do your own research. *
- Price
- 8
- Condition
- 5
- Location
- 7
- Land
- 3
- Bedrooms
- 2
- Bathrooms
- 2
- Sqft (est)
- 895.77
The heatmap indicates the level of crime in the area. The color of the heatmap indicates the crime severity and recency.
Metrics Year-on-Year
- Average area value
- 642,500.00 £Increased by 19.85 %
- Est sale value
- 541,045.08 £Increased by 12.06 %
- Average area rental value
- 4,119.00 £/moIncreased by 88.17 %
- Est letting value
- 2,687.31 £/moIncreased by 50.00 %
- Est rental Yield
- 7.69 %Increased by 56.94 %
- Crime Rate
- 4.00 %Unchanged by 0.00 %
Agent Activity
Romans created the listing.
Nearby Schools
| Name | Type | Ofsted | Distance |
|---|---|---|---|
| Clewer Green Cofe First School | Academy Converter | 0.14 KM | |
| Windsor Girls' School | Academy Converter | 0.62 KM | |
| Hilltop First School | Community School | Outstanding | 0.74 KM |
| The Manor Children'S Centre | Children's Centre | 0.83 KM | |
| The Lawns Nursery School And Children'S Centre | Children's Centre | 0.92 KM |
Images
Nearby Streets
| Name | Average Price | Average Sqft | Distance |
|---|---|---|---|
| Little Buntings | £ 0 | 0 | 0.00 KM |
| Tyrell Gardens | £ 0 | 0 | 0.00 KM |
| Pinewood Place | £ 500,000 | 0 | 0.00 KM |
| Harrington Close | £ 0 | 0 | 0.00 KM |
| Bell View | £ 800,000 | 0 | 0.00 KM |
Nearby Transport
| Name | NLC | TLC | Distance |
|---|---|---|---|
| Windsor And Eton Central | 3175 | WNC | 2.88 KM |
| Windsor And Eton Riverside | 5672 | WNR | 3.38 KM |
| Burnham | 3176 | BNM | 5.68 KM |
| Datchet | 5668 | DAT | 6.20 KM |
| Slough | 3172 | SLO | 6.38 KM |
Nearby Listings
| Address | Price | Type | Score | Distance |
|---|---|---|---|---|
| Firs Avenue, Windsor | £ 250,000 | BUY | 5 / 10 | 0.00 KM |
| Windsor, Berkshire, SL4 | £ 300,000 | BUY | 6 / 10 | 0.04 KM |
| Firs Avenue, Windsor, Berkshire, SL4 | £ 459,950 | BUY | 7 / 10 | 0.06 KM |
| Firs Avenue, Windsor, Berkshire | £ 295,000 | BUY | 6 / 10 | 0.07 KM |
| Firs Avenue, Windsor, Berkshire | £ 440,000 | BUY | 7 / 10 | 0.09 KM |
Nearby Properties
| Address | Price | Distance |
|---|---|---|
| 14 Firs Avenue | £ 240,000 | 0.06 KM |
| 17 Firs Avenue | £ 285,000 | 0.06 KM |
| 18 Firs Avenue | £ 225,000 | 0.06 KM |
| 19 Firs Avenue | £ 98,950 | 0.06 KM |
| 1 Firs Avenue | £ 300,000 | 0.06 KM |