Felicity J Lord says ..
Beautifully appointed three double bedroom semi family home which the current owner has refurbished and maintained to an excellent standard
Property Oracle says ..
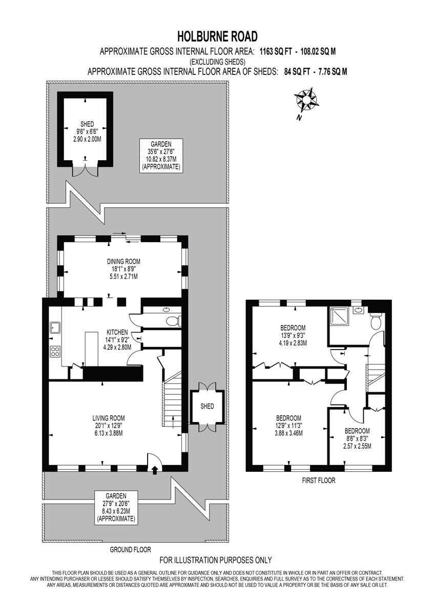
The property is a 3-bedroom, 1-bathroom semi-detached house located in Kidbrooke With Hornfair, Greenwich, London. It benefits from proximity to good schools and Kidbrooke train station. The property is in excellent condition, recently modernised with a contemporary extension and well-maintained interior. It includes a garden with a shed. While the price per square foot is below the area average, the modern updates and condition may justify the price. More market data would help determine the price reasonableness.
Therefore, we give this property 8 / 10. *Disclaimer: This is our option and does constitute a recommendation or financial advice. Do your own research. *
- Price
- 8
- Condition
- 9
- Location
- 8
- Land
- 7
- Bedrooms
- 3
- Bathrooms
- 1
- Sqft (est)
- 1,162.72
The heatmap indicates the level of crime in the area. The color of the heatmap indicates the crime severity and recency.
Metrics Year-on-Year
- Average area value
- 569,167.00 £Increased by 19.48 %
- Est sale value
- 708,096.48 £Increased by 8.17 %
- Average area rental value
- 1,814.00 £/moIncreased by 1.06 %
- Est letting value
- 1,162.72 £/moDecreased by 50.00 %
- Est rental Yield
- 3.82 %Decreased by 15.49 %
- Crime Rate
- 1.00 %Unchanged by 0.00 %
Agent Activity
Felicity J Lord created the listing.
Nearby Schools
| Name | Type | Ofsted | Distance |
|---|---|---|---|
| Kidbrooke Park Primary School | Community School | Good | 0.28 KM |
| Cherry Orchard Primary School | Community School | Good | 0.64 KM |
| Charlton Manor Primary School | Community School | Good | 0.75 KM |
| The Halley Academy | Academy Sponsor Led | 0.78 KM | |
| Storkway And Shooter'S Hill Children'S Centre | Children's Centre | 0.87 KM |
Images
Nearby Streets
| Name | Average Price | Average Sqft | Distance |
|---|---|---|---|
| Chichester Close | £ 0 | 0 | 0.00 KM |
| Old Dover Road | £ 0 | 0 | 0.00 KM |
| Rochester Way | £ 1,000,000 | 0 | 0.00 KM |
| Elm Tree Court | £ 300,000 | 0 | 0.00 KM |
| Reynolds Place | £ 950,000 | 0 | 0.00 KM |
Nearby Transport
| Name | NLC | TLC | Distance |
|---|---|---|---|
| Kidbrooke | 5108 | KDB | 1.26 KM |
| Charlton | 5144 | CTN | 1.79 KM |
| Westcombe Park | 5151 | WCB | 2.30 KM |
| Eltham | 5103 | ELW | 2.63 KM |
| Blackheath | 5095 | BKH | 2.90 KM |
Nearby Listings
| Address | Price | Type | Score | Distance |
|---|---|---|---|---|
| Holburne Road, London SE3 | £ 500,000 | BUY | 8 / 10 | 0.00 KM |
| Holburne Road, Blackheath, London, SE3 | £ 625,000 | BUY | 7 / 10 | 0.01 KM |
| Holburne Road, Blackheath | £ 425,000 | BUY | 7 / 10 | 0.05 KM |
| Wricklemarsh Road, London, SE3 | £ 625,000 | BUY | 7 / 10 | 0.13 KM |
| Wricklemarsh Road, London | £ 625,000 | BUY | 5 / 10 | 0.13 KM |
Nearby Properties
| Address | Price | Distance |
|---|---|---|
| 112 Holburne Road | £ 73,000 | 0.03 KM |
| 98 Holburne Road | £ 370,000 | 0.03 KM |
| 116 Holburne Road | £ 220,000 | 0.03 KM |
| 96 Holburne Road | £ 187,000 | 0.03 KM |
| 100 Holburne Road | £ 450,000 | 0.03 KM |