Inkerman Road, Knaphill, Woking, Surrey, GU21
By Seymours Estate Agents
£ 350,000
Reviews
3 out of 5 stars
Seymours Estate Agents says ..
This terraced home is located in a sought after residential area, ideally positioned within easy reach of St Johns village. The village offers a variety of local amenities and excellent bus connections to Woking Town Centre. Woking’s mainline station provides fast, regular services to Londo...
Property Oracle says ..
This two-bedroom terraced house on Inkerman Road, Knaphill, Woking, presents a good opportunity for buyers. The property features a garden and is situated in a location with access to local schools and transportation. While the house could benefit from some modernisation, it is in a generally reasonable condition. The asking price of £350,000 is slightly above the local average per square foot but appears justifiable given the property’s features and location. Overall, this property offers a blend of suburban convenience and potential for enhancement.
Therefore, we give this property 6 / 10. *Disclaimer: This is our option and does constitute a recommendation or financial advice. Do your own research. *
- Price
- 7
- Condition
- 5
- Location
- 6
- Land
- 7
- Bedrooms
- 2
- Bathrooms
- 1
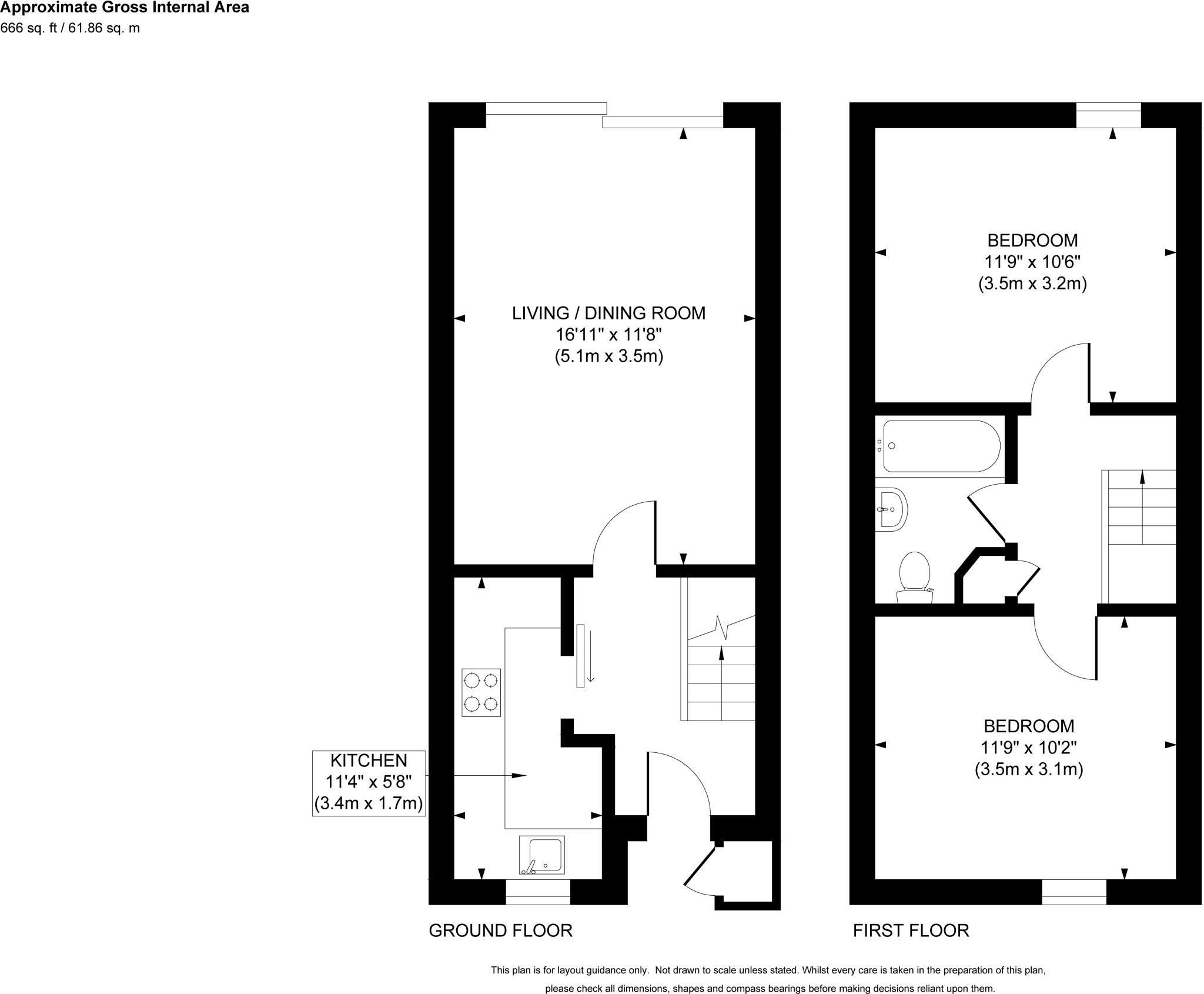
- Sqft (est)
- 665.86
The heatmap indicates the level of crime in the area. The color of the heatmap indicates the crime severity and recency.
Metrics Year-on-Year
- Average area value
- 586,400.00 £Increased by 18.76 %
- Est sale value
- 316,949.36 £Increased by 6.01 %
- Average area rental value
- 2,150.00 £/moIncreased by 9.47 %
- Est letting value
- 665.86 £/moUnchanged by 0.00 %
- Est rental Yield
- 4.40 %Decreased by 7.76 %
- Crime Rate
- 1.00 %Unchanged by 0.00 %
Agent Activity
Seymours Estate Agents created the listing.
Nearby Schools
| Name | Type | Ofsted | Distance |
|---|---|---|---|
| St John'S Primary School | Academy Sponsor Led | Requires improvement | 0.14 KM |
| St John'S Primary School And Sure Start Children'S Centre | Children's Centre | 0.14 KM | |
| The Oaktree School | Academy Converter | 0.49 KM | |
| St Hugh Of Lincoln Catholic Primary School | Academy Converter | Good | 0.52 KM |
| The Hermitage School | Academy Converter | Good | 0.57 KM |
Images
Nearby Streets
| Name | Average Price | Average Sqft | Distance |
|---|---|---|---|
| Oakway | £ 475,000 | 0 | 0.00 KM |
| Beechwood Close | £ 0 | 0 | 0.00 KM |
| Oakwood Road | £ 0 | 0 | 0.00 KM |
| Elmgrove Close | £ 425,000 | 0 | 0.00 KM |
| Robin Hood Roundabout cycle path | £ 0 | 0 | 0.00 KM |
Nearby Transport
| Name | NLC | TLC | Distance |
|---|---|---|---|
| Brookwood | 5687 | BKO | 3.41 KM |
| Worplesdon | 5686 | WPL | 3.88 KM |
| Woking | 5685 | WOK | 5.53 KM |
| Longcross | 5674 | LNG | 8.01 KM |
| Guildford | 5631 | GLD | 9.08 KM |
Nearby Listings
| Address | Price | Type | Score | Distance |
|---|---|---|---|---|
| Inkerman Road, Knaphill, Woking, Surrey, GU21 | £ 350,000 | BUY | 6 / 10 | 0.00 KM |
| Inkerman Road, Knaphill, Woking, Surrey, GU21 | £ 179,950 | BUY | Unknown | 0.02 KM |
| Inkerman Road, Knaphill, Surrey, GU21 | £ 150,000 | BUY | 5 / 10 | 0.02 KM |
| Inkerman Road, Knaphill, Woking, Surrey, GU21 | £ 350,000 | BUY | 6 / 10 | 0.10 KM |
| Inkerman Road, Knaphill, Woking, Surrey, GU21 | £ 259,950 | BUY | 6 / 10 | 0.12 KM |
Nearby Properties
| Address | Price | Distance |
|---|---|---|
| 29 Inkerman Road | £ 381,000 | 0.01 KM |
| 13 Inkerman Road | £ 246,000 | 0.01 KM |
| 39 Inkerman Road | £ 171,000 | 0.01 KM |
| 37 Inkerman Road | £ 140,000 | 0.01 KM |
| 33 Inkerman Road | £ 244,000 | 0.01 KM |