Ffordd Garthorne, Rimini House Ffordd Garthorne, CF10
By Number One Real Estate
£ 170,000
Reviews
2 out of 5 stars
Number One Real Estate says ..
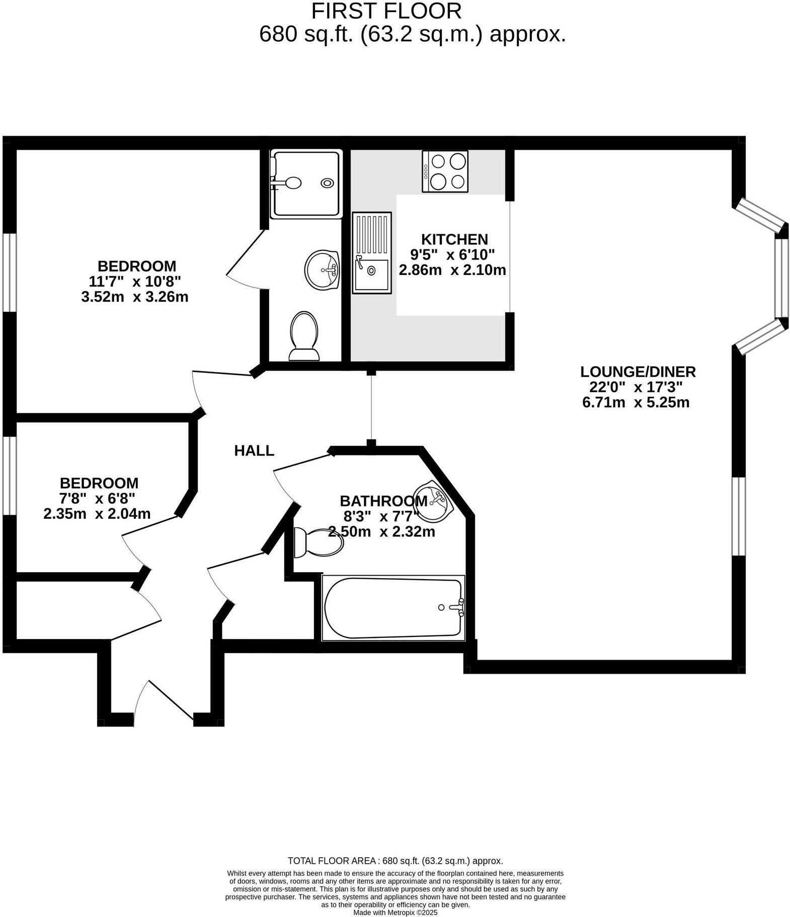
**GUIDE PRICE £170,000 - £180,000**FIRST FLOOR APARTMENT**TWO BEDROOMS**EN-SUITE**LOUNGE/DINER**IDEAL LOCATION**
Property Oracle says ..
Therefore, we give this property 5 / 10. *Disclaimer: This is our option and does constitute a recommendation or financial advice. Do your own research. *
- Price
- 8
- Condition
- 7
- Location
- 7
- Land
- 1
- Bedrooms
- 2
- Bathrooms
- 1
- Sqft (est)
- 680.00
The heatmap indicates the level of crime in the area. The color of the heatmap indicates the crime severity and recency.
Metrics Year-on-Year
- Average area value
- 188,113.00 £Decreased by 7.14 %
- Est sale value
- 210,120.00 £Increased by 17.05 %
- Average area rental value
- 1,351.00 £/moDecreased by 5.26 %
- Est letting value
- 1,360.00 £/moIncreased by 100.00 %
- Est rental Yield
- 8.62 %Increased by 2.01 %
- Crime Rate
- 1.00 %Unchanged by 0.00 %
from 202,577.00 £
from 179,520.00 £
from 1,426.00 £/mo
from 680.00 £/mo
from 8.45 %
from 1.00 %
Agent Activity
Number One Real Estate created the listing.
Nearby Schools
| Name | Type | Ofsted | Distance |
|---|---|---|---|
| St Cuthbert'S R.C. Primary School | Welsh Establishment | 0.33 KM | |
| Mount Stuart Primary | Welsh Establishment | 0.65 KM | |
| St Mary The Virgin C.I.W. Primary School | Welsh Establishment | 0.85 KM | |
| Ysgol Gynradd Gymraeg Hamadryad | Welsh Establishment | 1.21 KM | |
| Act Schools | Welsh Establishment | 1.40 KM |
Images
Nearby Streets
| Name | Average Price | Average Sqft | Distance |
|---|---|---|---|
| Garthorne Road | £ 149,975 | 0 | 0.00 KM |
| Hemingway Road | £ 190,000 | 0 | 0.00 KM |
| Hannah Street | £ 0 | 0 | 0.00 KM |
| Magretion Place | £ 247,500 | 0 | 0.00 KM |
| Silurian Place | £ 155,000 | 0 | 0.00 KM |
Nearby Transport
| Name | NLC | TLC | Distance |
|---|---|---|---|
| Cardiff Bay | 3815 | CDB | 0.26 KM |
| Cardiff Queen Street | 3900 | CDQ | 1.44 KM |
| Cardiff Central | 3899 | CDF | 1.55 KM |
| Grangetown (Cardiff) | 3839 | GTN | 2.52 KM |
| Cathays | 3820 | CYS | 2.53 KM |
Nearby Listings
| Address | Price | Type | Score | Distance |
|---|---|---|---|---|
| Rimini House, Lloyd George Avenue, Cardiff, CF10 | £ 145,000 | BUY | 6 / 10 | 0.00 KM |
| Ffordd Garthorne, Rimini House Ffordd Garthorne, CF10 | £ 170,000 | BUY | 5 / 10 | 0.00 KM |
| Ffordd Garthorne, Cardiff | £ 180,000 | BUY | 6 / 10 | 0.03 KM |
| Rimini House, Ffordd Garthorne, Cardiff Bay | £ 177,500 | BUY | 6 / 10 | 0.03 KM |
| Livorno House, Ffordd Garthorne, Cardiff | £ 180,000 | BUY | 6 / 10 | 0.05 KM |
Nearby Properties
| Address | Price | Distance |
|---|---|---|
| 14 Barquentine Place | £ 355,000 | 0.18 KM |
| 8 Barquentine Place | £ 240,000 | 0.18 KM |
| 3 Barquentine Place | £ 420,000 | 0.18 KM |
| 10 Barquentine Place | £ 348,000 | 0.18 KM |
| 12 Barquentine Place | £ 360,000 | 0.18 KM |