Beechwood Avenue, Staines-upon-Thames, TW18
By Gregory Brown
£ 460,000
Reviews
2 out of 5 stars
Gregory Brown says ..
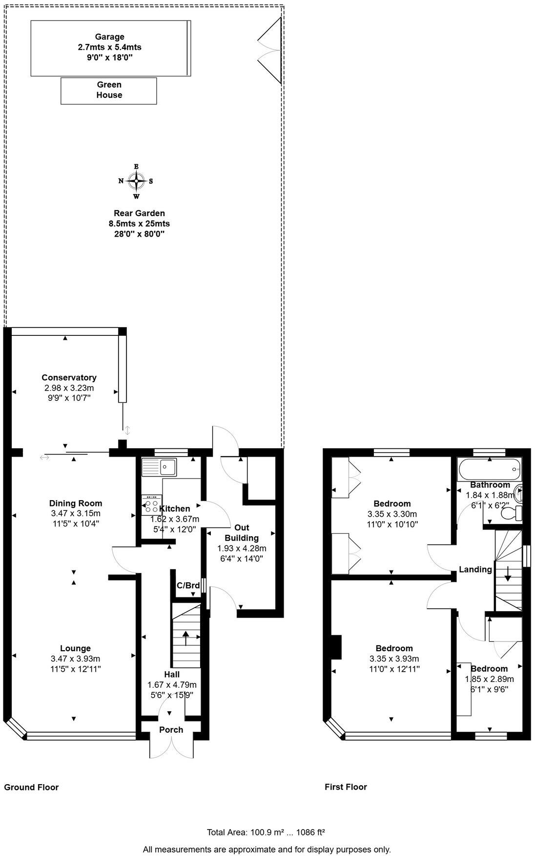
OFFERING GREAT SCOPE FOR IMPROVEMENT/EXTENSION (S.T.R.P.P) IS THIS SPACIOUS THREE BEDROOM SEMI-DETACHED PROPERTY SITUATED ALONG THIS MUCH SOUGHT AFTER ROAD IDEALLY POSITIONED FOR EASY ACCESS TO STAINES TOWN CENTRE, LOCAL SHOPS & SCHOOLS. The property benefits from a spacious lounge/diner, ...
Property Oracle says ..
This three-bedroom semi-detached house in Staines-upon-Thames is listed at £460,000. The property is situated on Beechwood Avenue, a residential street with nearby schools, transportation links, and local shops. The average house price in the area is significantly higher at £729,279, and the average price per square foot is £307. This property, at 1,086.08 sqft, is considerably smaller than the average for the area. The property shows its age and is in need of modernisation and updating. The kitchen and bathrooms appear dated and require renovation. The garden is present but requires attention and landscaping. Considering the condition, size, and location relative to the average property price in the area, the asking price appears reasonable, though potentially slightly on the higher side given the required renovations.
Therefore, we give this property 5 / 10. *Disclaimer: This is our option and does constitute a recommendation or financial advice. Do your own research. *
- Price
- 6
- Condition
- 4
- Location
- 7
- Land
- 5
- Bedrooms
- 3
- Bathrooms
- 1
- Sqft (est)
- 1,086.08
The heatmap indicates the level of crime in the area. The color of the heatmap indicates the crime severity and recency.
Metrics Year-on-Year
- Average area value
- 675,000.00 £Increased by 43.07 %
- Est sale value
- 443,120.64 £Decreased by 18.24 %
- Average area rental value
- 2,200.00 £/moIncreased by 22.22 %
- Est letting value
- 1,086.08 £/moUnchanged by 0.00 %
- Est rental Yield
- 3.91 %Decreased by 14.63 %
- Crime Rate
- 5.00 %Unchanged by 0.00 %
Agent Activity
Gregory Brown created the listing.
Nearby Schools
| Name | Type | Ofsted | Distance |
|---|---|---|---|
| The Matthew Arnold School | Academy Converter | Good | 0.59 KM |
| Buckland Primary School | Community School | Good | 0.86 KM |
| Buckland Sure Start Children'S Centre | Children's Centre | 0.89 KM | |
| Staines Preparatory School | Other Independent School | 1.04 KM | |
| Riverbridge Primary School | Academy Converter | Good | 1.12 KM |
Images
Nearby Streets
| Name | Average Price | Average Sqft | Distance |
|---|---|---|---|
| Warwick Avenue | £ 0 | 0 | 0.00 KM |
| Parkside Place | £ 0 | 0 | 0.00 KM |
| Strode's Crescent | £ 0 | 0 | 0.00 KM |
| The Sidings | £ 0 | 0 | 0.00 KM |
| Berryscroft Court | £ 131,667 | 0 | 0.00 KM |
Nearby Transport
| Name | NLC | TLC | Distance |
|---|---|---|---|
| Staines | 5670 | SNS | 1.36 KM |
| Ashford (Surrey) | 5667 | AFS | 3.01 KM |
| Chertsey | 5553 | CHY | 4.65 KM |
| Heathrow Terminal 5 | 9846 | HWV | 4.96 KM |
| Addlestone | 5550 | ASN | 5.93 KM |
Nearby Listings
| Address | Price | Type | Score | Distance |
|---|---|---|---|---|
| Beechwood Avenue, Staines-upon-Thames, TW18 | £ 460,000 | BUY | 5 / 10 | 0.00 KM |
| Worple Avenue, Staines-upon-Thames, Surrey, TW18 | £ 565,000 | BUY | 7 / 10 | 0.08 KM |
| Worple Avenue, Staines-upon-Thames, Surrey, TW18 | £ 565,000 | BUY | 7 / 10 | 0.08 KM |
| Worple Avenue, Staines-upon-Thames | £ 500,000 | BUY | Unknown | 0.11 KM |
| Beechwood Avenue, Staines, Surrey, TW18 | £ 550,000 | BUY | 6 / 10 | 0.12 KM |
Nearby Properties
| Address | Price | Distance |
|---|---|---|
| 28 Beechwood Avenue | £ 445,000 | 0.01 KM |
| 20 Beechwood Avenue | £ 225,000 | 0.01 KM |
| 17 Beechwood Avenue | £ 522,000 | 0.01 KM |
| 13 Beechwood Avenue | £ 305,000 | 0.01 KM |
| 21 Beechwood Avenue | £ 615,000 | 0.01 KM |