NA
Barley Close, Cam, Dursley
By Naylor Powell
£ 410,000
Naylor Powell says ..
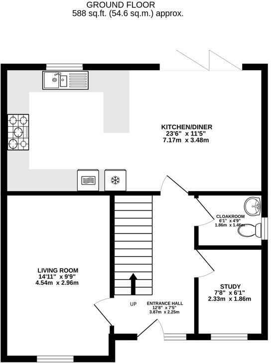
Constructed in 2022 and situated Barley Close, this detached house offers a perfect blend of modern living and comfort. Spanning an impressive 1,167 square feet, the property boasts a cosy living room, study and light and airy kitchen diner, ideal for both entertaining guests and enjoying quiet f...
- Bedrooms
- 4
- Bathrooms
- 2
The heatmap indicates the level of crime in the area. The color of the heatmap indicates the crime severity and recency.
Metrics Year-on-Year
- Average area value
- 251,538.00 £Increased by 21.55 %
- Average area rental value
- 754.00 £/moDecreased by 18.22 %
- Est rental Yield
- 3.60 %Decreased by 32.71 %
- Crime Rate
- 50.00 %Unchanged by 0.00 %
from 206,948.00 £
from 922.00 £/mo
from 5.35 %
from 50.00 %
Agent Activity
Naylor Powell created the listing.
Nearby Schools
| Name | Type | Ofsted | Distance |
|---|---|---|---|
| Slimbridge Primary School | Community School | Good | 1.84 KM |
| Cam Hopton Church Of England Primary School | Voluntary Aided School | Good | 1.97 KM |
| Cam Everlands Primary School | Community School | Good | 2.08 KM |
| Cam Woodfield Junior School | Academy Sponsor Led | 2.44 KM | |
| Cam Woodfield Infant School | Community School | Good | 2.44 KM |
Images
Nearby Streets
| Name | Average Price | Average Sqft | Distance |
|---|---|---|---|
| Barley Close | £ 472,500 | 0 | 0.00 KM |
| Otter Way | £ 0 | 0 | 0.00 KM |
| Pippen Leaze | £ 452,500 | 0 | 0.00 KM |
| Whatling Way | £ 226,875 | 0 | 0.00 KM |
| Brunel Road | £ 445,000 | 0 | 0.00 KM |
Nearby Transport
| Name | NLC | TLC | Distance |
|---|---|---|---|
| Cam And Dursley | 3238 | CDU | 0.48 KM |
| Stonehouse | 4770 | SHU | 9.67 KM |
Nearby Listings
| Address | Price | Type | Score | Distance |
|---|---|---|---|---|
| Barley Close, Cam, Dursley | £ 410,000 | BUY | Unknown | 0.00 KM |
| Barley Close, Cam, Dursley, Gloucestershire, GL11 | £ 425,000 | BUY | 6 / 10 | 0.00 KM |
| Otter Way, Cam, Dursley, Gloucestershire, GL11 | £ 320,000 | BUY | 7 / 10 | 0.05 KM |
| Barley Close, Cam, Dursley, Gloucestershire, GL11 | £ 520,000 | BUY | 7 / 10 | 0.05 KM |
| Barley Close, Dursley, Gloucestershire | £ 465,000 | BUY | 7 / 10 | 0.05 KM |
Nearby Properties
| Address | Price | Distance |
|---|---|---|
| 29 Box Road | £ 237,000 | 0.24 KM |
| 25 Box Road | £ 230,000 | 0.24 KM |
| 13 Box Road | £ 250,000 | 0.24 KM |
| 3 Box Road | £ 375,000 | 0.24 KM |
| 21 Box Road | £ 305,000 | 0.25 KM |