Simon Blyth says ..
A DOUBLE FRONTED, END TERRACE HOME BOASTING PERIOD CHARM AND CHARACTER FEATURES, AND SITUATED IN THE POPULAR VILLAGE OF NETHERTON.
Property Oracle says ..
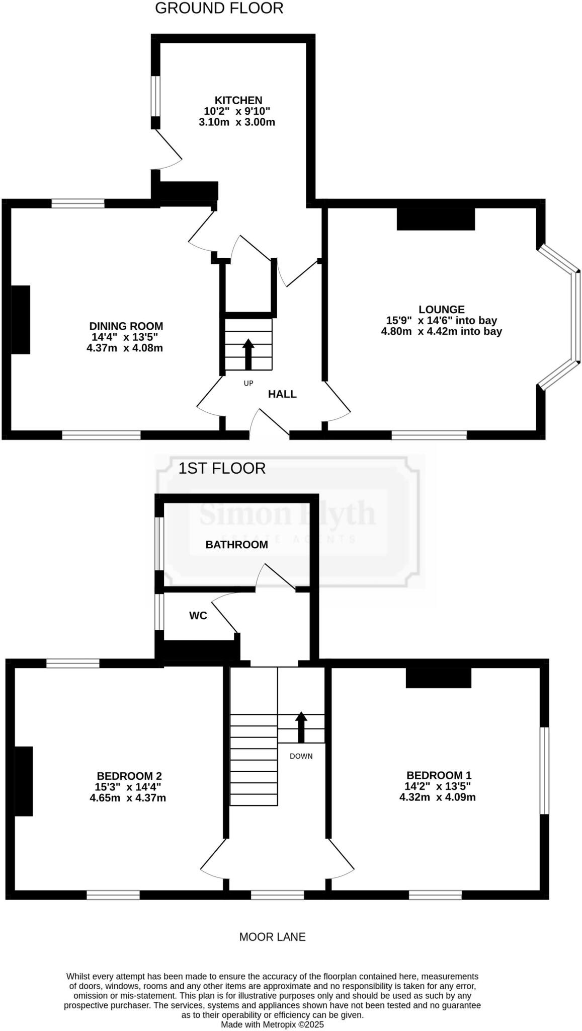
This end-of-terrace property on Moor Lane, Huddersfield, presents a mixed bag. Its location offers proximity to schools and transport links, making it suitable for families and commuters. However, the property’s condition suggests a need for renovation, which could be a drawback for some buyers. The limited land is also a factor to consider. On the plus side, the asking price of £210,000 appears reasonable compared to the average property price in the area. The property retains some traditional features, adding character. Overall, this property offers potential for those willing to undertake some renovation work in a convenient location.
Therefore, we give this property 5 / 10. *Disclaimer: This is our option and does constitute a recommendation or financial advice. Do your own research. *
- Price
- 7
- Condition
- 5
- Location
- 7
- Land
- 4
- Bedrooms
- 2
- Bathrooms
- 1
The heatmap indicates the level of crime in the area. The color of the heatmap indicates the crime severity and recency.
Metrics Year-on-Year
- Average area value
- 274,970.00 £Increased by 37.10 %
- Average area rental value
- 758.00 £/moDecreased by 5.13 %
- Est rental Yield
- 3.31 %Decreased by 30.75 %
- Crime Rate
- 11.00 %Unchanged by 0.00 %
Agent Activity
Simon Blyth created the listing.
Nearby Schools
| Name | Type | Ofsted | Distance |
|---|---|---|---|
| South Crosland Church Of England Voluntary Aided Junior School | Voluntary Aided School | Good | 0.05 KM |
| Netherton Infant And Nursery School | Academy Converter | 0.34 KM | |
| Beaumont Primary Academy | Free Schools | Good | 1.66 KM |
| Moor End Academy | Academy Converter | Outstanding | 1.75 KM |
| Crosland Moor Children'S Centre | Children's Centre | 2.09 KM |
Images
Nearby Streets
| Name | Average Price | Average Sqft | Distance |
|---|---|---|---|
| Crescent Road | £ 0 | 0 | 0.00 KM |
| The Fellows | £ 0 | 0 | 0.00 KM |
| Mercer Close | £ 0 | 0 | 0.00 KM |
| Cornbank | £ 550,000 | 0 | 0.00 KM |
| Scar Top | £ 0 | 0 | 0.00 KM |
Nearby Transport
| Name | NLC | TLC | Distance |
|---|---|---|---|
| Berry Brow | 8431 | BBW | 2.08 KM |
| Lockwood | 8443 | LCK | 2.54 KM |
| Honley | 8436 | HOY | 3.38 KM |
| Huddersfield | 8437 | HUD | 4.79 KM |
| Brockholes | 8429 | BHS | 4.95 KM |
Nearby Listings
| Address | Price | Type | Score | Distance |
|---|---|---|---|---|
| Moor Lane, Huddersfield, HD4 | £ 210,000 | BUY | 5 / 10 | 0.00 KM |
| Crescent Road, Netherton, HD4 | £ 260,000 | BUY | 7 / 10 | 0.03 KM |
| Moor Lane, Netherton, Huddersfield, HD4 | £ 210,000 | BUY | 7 / 10 | 0.04 KM |
| Moor Lane, Netherton, Huddersfield, West Yorkshire, HD4 | £ 230,000 | BUY | 6 / 10 | 0.11 KM |
| Moor Lane, Netherton, Huddersfield, HD4 | £ 250,000 | BUY | 6 / 10 | 0.11 KM |
Nearby Properties
| Address | Price | Distance |
|---|---|---|
| 10 Crescent Road | £ 210,500 | 0.08 KM |
| 1 Crescent Road | £ 193,000 | 0.08 KM |
| 27 Crescent Road | £ 113,000 | 0.08 KM |
| 8 Crescent Road | £ 130,000 | 0.08 KM |
| 2 Crescent Road | £ 252,500 | 0.08 KM |