Ridgeway, Fenham, Newcastle upon Tyne
By Bailey & Co.
£ 285,000
Reviews
3 out of 5 stars
Bailey & Co. says ..
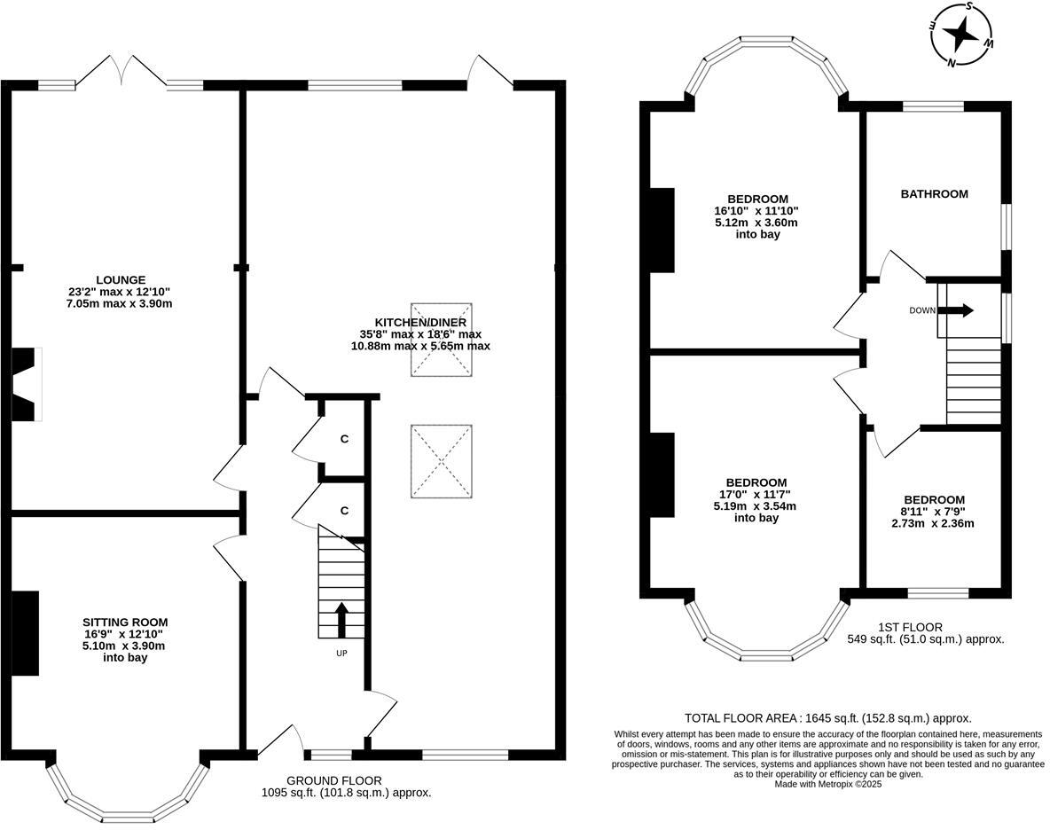
FULLY REFURBISHED and EXTENDED with a 35FT KITCHEN DINER and a SOUTH FACING REAR GARDEN! This well presented, 1930's semi-detached family home is ideally located on Ridgeway, Fenham. Ridgeway is well situated for easy access to the local shops and amenities of Fenham Hall Drive, close to the surr...
Property Oracle says ..
Therefore, we give this property 7 / 10. *Disclaimer: This is our option and does constitute a recommendation or financial advice. Do your own research. *
- Price
- 7
- Condition
- 9
- Location
- 8
- Land
- 7
- Bedrooms
- 3
- Bathrooms
- 1
- Sqft (est)
- 1,645.00
The heatmap indicates the level of crime in the area. The color of the heatmap indicates the crime severity and recency.
Metrics Year-on-Year
- Average area value
- 246,857.00 £Increased by 3.50 %
- Est sale value
- 282,940.00 £Decreased by 13.57 %
- Average area rental value
- 1,093.00 £/moDecreased by 3.36 %
- Est letting value
- 0.00 £/mo
- Est rental Yield
- 5.31 %Decreased by 6.68 %
- Crime Rate
- 4.00 %Unchanged by 0.00 %
from 238,516.00 £
from 327,355.00 £
from 1,131.00 £/mo
from 0.00 £/mo
from 5.69 %
from 4.00 %
Agent Activity
Bailey & Co. marked this listing as sold.
Bailey & Co. created the listing.
Nearby Schools
| Name | Type | Ofsted | Distance |
|---|---|---|---|
| Dame Allan'S Senior School | Other Independent School | 0.62 KM | |
| Sacred Heart Catholic High School | Academy Converter | Outstanding | 0.96 KM |
| Sacred Heart Primary School | Academy Converter | 0.97 KM | |
| Fenham And North Fenham Children'S Centre | Children's Centre Linked Site | 0.99 KM | |
| Wingrove Primary School | Foundation School | Good | 1.09 KM |
Images
Nearby Streets
| Name | Average Price | Average Sqft | Distance |
|---|---|---|---|
| Rose Terrace | £ 0 | 0 | 0.00 KM |
| Fenham Hall Drive | £ 135,000 | 0 | 0.00 KM |
| Eastern Way | £ 0 | 0 | 0.00 KM |
| Arden Crescent | £ 0 | 0 | 0.00 KM |
| Mansell Place | £ 0 | 0 | 0.00 KM |
Nearby Transport
| Name | NLC | TLC | Distance |
|---|---|---|---|
| Metrocentre | 7725 | MCE | 3.56 KM |
| Dunston | 7744 | DOT | 4.34 KM |
| Newcastle | 7728 | NCL | 4.41 KM |
| Manors | 7603 | MAS | 5.49 KM |
| Blaydon | 7503 | BLO | 7.12 KM |
Nearby Listings
| Address | Price | Type | Score | Distance |
|---|---|---|---|---|
| Ridgeway, Fenham, Newcastle upon Tyne | £ 285,000 | BUY | 7 / 10 | 0.00 KM |
| Ridgeway, Fenham, NE4 | £ 325,000 | BUY | 6 / 10 | 0.10 KM |
| Ridgeway, Newcastle upon Tyne, NE4 | £ 270,000 | BUY | 6 / 10 | 0.11 KM |
| Friarside Road, Fenham, Newcastle Upon Tyne | £ 270,000 | BUY | 7 / 10 | 0.14 KM |
| Wingrove Road North, Fenham, Newcastle upon Tyne | £ 440,000 | BUY | 6 / 10 | 0.15 KM |
Nearby Properties
| Address | Price | Distance |
|---|---|---|
| 39 Woodburn Avenue | £ 225,000 | 0.08 KM |
| 43 Woodburn Avenue | £ 265,000 | 0.08 KM |
| 32 Woodburn Avenue | £ 186,000 | 0.08 KM |
| 37 Woodburn Avenue | £ 68,000 | 0.08 KM |
| 44 Woodburn Avenue | £ 197,500 | 0.08 KM |