Springfield Way, Hythe, CT21
By The Good Estate Agent
£ 350,000
Reviews
3 out of 5 stars
The Good Estate Agent says ..
Spacious three bedroom semi-detached family home in beautiful Seabrook.
Property Oracle says ..
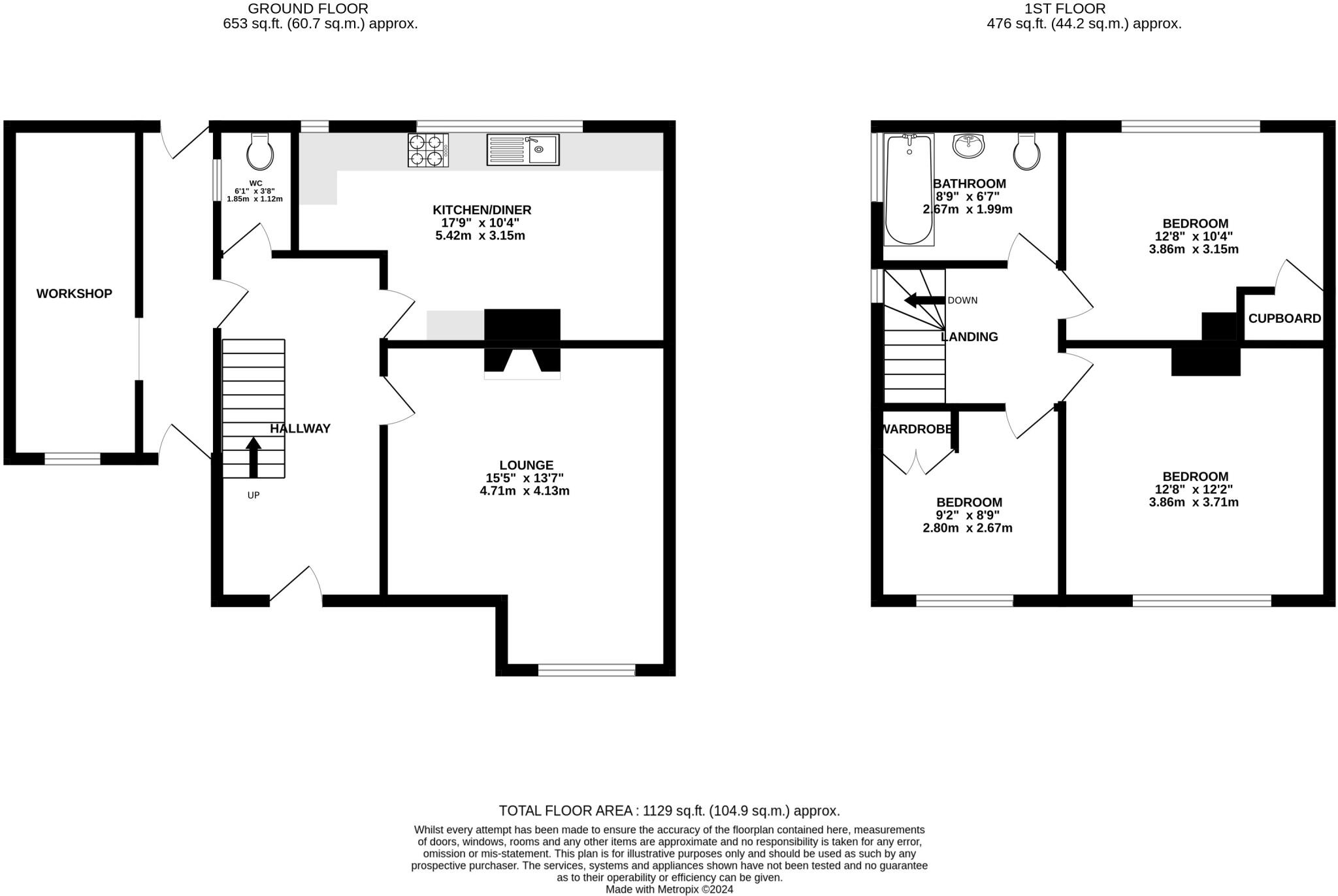
This three-bedroom semi-detached house in Hythe, Kent is presented in a clean and well-maintained condition. The property features a family-sized kitchen, living room with a fireplace, and three bedrooms. The bathrooms and other rooms appear adequately sized and functional. The photographs showcase a relatively modest, functional, comfortable, and possibly dated interior. The garden is an added plus, providing outdoor space. The area appears peaceful and residential, with the house positioned on a residential street. The listing doesn’t fully explain the details of property features and potential upgrades; this might attract potential buyers interested in a move-in ready property with room for personal renovations, or a property requiring few repairs. The location is close to good primary schools and train stations but lacks details on accessibility to shops and other local amenities. A potential drawback is the lack of precise plot size data and the absence of information on council tax banding, which affects affordability. The property represents a solid family home but may not be suitable for those expecting a luxury property or larger outdoor space.
Therefore, we give this property 6 / 10. *Disclaimer: This is our option and does constitute a recommendation or financial advice. Do your own research. *
- Price
- 7
- Condition
- 6
- Location
- 7
- Land
- 4
- Bedrooms
- 3
- Bathrooms
- 1
- Sqft (est)
- 1,129.00
The heatmap indicates the level of crime in the area. The color of the heatmap indicates the crime severity and recency.
Metrics Year-on-Year
- Average area value
- 695,750.00 £Increased by 35.80 %
- Est sale value
- 658,207.00 £Increased by 15.22 %
- Average area rental value
- 1,400.00 £/moDecreased by 11.56 %
- Est letting value
- 1,129.00 £/moUnchanged by 0.00 %
- Est rental Yield
- 2.41 %Decreased by 35.04 %
- Crime Rate
- 15.00 %Unchanged by 0.00 %
Agent Activity
The Good Estate Agent created the listing.
Nearby Schools
| Name | Type | Ofsted | Distance |
|---|---|---|---|
| Seabrook Church Of England Primary School | Voluntary Controlled School | Outstanding | 0.55 KM |
| Folkestone, St Martin'S Church Of England Primary School | Voluntary Controlled School | Outstanding | 1.02 KM |
| Cheriton Primary School | Foundation School | Good | 1.61 KM |
| All Soul'S Church Of England Primary School | Academy Converter | 2.60 KM | |
| Harcourt Primary School | Foundation School | Good | 2.87 KM |
Images
Nearby Streets
| Name | Average Price | Average Sqft | Distance |
|---|---|---|---|
| Owens Close | £ 0 | 0 | 0.00 KM |
| Brook Close | £ 0 | 0 | 0.00 KM |
| Sandy Lane | £ 570,000 | 0 | 0.00 KM |
| (Helena Villas) Hospital Hill | £ 570,000 | 0 | 0.00 KM |
| Colin's Way | £ 0 | 0 | 0.00 KM |
Nearby Transport
| Name | NLC | TLC | Distance |
|---|---|---|---|
| Folkestone West | 5027 | FKW | 3.74 KM |
| Folkestone Central | 5035 | FKC | 5.41 KM |
| Sandling | 5025 | SDG | 6.24 KM |
| Westenhanger | 5030 | WHA | 9.38 KM |
Nearby Listings
| Address | Price | Type | Score | Distance |
|---|---|---|---|---|
| Springfield Way, Hythe, CT21 | £ 350,000 | BUY | 6 / 10 | 0.00 KM |
| Paraker Way, Hythe, Kent CT21 5SQ | £ 325,000 | BUY | 7 / 10 | 0.12 KM |
| Hampton Vale, Hythe | £ 325,000 | BUY | 7 / 10 | 0.12 KM |
| Horn Street, Hythe, Kent, CT21 | £ 650,000 | BUY | Unknown | 0.25 KM |
| Valley Walk, Seabrook, CT21 | £ 450,000 | BUY | 7 / 10 | 0.34 KM |
Nearby Properties
| Address | Price | Distance |
|---|---|---|
| 7 Springfield Way | £ 229,850 | 0.00 KM |
| 8 Springfield Way | £ 90,000 | 0.00 KM |
| 3 Springfield Way | £ 172,000 | 0.00 KM |
| 15 Springfield Way | £ 370,000 | 0.00 KM |
| 2 Springfield Way | £ 205,000 | 0.00 KM |