Helliwell & Co says ..
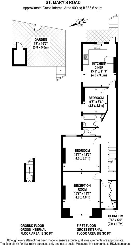
Helliwell & Co. is proud to present this charming and unique Edwardian flat, offering over 900 sq ft of living space and located in the desirable pocket of Olde Ealing. Set back on St Mary's Road with vast manicured lawned front gardens, you are met with a charming entrance via its orig...
Property Oracle says ..
Therefore, we give this property 7 / 10. *Disclaimer: This is our option and does constitute a recommendation or financial advice. Do your own research. *
- Price
- 8
- Condition
- 6
- Location
- 8
- Land
- 7
- Bedrooms
- 3
- Bathrooms
- 1
- Sqft (est)
- 900.00
The heatmap indicates the level of crime in the area. The color of the heatmap indicates the crime severity and recency.
Metrics Year-on-Year
- Average area value
- 683,580.00 £Decreased by 10.48 %
- Est sale value
- 704,700.00 £Increased by 44.46 %
- Average area rental value
- 2,333.00 £/moIncreased by 12.11 %
- Est letting value
- 1,800.00 £/moIncreased by 100.00 %
- Est rental Yield
- 4.10 %Increased by 25.38 %
- Crime Rate
- 4.00 %Unchanged by 0.00 %
from 763,602.00 £
from 487,800.00 £
from 2,081.00 £/mo
from 900.00 £/mo
from 3.27 %
from 4.00 %
Agent Activity
Helliwell & Co created the listing.
Nearby Schools
| Name | Type | Ofsted | Distance |
|---|---|---|---|
| Grange Primary School | Community School | Good | 0.15 KM |
| Grange Children'S Centre | Children's Centre Linked Site | 0.17 KM | |
| University Of West London | Higher Education Institutions | Good | 0.21 KM |
| Clifton Lodge School | Other Independent School | 0.79 KM | |
| Ealing Independent College | Other Independent School | 0.84 KM |
Images
Nearby Streets
| Name | Average Price | Average Sqft | Distance |
|---|---|---|---|
| Roberts Alley | £ 0 | 0 | 0.00 KM |
| Liverpool Road | £ 700,000 | 0 | 0.00 KM |
| Maple Grove | £ 0 | 0 | 0.00 KM |
| Sunderland Road | £ 891,667 | 0 | 0.00 KM |
| Grove Road | £ 450,000 | 0 | 0.00 KM |
Nearby Transport
| Name | NLC | TLC | Distance |
|---|---|---|---|
| Ealing Broadway | 3190 | EAL | 1.12 KM |
| West Ealing | 3188 | WEA | 1.92 KM |
| Brentford | 5552 | BFD | 2.04 KM |
| Kew Bridge | 5593 | KWB | 2.63 KM |
| Drayton Green | 3099 | DRG | 3.08 KM |
Nearby Listings
| Address | Price | Type | Score | Distance |
|---|---|---|---|---|
| St. Marys Road, Ealing, W5 | £ 640,000 | BUY | 7 / 10 | 0.00 KM |
| St. Marys Road, Ealing, W5 | £ 599,999 | BUY | 6 / 10 | 0.00 KM |
| St. Marys Road, Ealing W5 | £ 575,000 | BUY | 7 / 10 | 0.03 KM |
| St Marys Road, Ealing, W5 | £ 550,000 | BUY | 6 / 10 | 0.03 KM |
| St. Marys Road, Ealing, W5 | £ 575,000 | BUY | 6 / 10 | 0.04 KM |
Nearby Properties
| Address | Price | Distance |
|---|---|---|
| 53 St Marys Road | £ 392,000 | 0.02 KM |
| 49 St Marys Road | £ 640,000 | 0.02 KM |
| 63 St Marys Road | £ 631,000 | 0.02 KM |
| 51 St Marys Road | £ 365,000 | 0.02 KM |
| 59a St Marys Road | £ 139,500 | 0.02 KM |