Meek Road, Newent
By Steve Gooch Estate Agents
£ 199,950
Reviews
3 out of 5 stars
Steve Gooch Estate Agents says ..
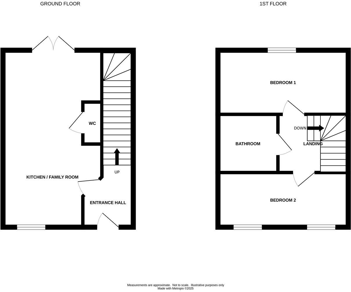
A TWO BEDROOM MID-TERRACE HOUSE IDEAL FOR FIRST TIME BUYERS OR INVESTORS ALIKE with KITCHEN / LIVING / DINING ROOM, ENCLOSED GARDEN, OFF ROAD PARKING, all being offered with NO ONWARD CHAIN.
Property Oracle says ..
This property is a 2 bedroom, 1 bathroom house located in Newent, Gloucestershire. Based on the provided images, the property appears to be in good condition and well-maintained. The kitchen and bathroom are modern and clean. There is a small, enclosed rear garden with artificial turf and a patio area. The location is within proximity to several schools, including Newent Community School and Sixth Form Centre (rated Good by Ofsted), Glebe Infants’ School (rated Good), and Picklenash Junior School (rated Good). The list price is £199,950. While comparable properties in the area have a wide range of prices, the lack of square footage data for those properties makes a direct price comparison difficult. However, considering the property’s condition, location, and small garden, the list price seems reasonable within the context of the Newent housing market.
Therefore, we give this property 6 / 10. *Disclaimer: This is our option and does constitute a recommendation or financial advice. Do your own research. *
- Price
- 7
- Condition
- 8
- Location
- 7
- Land
- 3
- Bedrooms
- 2
- Bathrooms
- 1
- Sqft (est)
- 630.00
The heatmap indicates the level of crime in the area. The color of the heatmap indicates the crime severity and recency.
Metrics Year-on-Year
- Average area value
- 268,125.00 £Increased by 15.58 %
- Est sale value
- 171,990.00 £Increased by 19.21 %
- Average area rental value
- 1,044.00 £/moIncreased by 5.56 %
- Est letting value
- 630.00 £/mo
- Est rental Yield
- 4.67 %Decreased by 8.79 %
- Crime Rate
- 38.00 %Unchanged by 0.00 %
Agent Activity
Steve Gooch Estate Agents created the listing.
Nearby Schools
| Name | Type | Ofsted | Distance |
|---|---|---|---|
| Newent Community School And Sixth Form Centre | Academy Converter | Good | 0.94 KM |
| Glebe Infants' School | Foundation School | Good | 1.17 KM |
| Picklenash Junior School | Foundation School | Good | 1.17 KM |
| The Family Tree Children'S Centre (Branches) | Children's Centre | 1.35 KM | |
| Pauntley Church Of England Primary School | Voluntary Controlled School | Requires improvement | 3.90 KM |
Images
Nearby Streets
| Name | Average Price | Average Sqft | Distance |
|---|---|---|---|
| Manor Road | £ 234,133 | 0 | 0.00 KM |
| Falcon Row | £ 0 | 0 | 0.00 KM |
| Merlin Nook | £ 0 | 0 | 0.00 KM |
| Eagle Crescent | £ 252,250 | 0 | 0.00 KM |
| Hawk Close | £ 0 | 0 | 0.00 KM |
Nearby Listings
| Address | Price | Type | Score | Distance |
|---|---|---|---|---|
| Meek Road, Newent | £ 199,950 | BUY | 6 / 10 | 0.00 KM |
| Meek Road, Newent | £ 259,950 | BUY | 6 / 10 | 0.10 KM |
| Meek Road, Newent, | £ 334,995 | BUY | 6 / 10 | 0.13 KM |
| Town Farm Road, Newent | £ 345,000 | BUY | 7 / 10 | 0.15 KM |
| Meek Road, Newent, GL18 1DX | £ 360,000 | BUY | 6 / 10 | 0.16 KM |
Nearby Properties
| Address | Price | Distance |
|---|---|---|
| 5 Bullock Way | £ 181,000 | 0.10 KM |
| 69 Meek Road | £ 240,000 | 0.12 KM |
| 85a Meek Road | £ 224,995 | 0.12 KM |
| 85 Meek Road | £ 142,995 | 0.12 KM |
| 70 Meek Road | £ 310,000 | 0.12 KM |