DA
9 Alexandra Grove, London, N4
By David Andrew
£ 850,000
Reviews
3 out of 5 stars
David Andrew says ..
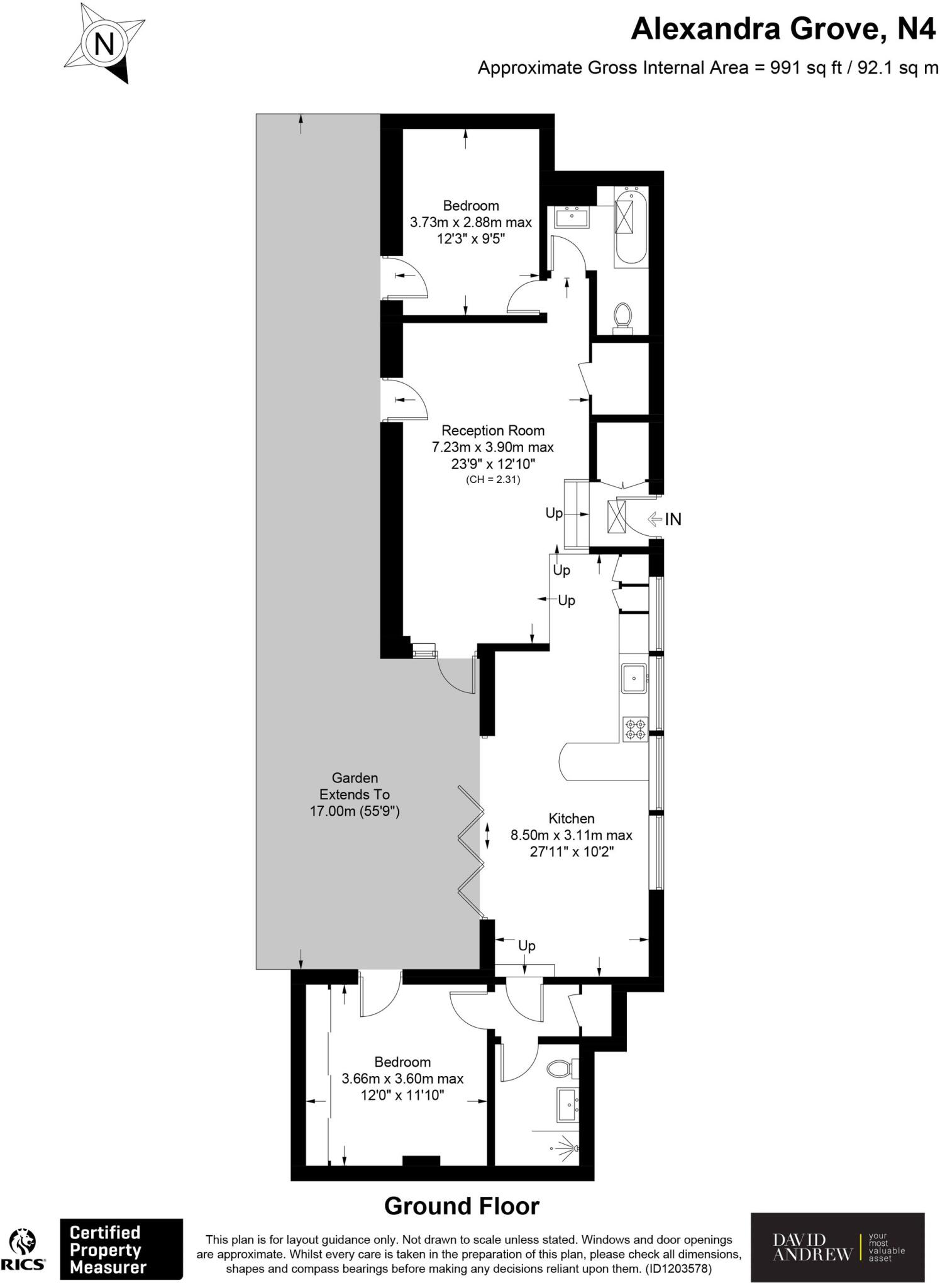
Presenting an immaculately presented, two double bedroom garden flat on Alexandra Grove.
Property Oracle says ..
Therefore, we give this property 7 / 10. *Disclaimer: This is our option and does constitute a recommendation or financial advice. Do your own research. *
- Price
- 6
- Condition
- 9
- Location
- 8
- Land
- 7
- Bedrooms
- 2
- Bathrooms
- 2
- Sqft (est)
- 845.51
The heatmap indicates the level of crime in the area. The color of the heatmap indicates the crime severity and recency.
Metrics Year-on-Year
- Average area value
- 528,333.00 £Decreased by 25.35 %
- Est sale value
- 727,138.60 £Decreased by 5.70 %
- Average area rental value
- 2,120.00 £/moDecreased by 13.36 %
- Est letting value
- 2,536.53 £/moUnchanged by 0.00 %
- Est rental Yield
- 4.82 %Increased by 16.14 %
- Crime Rate
- 11.00 %Unchanged by 0.00 %
from 707,763.00 £
from 771,105.12 £
from 2,447.00 £/mo
from 2,536.53 £/mo
from 4.15 %
from 11.00 %
Agent Activity
David Andrew created the listing.
Nearby Schools
| Name | Type | Ofsted | Distance |
|---|---|---|---|
| Parkwood Primary School | Community School | Good | 0.33 KM |
| Woodberry Down Children'S Centre | Children's Centre | 0.60 KM | |
| Ambler Children'S Centre | Children's Centre | 0.69 KM | |
| Ambler Primary School And Children'S Centre | Community School | Outstanding | 0.72 KM |
| Beis Chinuch Lebonos Girls School | Other Independent School | Requires improvement | 0.79 KM |
Images
Nearby Streets
| Name | Average Price | Average Sqft | Distance |
|---|---|---|---|
| Springpark Drive | £ 0 | 0 | 0.00 KM |
| Datchworth Court | £ 0 | 0 | 0.00 KM |
| Sim Street | £ 0 | 0 | 0.00 KM |
| Kings Crescent | £ 0 | 0 | 0.00 KM |
| Endymion Road | £ 0 | 0 | 0.00 KM |
Nearby Transport
| Name | NLC | TLC | Distance |
|---|---|---|---|
| Finsbury Park | 6119 | FPK | 1.05 KM |
| Harringay Green Lanes | 7401 | HRY | 1.10 KM |
| Harringay | 6012 | HGY | 1.41 KM |
| Drayton Park | 6000 | DYP | 1.86 KM |
| Canonbury | 1441 | CNN | 2.15 KM |
Nearby Listings
| Address | Price | Type | Score | Distance |
|---|---|---|---|---|
| 9 Alexandra Grove, London, N4 | £ 850,000 | BUY | 7 / 10 | 0.00 KM |
| Alexandra Grove, London, N4 | £ 750,000 | BUY | 7 / 10 | 0.02 KM |
| Alexandra Grove, London, N4 | £ 1,150,000 | BUY | 7 / 10 | 0.04 KM |
| Alexandra Grove, London, N4 | £ 400,000 | BUY | 6 / 10 | 0.05 KM |
| Flat 3, 24 Alexandra Grove, London | £ 500,000 | BUY | 6 / 10 | 0.05 KM |
Nearby Properties
| Address | Price | Distance |
|---|---|---|
| 23b Alexandra Grove | £ 280,000 | 0.01 KM |
| 37c Alexandra Grove | £ 209,800 | 0.01 KM |
| 11 Alexandra Grove | £ 1,650,000 | 0.01 KM |
| 37d Alexandra Grove | £ 436,000 | 0.01 KM |
| 13 Alexandra Grove | £ 155,000 | 0.01 KM |