Foxtons says ..
This charming two bedroom second floor flat is bright and airy with underground parking and a communal garden within easy reach of Woking Town Centre and the station.
Property Oracle says ..
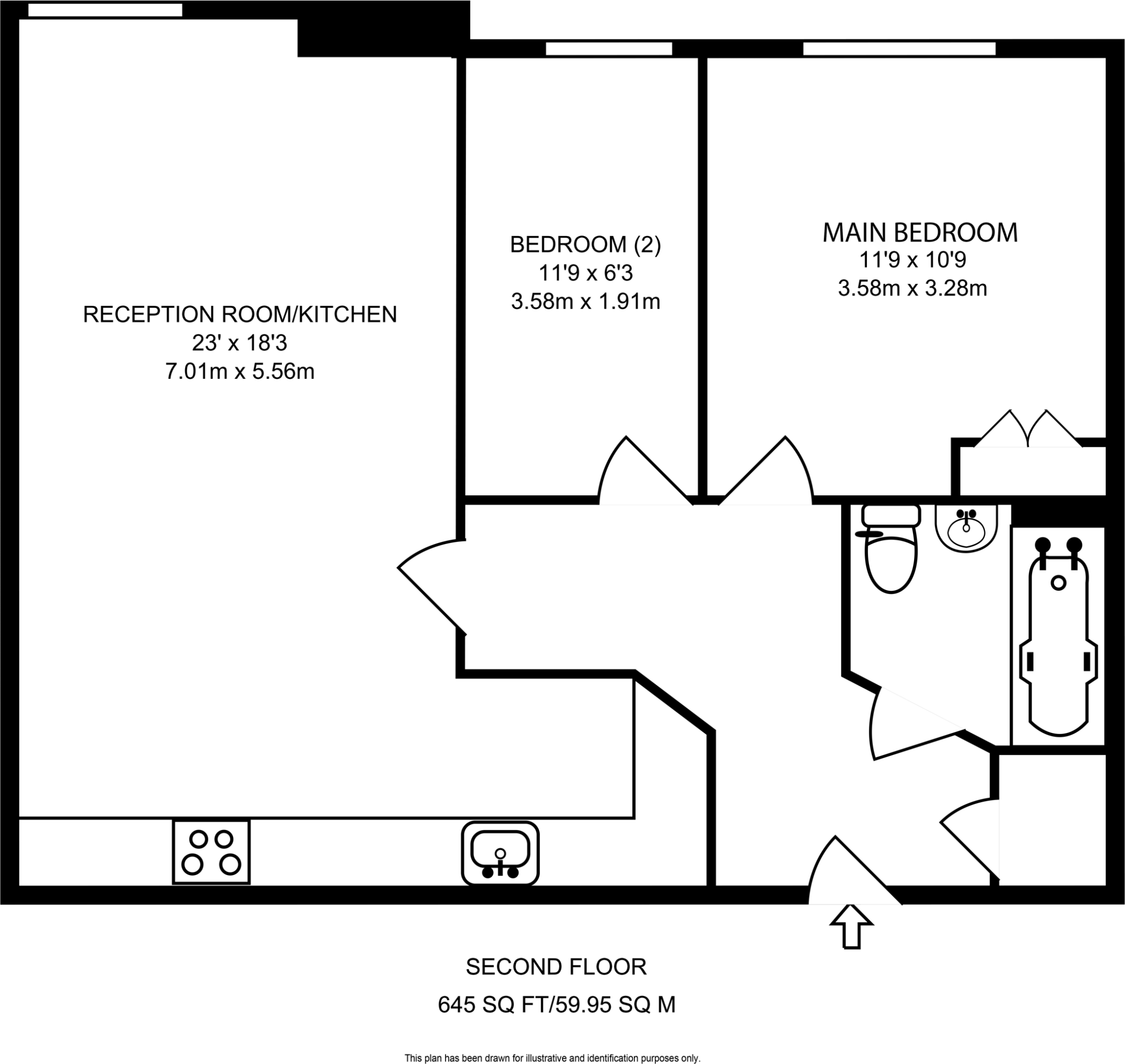
This two-bedroom apartment in Woking, Surrey, is located in Park Gate Court on Constitution Hill. Its proximity to Woking town centre and the train station offers convenient access to amenities and transportation. The apartment itself appears well-maintained and modern based on the photos; it features a contemporary kitchen and living area. The bedrooms also seem adequately sized. The property comes with access to a communal garden but lacks a private garden. While the location and condition are favorable, the asking price of £270,000 needs further scrutiny. The absence of detailed information on comparable properties and their precise square footage makes a thorough price comparison difficult. The stated plot size of 0.00 sq ft indicates no private outdoor space. Overall, it appears to be a comfortable apartment in a decent location, but the price requires a more comprehensive analysis based on local market data and a full property survey.
Therefore, we give this property 5 / 10. *Disclaimer: This is our option and does constitute a recommendation or financial advice. Do your own research. *
- Price
- 6
- Condition
- 7
- Location
- 7
- Land
- 3
- Bedrooms
- 2
- Bathrooms
- 1
- Sqft (est)
- 645.30
The heatmap indicates the level of crime in the area. The color of the heatmap indicates the crime severity and recency.
Metrics Year-on-Year
- Average area value
- 943,000.00 £Increased by 128.77 %
- Est sale value
- 306,517.50 £Decreased by 7.23 %
- Average area rental value
- 1,665.00 £/moDecreased by 14.57 %
- Est letting value
- 0.00 £/moDecreased by 100.00 %
- Est rental Yield
- 2.12 %Decreased by 62.61 %
- Crime Rate
- 10.00 %Unchanged by 0.00 %
Agent Activity
Foxtons created the listing.
Nearby Schools
| Name | Type | Ofsted | Distance |
|---|---|---|---|
| Woking South Sure Start Children'S Centre | Children's Centre Linked Site | 1.01 KM | |
| North West Surrey Short Stay School | Pupil Referral Unit | Good | 1.10 KM |
| Barnsbury Primary School And Nursery | Academy Converter | Good | 1.36 KM |
| The Park School | Academy Special Sponsor Led | 1.36 KM | |
| Sythwood At Old Woking Sure Start Children'S Centre | Children's Centre Linked Site | 1.36 KM |
Images
Nearby Streets
| Name | Average Price | Average Sqft | Distance |
|---|---|---|---|
| Nankeville Terrace | £ 283,125 | 0 | 0.00 KM |
| Lucerne Close | £ 0 | 0 | 0.00 KM |
| Percy Street | £ 0 | 0 | 0.00 KM |
| Victoria Square | £ 0 | 0 | 0.00 KM |
| Forge End | £ 0 | 0 | 0.00 KM |
Nearby Transport
| Name | NLC | TLC | Distance |
|---|---|---|---|
| Woking | 5685 | WOK | 0.75 KM |
| Worplesdon | 5686 | WPL | 3.59 KM |
| West Byfleet | 5684 | WBY | 6.78 KM |
| London Road (Guildford) | 5632 | LRD | 8.05 KM |
| Brookwood | 5687 | BKO | 8.36 KM |
Nearby Listings
| Address | Price | Type | Score | Distance |
|---|---|---|---|---|
| Constitution Hill, Woking, GU22 | £ 270,000 | BUY | 5 / 10 | 0.00 KM |
| Constitution Hill, Woking, GU22 | £ 300,000 | BUY | Unknown | 0.00 KM |
| Park Heights, Constitution Hill, Woking, Surrey, GU22 | £ 300,000 | BUY | 6 / 10 | 0.03 KM |
| Park Heights, Woking, Surrey, GU22 | £ 118,000 | BUY | 5 / 10 | 0.04 KM |
| Park Gate Court, Constitution Hill, Woking | £ 120,000 | BUY | 7 / 10 | 0.04 KM |
Nearby Properties
| Address | Price | Distance |
|---|---|---|
| 5 Thorsden Court | £ 450,000 | 0.05 KM |
| 13 Thorsden Court | £ 388,000 | 0.05 KM |
| 7 Thorsden Court | £ 388,000 | 0.05 KM |
| 6 Thorsden Court | £ 465,000 | 0.05 KM |
| 3 Thorsden Court | £ 149,500 | 0.05 KM |