Rampton Baseley says ..
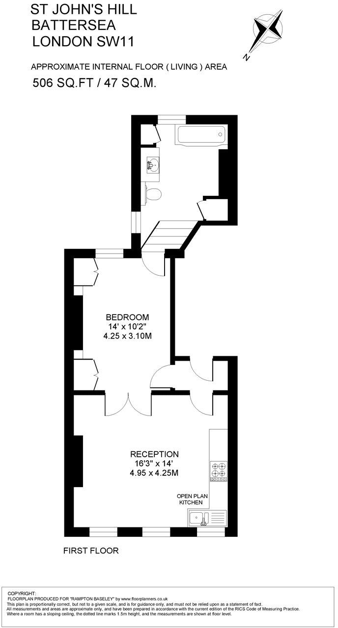
Conveniently located on St John’s Hill in a Victorian conversion, this superb one-bedroom flat is arranged over the first floor and offers approximately 506 sq ft of living space with excellent proportions and a good feeling of light and space throughout.
Property Oracle says ..
This one bedroom apartment is located on St. John’s Hill in the Fairfield area of Wandsworth, London. The property is conveniently located near Clapham Junction station (0.53km), providing easy access to public transportation. There are also several schools within a short distance, including Ark John Archer Primary Academy (0.10km) and Centre Academy London (0.10km). The apartment itself appears to be in good condition, with modern finishes and fixtures visible in the provided images. While the plot size is listed as 0.00 sqft, the images do not show any outdoor space. The list price of £400,000 is lower than the average price of £525,792 for the area, and significantly lower than many comparable nearby properties. However, it’s important to note that the average sqft in the area is 794 sqft, while this property is only 506 sqft. Considering the location, condition, and size, the price may represent reasonable value, although further investigation into the specifics of the property and the local market would be beneficial.
Therefore, we give this property 6 / 10. *Disclaimer: This is our option and does constitute a recommendation or financial advice. Do your own research. *
- Price
- 7
- Condition
- 8
- Location
- 9
- Land
- 1
- Bedrooms
- 1
- Bathrooms
- 1
- Sqft (est)
- 506.00
The heatmap indicates the level of crime in the area. The color of the heatmap indicates the crime severity and recency.
Metrics Year-on-Year
- Average area value
- 538,795.00 £Decreased by 1.78 %
- Est sale value
- 308,154.00 £Increased by 2.18 %
- Average area rental value
- 2,144.00 £/moIncreased by 4.94 %
- Est letting value
- 1,012.00 £/moUnchanged by 0.00 %
- Est rental Yield
- 4.78 %Increased by 6.94 %
- Crime Rate
- 6.00 %Unchanged by 0.00 %
Agent Activity
Rampton Baseley created the listing.
Nearby Schools
| Name | Type | Ofsted | Distance |
|---|---|---|---|
| Ark John Archer Primary Academy | Academy Converter | 0.10 KM | |
| Centre Academy London | Other Independent Special School | Good | 0.10 KM |
| Emanuel School | Other Independent School | 0.55 KM | |
| Park House School | Other Independent Special School | Outstanding | 0.58 KM |
| York Gardens Children'S Centre | Children's Centre | 0.72 KM |
Images
Nearby Streets
| Name | Average Price | Average Sqft | Distance |
|---|---|---|---|
| Danvers Avenue | £ 0 | 0 | 0.00 KM |
| Saint John's Hill Grove | £ 550,000 | 0 | 0.00 KM |
| St. John's Hill Grove | £ 0 | 0 | 0.00 KM |
| Tours Passage | £ 0 | 0 | 0.00 KM |
| Eckstein Road | £ 950,000 | 0 | 0.00 KM |
Nearby Transport
| Name | NLC | TLC | Distance |
|---|---|---|---|
| Clapham Junction | 5595 | CLJ | 0.53 KM |
| Wandsworth Town | 5576 | WNT | 1.55 KM |
| Imperial Wharf | 9586 | IMW | 1.81 KM |
| Wandsworth Common | 5395 | WSW | 2.05 KM |
| Earlsfield | 5584 | EAD | 2.59 KM |
Nearby Listings
| Address | Price | Type | Score | Distance |
|---|---|---|---|---|
| St. John's Hill, SW11 | £ 400,000 | BUY | 6 / 10 | 0.00 KM |
| St. John's Hill, London, SW11 | £ 545,000 | BUY | 7 / 10 | 0.01 KM |
| Langford Mews, Clapham Junction, London, SW11 | £ 375,000 | BUY | Unknown | 0.02 KM |
| Sangora Road, SW11 | £ 815,000 | BUY | 6 / 10 | 0.03 KM |
| St John's Hill, London, SW11 | £ 475,000 | BUY | 6 / 10 | 0.03 KM |
Nearby Properties
| Address | Price | Distance |
|---|---|---|
| 78 St Johns Hill | £ 35,000 | 0.04 KM |
| 21 Sangora Road | £ 472,000 | 0.05 KM |
| 2 Sangora Road | £ 700,000 | 0.05 KM |
| 7 Sangora Road | £ 270,000 | 0.05 KM |
| 9 Sangora Road | £ 637,500 | 0.05 KM |