MA
Ashes Lane, Hadlow, TN11
By Maddisons Residential Ltd
£ 250,000
Reviews
4 out of 5 stars
Maddisons Residential Ltd says ..
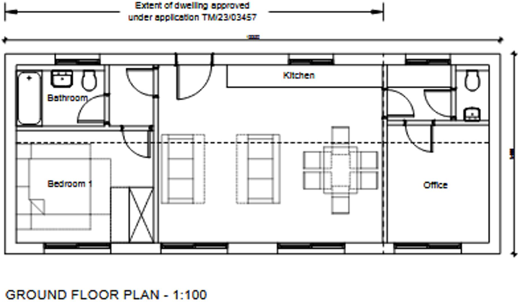
Opportunity to build a charming single storey home of just under 800 sq. ft. for which planning permission has been granted. Set within a semi-rural plot of 0.25 acres, on the edge of the village of Hadlow.
Property Oracle says ..
Therefore, we give this property 8 / 10. *Disclaimer: This is our option and does constitute a recommendation or financial advice. Do your own research. *
- Price
- 7
- Condition
- 10
- Location
- 7
- Land
- 8
- Bedrooms
- 2
- Bathrooms
- 1
- Sqft (est)
- 388.00
The heatmap indicates the level of crime in the area. The color of the heatmap indicates the crime severity and recency.
Metrics Year-on-Year
- Average area value
- 654,000.00 £Increased by 30.35 %
- Est sale value
- 213,012.00 £Increased by 23.09 %
- Average area rental value
- 2,739.00 £/moIncreased by 43.78 %
- Est letting value
- 776.00 £/moIncreased by 100.00 %
- Est rental Yield
- 5.03 %Increased by 10.31 %
- Crime Rate
- 0.00 %
from 501,744.00 £
from 173,048.00 £
from 1,905.00 £/mo
from 388.00 £/mo
from 4.56 %
from 0.00 %
Agent Activity
Maddisons Residential Ltd created the listing.
Nearby Schools
| Name | Type | Ofsted | Distance |
|---|---|---|---|
| Hadlow Rural Community School | Free Schools | Good | 0.56 KM |
| Hadlow College | Further Education | Outstanding | 0.68 KM |
| Hadlow Primary School | Community School | Good | 1.55 KM |
| Woodlands Primary School | Community School | Good | 3.41 KM |
| Cage Green Primary School | Academy Sponsor Led | 4.48 KM |
Images
Nearby Streets
| Name | Average Price | Average Sqft | Distance |
|---|---|---|---|
| Tonbridge Road | £ 0 | 0 | 0.00 KM |
| Water Slippe | £ 300,000 | 0 | 0.00 KM |
| Mill View | £ 0 | 0 | 0.00 KM |
| Dray Court | £ 0 | 0 | 0.00 KM |
| Brookfields | £ 350,500 | 0 | 0.00 KM |
Nearby Transport
| Name | NLC | TLC | Distance |
|---|---|---|---|
| Tonbridge | 5229 | TON | 6.75 KM |
| Borough Green And Wrotham | 5130 | BRG | 8.22 KM |
| Paddock Wood | 5224 | PDW | 8.43 KM |
| Beltring | 5227 | BEG | 8.99 KM |
| High Brooms | 5235 | HIB | 9.54 KM |
Nearby Listings
| Address | Price | Type | Score | Distance |
|---|---|---|---|---|
| Ashes Lane, Hadlow, TN11 | £ 250,000 | BUY | 8 / 10 | 0.00 KM |
| Ashes Lane, Hadlow, Tonbridge | £ 850,000 | BUY | 7 / 10 | 0.01 KM |
| Ashes Lane, Hadlow, Tonbridge | £ 850,000 | BUY | 7 / 10 | 0.01 KM |
| Ashes Lane, Hadlow, Tonbridge | £ 1,800,000 | BUY | 7 / 10 | 0.01 KM |
| Ashes Lane, Hadlow, Tonbridge | £ 695,000 | BUY | 7 / 10 | 0.07 KM |
Nearby Properties
| Address | Price | Distance |
|---|---|---|
| Faulkners Oast West | £ 650,000 | 0.38 KM |
| Faulkners Oast East | £ 1,000,000 | 0.38 KM |
| The White Cottage | £ 325,000 | 0.38 KM |
| Broadview | £ 1,300,000 | 0.73 KM |
| 3 Blackmans Lane | £ 267,500 | 0.90 KM |