Pennys says ..
A Spacious Detached House Forming Part Of A Select Modern Development On The Edge Of Withycombe Village With Gardens, Two Parking Areas And Single Garage
Property Oracle says ..
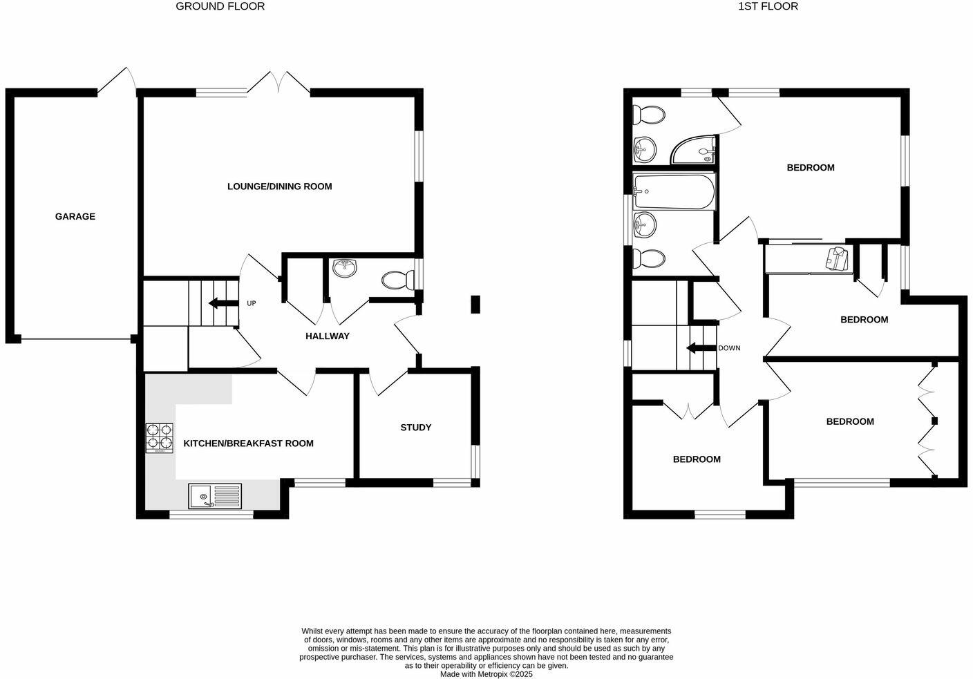
This four-bedroom, two-bathroom detached house located on Marcus Road in Exmouth, Devon, presents a compelling option for families or those seeking a home in a desirable coastal setting. The property’s interior, as shown in the photographs, is presented in good condition with modern kitchen and updated flooring in certain areas. The manageable garden offers outdoor space. The location of the property is particularly strong, with convenient proximity to well-regarded primary schools, making it an attractive option for families. The listed price, at £485,000, appears reasonably competitive relative to other properties in Exmouth. However, a precise assessment of the value requires additional information, primarily the precise plot size which is not provided. The absence of this crucial detail impacts the overall analysis. Without knowing the accurate square footage and the specifics of the gardens and any outbuildings, a complete assessment of the property’s value for money and land rating is not possible.
Therefore, we give this property 6 / 10. *Disclaimer: This is our option and does constitute a recommendation or financial advice. Do your own research. *
- Price
- 7
- Condition
- 7
- Location
- 7
- Land
- 4
- Bedrooms
- 4
- Bathrooms
- 2
- Sqft (est)
- 1,300.00
The heatmap indicates the level of crime in the area. The color of the heatmap indicates the crime severity and recency.
Metrics Year-on-Year
- Average area value
- 412,759.00 £Increased by 3.22 %
- Est sale value
- 518,700.00 £Increased by 2.31 %
- Average area rental value
- 1,432.00 £/moDecreased by 13.89 %
- Est letting value
- 1,300.00 £/moUnchanged by 0.00 %
- Est rental Yield
- 4.16 %Decreased by 16.63 %
- Crime Rate
- 6.00 %Unchanged by 0.00 %
Agent Activity
Pennys created the listing.
Nearby Schools
| Name | Type | Ofsted | Distance |
|---|---|---|---|
| Marpool Primary School | Foundation School | Good | 0.35 KM |
| Exmouth & District Children'S Centre | Children's Centre | 0.51 KM | |
| Withycombe Raleigh Church Of England Primary School | Voluntary Controlled School | Good | 0.66 KM |
| Brixington Primary Academy | Academy Sponsor Led | Requires improvement | 0.73 KM |
| Bassetts Farm Primary School | Foundation School | Good | 0.89 KM |
Images
Nearby Streets
| Name | Average Price | Average Sqft | Distance |
|---|---|---|---|
| St John's Road | £ 270,000 | 0 | 0.00 KM |
| Brook Meadow | £ 0 | 0 | 0.00 KM |
| Broad Park Road | £ 350,000 | 0 | 0.00 KM |
| Linden Close | £ 289,950 | 0 | 0.00 KM |
| Somerville Close | £ 0 | 0 | 0.00 KM |
Nearby Transport
| Name | NLC | TLC | Distance |
|---|---|---|---|
| Exmouth | 5756 | EXM | 2.65 KM |
| Lympstone Village | 5761 | LYM | 4.57 KM |
| Starcross | 3413 | SCS | 6.04 KM |
| Lympstone Commando | 5762 | LYC | 6.26 KM |
| Dawlish Warren | 3409 | DWW | 6.66 KM |
Nearby Listings
| Address | Price | Type | Score | Distance |
|---|---|---|---|---|
| Marcus Road, Exmouth, EX8 4DB | £ 485,000 | BUY | 6 / 10 | 0.00 KM |
| Marcus Road, Exmouth | £ 579,950 | BUY | 7 / 10 | 0.07 KM |
| St. Johns Road, Exmouth, EX8 4DD | £ 450,000 | BUY | 7 / 10 | 0.11 KM |
| St Johns road, Exmouth, EX8 4BY | £ 400,000 | BUY | 7 / 10 | 0.12 KM |
| ST. JOHNS ROAD, Exmouth, EX8 4BY | £ 350,000 | BUY | 6 / 10 | 0.12 KM |
Nearby Properties
| Address | Price | Distance |
|---|---|---|
| Marcus House | £ 395,000 | 0.00 KM |
| 14 Marcus Road | £ 305,500 | 0.01 KM |
| 18 Marcus Road | £ 330,000 | 0.01 KM |
| 20 Marcus Road | £ 315,000 | 0.01 KM |
| 22 Marcus Road | £ 300,000 | 0.01 KM |