Samber Close, Lymington, SO41
By Spencers Of The New Forest
£ 349,950
Reviews
3 out of 5 stars
Spencers Of The New Forest says ..
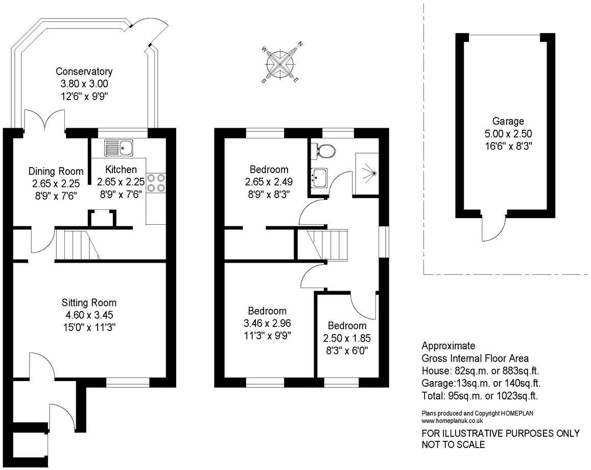
A charming and well-presented three bedroom end-of-terrace home with the benefit of solar panels, offering a garage in a nearby block and a larger-than-average south-facing garden. Nestled in a quiet cul-de-sac, the property is within easy walking distance of local schools and town amenities.
Property Oracle says ..
This is a three-bedroom terraced house in Buckland, Lymington. The property is in generally good condition, although some areas could benefit from modernisation. It features front and rear gardens, adding to its appeal. The location is convenient for local schools and transportation. The price is reasonable considering the location and condition of the property.
Therefore, we give this property 7 / 10. *Disclaimer: This is our option and does constitute a recommendation or financial advice. Do your own research. *
- Price
- 7
- Condition
- 7
- Location
- 7
- Land
- 7
- Bedrooms
- 3
- Bathrooms
- 1
- Sqft (est)
- 805.31
The heatmap indicates the level of crime in the area. The color of the heatmap indicates the crime severity and recency.
Metrics Year-on-Year
- Average area value
- 261,875.00 £Decreased by 18.58 %
- Est sale value
- 207,769.98 £Decreased by 33.85 %
- Average area rental value
- 1,242.00 £/moDecreased by 24.36 %
- Est letting value
- 805.31 £/moUnchanged by 0.00 %
- Est rental Yield
- 5.69 %Decreased by 7.18 %
- Crime Rate
- 3.00 %Unchanged by 0.00 %
Agent Activity
Spencers Of The New Forest created the listing.
Nearby Schools
| Name | Type | Ofsted | Distance |
|---|---|---|---|
| All Seasons And Seedlings Children'S Centre | Children's Centre | 0.60 KM | |
| Pennington Church Of England Junior School | Voluntary Controlled School | Requires improvement | 0.60 KM |
| Pennington Infant School | Community School | Good | 0.60 KM |
| Lymington Junior School | Community School | Good | 0.74 KM |
| Priestlands School | Academy Converter | Good | 0.79 KM |
Images
Nearby Streets
| Name | Average Price | Average Sqft | Distance |
|---|---|---|---|
| Kings Close | £ 602,475 | 0 | 0.00 KM |
| Leigh Park | £ 390,000 | 0 | 0.00 KM |
| Alexandra Road | £ 375,000 | 0 | 0.00 KM |
| Highfield Avenue | £ 395,000 | 0 | 0.00 KM |
| Melbury Close | £ 630,000 | 0 | 0.00 KM |
Nearby Transport
| Name | NLC | TLC | Distance |
|---|---|---|---|
| Lymington Town | 5887 | LYT | 2.07 KM |
| Lymington Pier | 5892 | LYP | 2.92 KM |
| Sway | 5884 | SWY | 6.59 KM |
| Brockenhurst | 5886 | BCU | 6.63 KM |
Nearby Listings
| Address | Price | Type | Score | Distance |
|---|---|---|---|---|
| Samber Close, Lymington, Hampshire, SO41 | £ 350,000 | BUY | 7 / 10 | 0.00 KM |
| Samber Close, Lymington, SO41 | £ 349,950 | BUY | 7 / 10 | 0.00 KM |
| Samber Close, Lymington, Hampshire, SO41 | £ 375,000 | BUY | 6 / 10 | 0.07 KM |
| Samber Close, Lymington, Hampshire, SO41 | £ 399,950 | BUY | Unknown | 0.08 KM |
| Fullerton Road, LYMINGTON, Hampshire, SO41 | £ 550,000 | BUY | Unknown | 0.10 KM |
Nearby Properties
| Address | Price | Distance |
|---|---|---|
| 109 Samber Close | £ 226,200 | 0.01 KM |
| 99 Samber Close | £ 222,500 | 0.01 KM |
| 118 Samber Close | £ 247,500 | 0.01 KM |
| 81 Samber Close | £ 250,000 | 0.01 KM |
| 94 Samber Close | £ 232,500 | 0.01 KM |