Martin & Co says ..
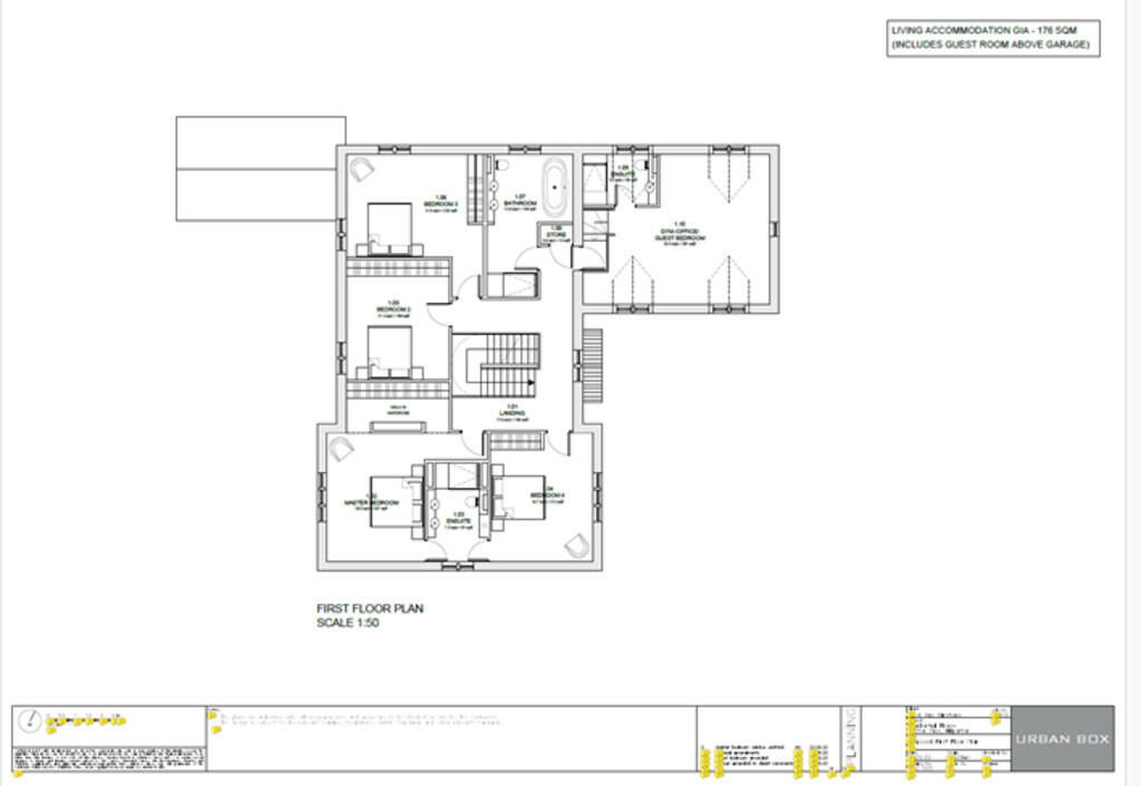
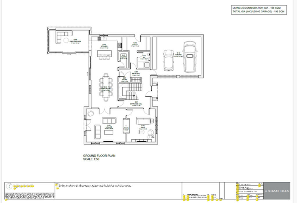
A fantastic opportunity to purchase a building plot with approved planning for a luxury five double bedroom detached home situated within close distance of local amentities.
Property Oracle says ..
This listing presents a unique opportunity to acquire a building plot in Hilperton, Wiltshire. The land is situated on Ashton Rise, a residential street that shows nearby properties sold recently for prices ranging from £283,000 to £550,000 (showing potential for a good return). The approved planning permission simplifies the process of constructing a new luxury five-bedroom detached home. The area benefits from relatively close proximity to Trowbridge, offering access to amenities, and is well-served by local primary schools with good Ofsted ratings. However, potential buyers should conduct thorough due diligence, including the acquisition of detailed specifications and cost estimations for building the proposed property to determine if the list price aligns accurately with potential construction costs and the resulting value of the finished home. The site plans show that the property is going to be large with an attached garage and a large garden. In addition, a complete absence of current property related details means that the purchase only has value from the land itself. It must be noted that there are no bathrooms or bedrooms at present, this is a building plot only.
Therefore, we give this property 5 / 10. *Disclaimer: This is our option and does constitute a recommendation or financial advice. Do your own research. *
- Price
- 7
- Condition
- 1
- Location
- 7
- Land
- 8
- Bedrooms
- 0
- Bathrooms
- 0
The heatmap indicates the level of crime in the area. The color of the heatmap indicates the crime severity and recency.
Metrics Year-on-Year
- Average area value
- 383,997.00 £Decreased by 7.91 %
- Average area rental value
- 950.00 £/moDecreased by 51.90 %
- Est rental Yield
- 2.97 %Decreased by 47.71 %
- Crime Rate
- 1.00 %Unchanged by 0.00 %
Agent Activity
Martin & Co created the listing.
Nearby Schools
| Name | Type | Ofsted | Distance |
|---|---|---|---|
| The Mead Community Primary School | Academy Converter | Good | 0.43 KM |
| Hilperton Church Of England Voluntary Controlled Primary School | Voluntary Controlled School | Good | 0.82 KM |
| Castle Mead School | Academy Sponsor Led | Good | 1.34 KM |
| Paxcroft Primary School | Foundation School | Good | 1.47 KM |
| Bellefield Primary And Nursery School | Voluntary Controlled School | Good | 1.98 KM |
Images
Nearby Streets
| Name | Average Price | Average Sqft | Distance |
|---|---|---|---|
| Ashton Road | £ 617,500 | 0 | 0.00 KM |
| Devizes Road | £ 579,444 | 0 | 0.00 KM |
| Hilperton Drive | £ 0 | 0 | 0.00 KM |
| Church Street | £ 667,330 | 0 | 0.00 KM |
| Centenary Close | £ 617,500 | 0 | 0.00 KM |
Nearby Transport
| Name | NLC | TLC | Distance |
|---|---|---|---|
| Trowbridge | 3348 | TRO | 3.70 KM |
| Melksham | 3346 | MKM | 7.04 KM |
| Westbury | 5712 | WSB | 7.12 KM |
| Bradford-On-Avon | 3341 | BOA | 7.97 KM |
| Dilton Marsh | 5502 | DMH | 9.32 KM |
Nearby Listings
| Address | Price | Type | Score | Distance |
|---|---|---|---|---|
| Ashton Rise, Hilperton | £ 300,000 | BUY | 5 / 10 | 0.00 KM |
| 19 Newhurst Park, Hilperton | £ 475,000 | BUY | 7 / 10 | 0.18 KM |
| Devizes Road, Hilperton | £ 970,000 | BUY | 7 / 10 | 0.19 KM |
| Apsley Close, Hilperton | £ 280,000 | BUY | 7 / 10 | 0.22 KM |
| Plots with planning behind Lion & Fiddle, Trowbridge Road, Hilperton, Trowbridge, BA14 | £ 299,995 | BUY | 5 / 10 | 0.23 KM |
Nearby Properties
| Address | Price | Distance |
|---|---|---|
| 11 Ashton Rise | £ 370,000 | 0.00 KM |
| 7 Ashton Rise | £ 450,000 | 0.00 KM |
| 2 Ashton Rise | £ 250,000 | 0.03 KM |
| 10 Ashton Rise | £ 283,000 | 0.03 KM |
| 3 Ashton Rise | £ 295,000 | 0.03 KM |