Uttoxeter Road, Blythe Bridge, ST11
By James Du Pavey
£ 259,950
Reviews
3 out of 5 stars
James Du Pavey says ..
Cockerdoodle doo! Fresh faced and ready to take on the day. So is this house!
Property Oracle says ..
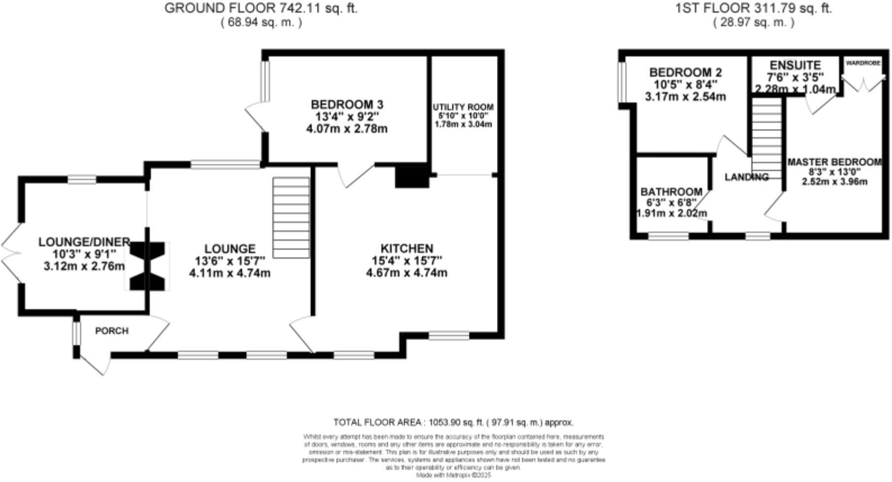
This is a well-presented detached property located on Uttoxeter Road in Blythe Bridge, Staffordshire. The house offers three bedrooms and two bathrooms, making it suitable for families. The interior appears to be modern and well-maintained, with a recently renovated kitchen and bathrooms. The property also benefits from a good-sized garden, providing outdoor space for recreation. The location is convenient, with nearby schools and transportation links. Overall, this property represents a desirable family home in a sought-after area.
Therefore, we give this property 7 / 10. *Disclaimer: This is our option and does constitute a recommendation or financial advice. Do your own research. *
- Price
- 7
- Condition
- 8
- Location
- 7
- Land
- 7
- Bedrooms
- 3
- Bathrooms
- 2
- Sqft (est)
- 1,053.90
The heatmap indicates the level of crime in the area. The color of the heatmap indicates the crime severity and recency.
Metrics Year-on-Year
- Average area value
- 311,026.00 £Increased by 24.21 %
- Est sale value
- 375,188.40 £Increased by 53.45 %
- Average area rental value
- 1,069.00 £/moDecreased by 10.77 %
- Est letting value
- 1,053.90 £/moUnchanged by 0.00 %
- Est rental Yield
- 4.12 %Decreased by 28.22 %
- Crime Rate
- 21.00 %Unchanged by 0.00 %
Agent Activity
James Du Pavey created the listing.
Nearby Schools
| Name | Type | Ofsted | Distance |
|---|---|---|---|
| The William Amory Primary School | Community School | Good | 0.48 KM |
| Forsbrook Cofe Controlled Primary School | Voluntary Controlled School | Outstanding | 0.58 KM |
| Blythe Bridge High School | Foundation School | Good | 0.58 KM |
| Draycott Moor College | Other Independent Special School | Good | 1.92 KM |
| Springcroft Primary School | Community School | Good | 2.06 KM |
Images
Nearby Streets
| Name | Average Price | Average Sqft | Distance |
|---|---|---|---|
| Keepers Close | £ 275,000 | 0 | 0.00 KM |
| Glebe Close | £ 0 | 0 | 0.00 KM |
| Wesley Street | £ 125,000 | 0 | 0.00 KM |
| Poplar Close | £ 0 | 0 | 0.00 KM |
| Church Terrace | £ 180,000 | 0 | 0.00 KM |
Nearby Transport
| Name | NLC | TLC | Distance |
|---|---|---|---|
| Blythe Bridge | 1282 | BYB | 1.18 KM |
| Longton | 1306 | LGN | 9.29 KM |
Nearby Listings
| Address | Price | Type | Score | Distance |
|---|---|---|---|---|
| Uttoxeter Road, Blythe Bridge, ST11 | £ 259,950 | BUY | 7 / 10 | 0.00 KM |
| Uttoxeter Road, Blythe Bridge, ST11 | £ 135,000 | BUY | 6 / 10 | 0.02 KM |
| Uttoxeter Road, Blythe Bridge, Stoke-on-Trent, ST11 | £ 190,000 | BUY | 7 / 10 | 0.03 KM |
| Elmwood Drive, Blythe Bridge, Stoke-on-Trent | £ 230,000 | BUY | 7 / 10 | 0.09 KM |
| Limewood Close, Blythe Bridge, ST11 | £ 250,000 | BUY | 8 / 10 | 0.12 KM |
Nearby Properties
| Address | Price | Distance |
|---|---|---|
| 2 Egerton Close | £ 385,000 | 0.07 KM |
| 115 Elmwood Drive | £ 175,000 | 0.09 KM |
| 153 Elmwood Drive | £ 50,000 | 0.09 KM |
| 114 Elmwood Drive | £ 201,000 | 0.09 KM |
| 99 Elmwood Drive | £ 144,000 | 0.09 KM |