Yorktown Road, College Town, Sandhurst
By Romans
£ 140,000
Reviews
3 out of 5 stars
Romans says ..
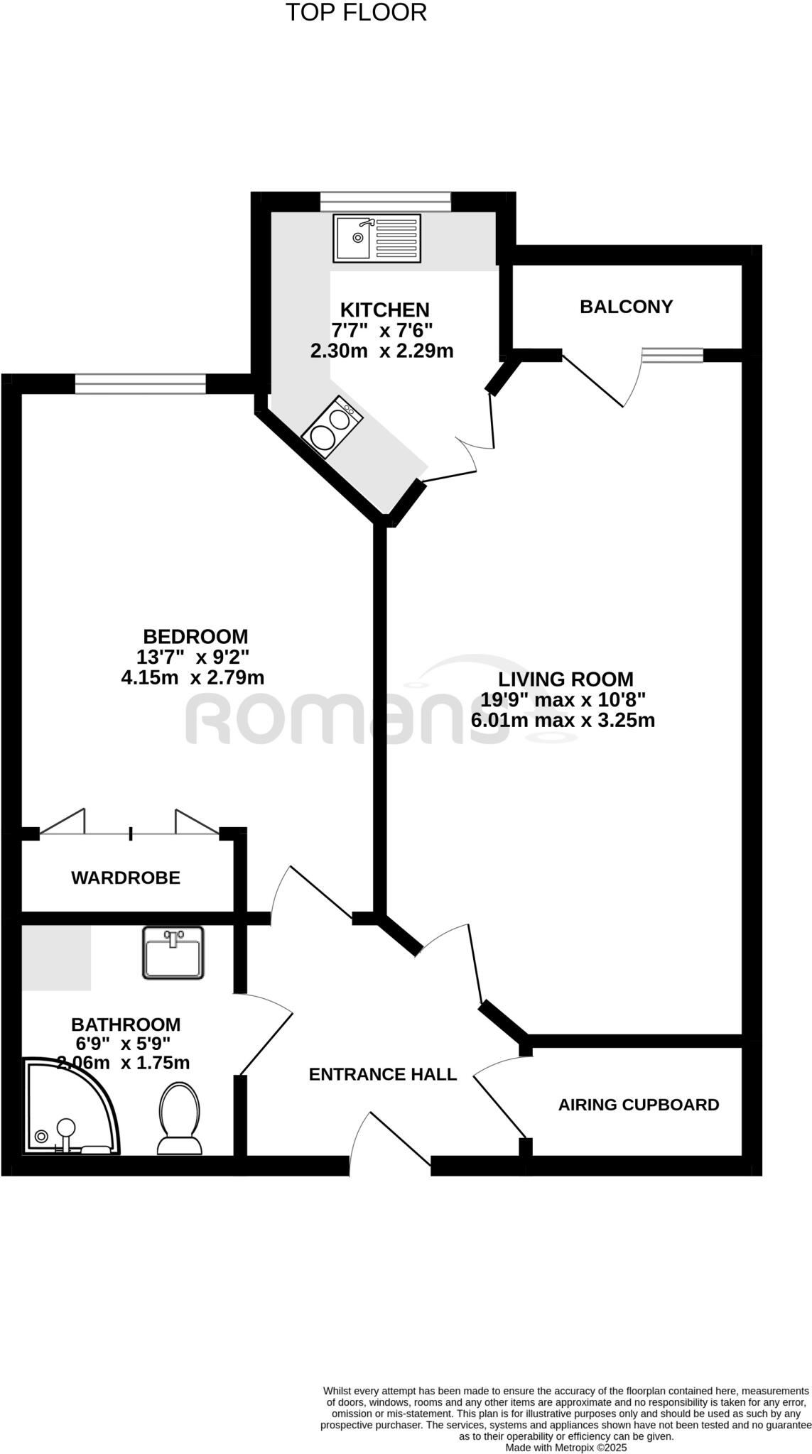
***NO ONWARD CHAIN*** Presented to the market is this neutrally decorated one bedroom apartment, for individuals over the age of 55. This property offers a comfortable and relaxed lifestyle with a double bedroom with built-in wardrobe, a re-fitted shower room and a re-fitte...
Property Oracle says ..
This one bedroom apartment is located on Yorktown Road in College Town, Sandhurst. The property is well presented and benefits from a modern fitted kitchen and bathroom. There is also a communal lounge and laundry facilities. The apartment is conveniently located near local amenities and transport links. While the property itself is in good condition, the lack of plot size may be a drawback for some buyers. The list price is below the average price per square foot for the area, making it potentially good value for money.
Therefore, we give this property 6 / 10. *Disclaimer: This is our option and does constitute a recommendation or financial advice. Do your own research. *
- Price
- 8
- Condition
- 8
- Location
- 7
- Land
- 1
- Bedrooms
- 1
- Bathrooms
- 1
- Sqft (est)
- 770.05
The heatmap indicates the level of crime in the area. The color of the heatmap indicates the crime severity and recency.
Metrics Year-on-Year
- Average area value
- 217,143.00 £Decreased by 10.70 %
- Est sale value
- 189,432.30 £Decreased by 12.14 %
- Average area rental value
- 1,267.00 £/moIncreased by 25.57 %
- Est letting value
- 770.05 £/moUnchanged by 0.00 %
- Est rental Yield
- 7.00 %Increased by 40.56 %
- Crime Rate
- 23.00 %Unchanged by 0.00 %
Agent Activity
Romans created the listing.
Nearby Schools
| Name | Type | Ofsted | Distance |
|---|---|---|---|
| Alders And Chestnuts Children'S Centre | Children's Centre | 0.81 KM | |
| College Town Primary School | Community School | Good | 0.85 KM |
| Owlsmoor Primary School | Community School | Good | 1.49 KM |
| Uplands Primary School And Nursery | Community School | Outstanding | 1.51 KM |
| Frogmore Junior School | Academy Sponsor Led | Good | 1.68 KM |
Images
Nearby Streets
| Name | Average Price | Average Sqft | Distance |
|---|---|---|---|
| Fox Court | £ 0 | 0 | 0.00 KM |
| The Greenway | £ 0 | 0 | 0.00 KM |
| St Marys Close | £ 739,500 | 0 | 0.00 KM |
| Owlsmoor Road | £ 525,000 | 0 | 0.00 KM |
| Marshall Road | £ 0 | 0 | 0.00 KM |
Nearby Transport
| Name | NLC | TLC | Distance |
|---|---|---|---|
| Blackwater | 5625 | BAW | 1.72 KM |
| Sandhurst (Berks) | 5646 | SND | 2.15 KM |
| Crowthorne | 5628 | CRN | 4.50 KM |
| Camberley | 5682 | CAM | 4.62 KM |
| Frimley | 5683 | FML | 5.58 KM |
Nearby Listings
| Address | Price | Type | Score | Distance |
|---|---|---|---|---|
| Yorktown Road, College Town, Sandhurst | £ 160,000 | BUY | 5 / 10 | 0.00 KM |
| Yorktown Road, College Town, Sandhurst | £ 155,000 | BUY | 5 / 10 | 0.00 KM |
| Yorktown Road, College Town, Sandhurst | £ 140,000 | BUY | 6 / 10 | 0.00 KM |
| Yorktown Road, Sandhurst | £ 225,000 | BUY | 6 / 10 | 0.00 KM |
| Yorktown Road, College Town, Sandhurst, Berkshire, GU47 | £ 160,000 | BUY | 5 / 10 | 0.00 KM |
Nearby Properties
| Address | Price | Distance |
|---|---|---|
| 238 Yorktown Road | £ 500,000 | 0.06 KM |
| 261 Yorktown Road | £ 250,000 | 0.06 KM |
| 237 Yorktown Road | £ 230,000 | 0.06 KM |
| 255 Yorktown Road | £ 317,500 | 0.06 KM |
| 263 Yorktown Road | £ 287,450 | 0.06 KM |