Landgate, Rye
WE

Landgate, Rye

By Weald Property

£ 400,000

Reviews

2 out of 5 stars

Weald Property says ..

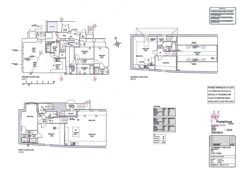
An exciting opportunity to acquire this attractive building with planning permission for conversion of the building to residential use to create three self contained 2 bedroom flats. Located in the centre of the historic town of Rye, the property has been used for the last several years as a soc...

Property Oracle says ..

This property in Rye, East Sussex, presents a unique investment opportunity. Situated on Landgate in the heart of the historic town, it benefits from a central location with easy access to local shops, schools, and transport. The railway station providing a link to other towns. The building itself is substantial, boasting six bedrooms and three bathrooms across multiple floors, suggesting significant living space or potential for conversion.

However, a key consideration is the condition of the property. The provided images show it requires significant updating and refurbishment. The interior looks dated, and renovation will be necessary to improve its aesthetics and appeal. The lack of detailed information on the specific condition of the structural elements such as the roof, plumbing and wiring creates uncertainty for a potential buyer.

The plot size is very limited. The minimal outdoor space is a factor to consider when assessing the overall value. The planning permission already granted is potentially a positive feature of the property but adds to the complexity of the transaction. The list price of £400,000 is not unreasonable for Rye, especially given the potential returns from converting the property into flats, though the amount of work required should be factored into any potential buyer’s offer. Further due diligence and professional surveys are crucial before making a purchase decision.

Therefore, we give this property 4 / 10. *Disclaimer: This is our option and does constitute a recommendation or financial advice. Do your own research. *

Price
6
Condition
4
Location
7
Land
1
Bedrooms
6
Bathrooms
3
Sqft (est)
2,712.51

The heatmap indicates the level of crime in the area. The color of the heatmap indicates the crime severity and recency.

Metrics Year-on-Year

Average area value
413,321.00 £
Decreased by 18.21 %
from 505,357.00 £
Est sale value
897,840.81 £
Decreased by 17.87 %
from 1,093,141.53 £
Average area rental value
1,300.00 £/mo
Increased by 7.44 %
from 1,210.00 £/mo
Est letting value
2,712.51 £/mo
from 0.00 £/mo
Est rental Yield
3.77 %
Increased by 31.36 %
from 2.87 %
Crime Rate
50.00 %
Unchanged by 0.00 %
from 50.00 %

Agent Activity

  • Weald Property created the listing.

Nearby Schools

NameTypeOfstedDistance
Rye CollegeAcademy Converter0.44 KM
Rye Community Primary SchoolAcademy Converter0.63 KM
St Michael'S Church Of England Primary SchoolVoluntary Controlled SchoolGood2.07 KM
St Thomas' Church Of England Aided Primary SchoolVoluntary Aided SchoolGood4.43 KM
Peasmarsh Ce Primary SchoolChildren's Centre Linked Site5.33 KM

Images

the-brewery-yard-club-tn31 (1).jpg brewery-yard-club-tn31 (18).jpg the-brewery-yard-club-tn31 (3).jpg the-brewery-yard-club-tn31 (5).jpg the-brewery-yard-club-tn31 (7).jpg the-brewery-yard-club-tn31 (6).jpg the-brewery-yard-club-tn31 (8).jpg the-brewery-yard-club-tn31 (9).jpg Proposed Floor Plan.jpg brewery-yard-club-tn31 (11).jpg

Nearby Streets

NameAverage PriceAverage SqftDistance
Ailsworth Lane £ 450,00000.00 KM
Ockman Lane £ 599,95000.00 KM
Market Street £ 647,47500.00 KM
Market Road £ 500,00000.00 KM
Needles Passage £ 000.00 KM

Nearby Transport

NameNLCTLCDistance
Rye (Sussex)5024RYE0.53 KM
Winchelsea5042WSE4.26 KM

Nearby Listings

AddressPriceTypeScoreDistance
Landgate, Rye £ 400,000BUY4 / 100.00 KM
Landgate, Rye £ 499,950BUY7 / 100.02 KM
Landgate, Rye, East Sussex, TN31 £ 360,000BUY5 / 100.03 KM
Burnhams, Rye £ 375,000BUY5 / 100.03 KM
Landgate Square, Rye £ 550,000BUY7 / 100.04 KM

Nearby Properties

AddressPriceDistance
2 Landgate Square £ 410,0000.06 KM
1 Landgate Square £ 375,0000.06 KM
7 Landgate Square £ 271,0000.07 KM
8 Landgate Square £ 260,0000.07 KM
87 Fishmarket Road £ 180,0000.07 KM