Savills says ..
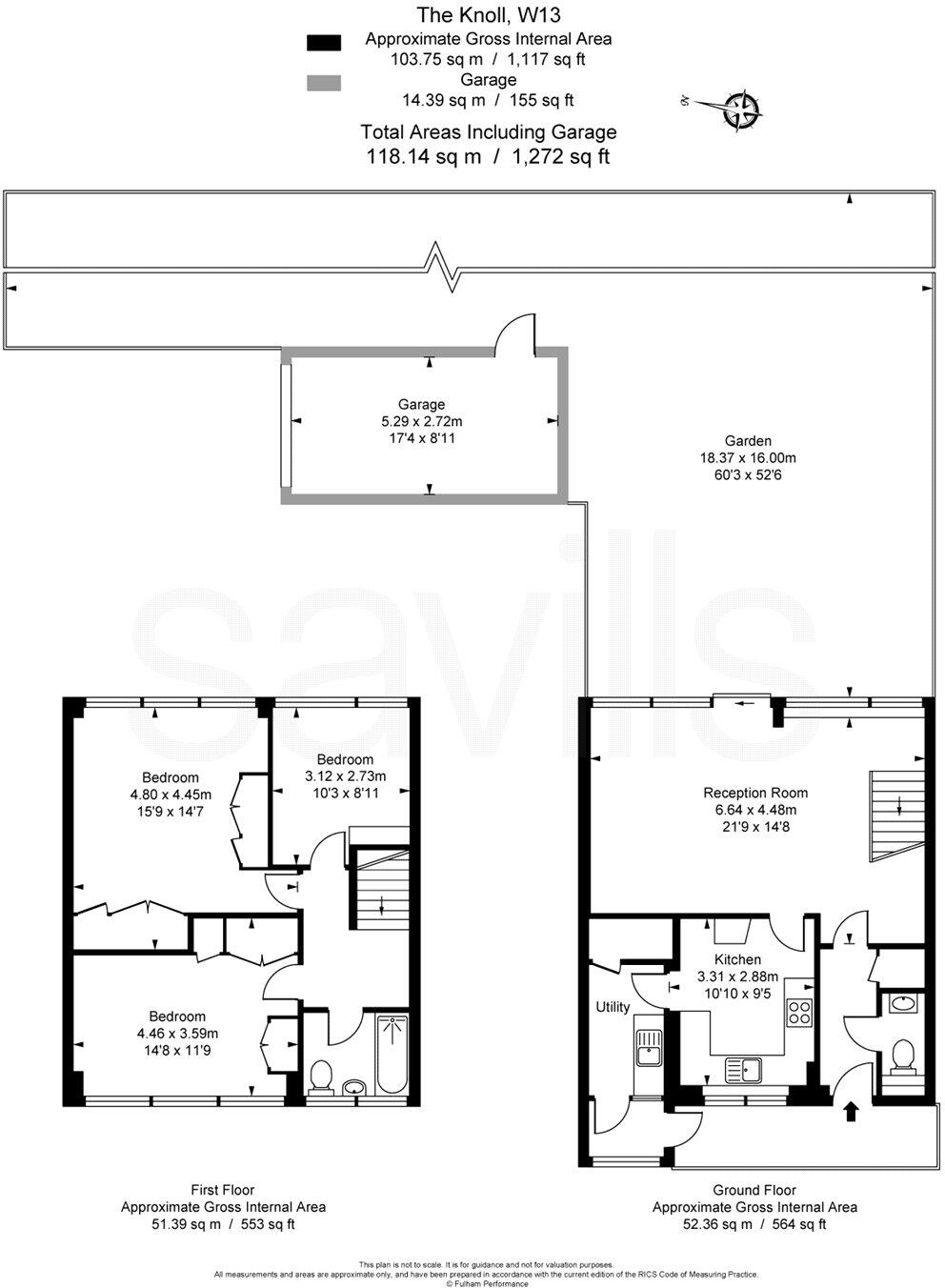
Well-proportioned three bedroom family home with large garden, situated in a quiet residential cul-de-sac.
Property Oracle says ..
This end-of-terrace property is located in the well-regarded Ealing Broadway area of London. The property offers three bedrooms and one bathroom, with a total area of 1,116.76 sqft. While the property is in a good location with access to schools and transportation, it appears to be in need of some modernisation, particularly in the kitchen and bathroom. The property benefits from a garden, which is a desirable feature. Considering the location, size, and condition, the list price of £850,000 seems reasonable. The property is listed with Savills.
Therefore, we give this property 7 / 10. *Disclaimer: This is our option and does constitute a recommendation or financial advice. Do your own research. *
- Price
- 7
- Condition
- 6
- Location
- 8
- Land
- 7
- Bedrooms
- 3
- Bathrooms
- 1
- Sqft (est)
- 1,116.76
The heatmap indicates the level of crime in the area. The color of the heatmap indicates the crime severity and recency.
Metrics Year-on-Year
- Average area value
- 677,500.00 £Decreased by 34.26 %
- Est sale value
- 1,360,213.68 £Increased by 51.87 %
- Average area rental value
- 2,388.00 £/moIncreased by 11.33 %
- Est letting value
- 4,467.04 £/moIncreased by 300.00 %
- Est rental Yield
- 4.23 %Increased by 69.20 %
- Crime Rate
- 1.00 %Unchanged by 0.00 %
Agent Activity
Savills created the listing.
Nearby Schools
| Name | Type | Ofsted | Distance |
|---|---|---|---|
| Notting Hill & Ealing High School | Other Independent School | 0.46 KM | |
| St Benedict'S School | Other Independent School | 0.52 KM | |
| Harvington Prep School | Other Independent School | 0.68 KM | |
| Durston House School | Other Independent School | 0.71 KM | |
| St Gregory'S Catholic Primary School | Voluntary Aided School | Requires improvement | 0.75 KM |
Images
Nearby Streets
| Name | Average Price | Average Sqft | Distance |
|---|---|---|---|
| Mortimer Road | £ 2,100,000 | 0 | 0.00 KM |
| Mount Avenue | £ 4,000,000 | 0 | 0.00 KM |
| Carlton Road | £ 1,246,111 | 0 | 0.00 KM |
| Montague Road | £ 1,875,000 | 0 | 0.00 KM |
| Victoria Road | £ 0 | 0 | 0.00 KM |
Nearby Transport
| Name | NLC | TLC | Distance |
|---|---|---|---|
| West Ealing | 3188 | WEA | 1.17 KM |
| Ealing Broadway | 3190 | EAL | 1.30 KM |
| Drayton Green | 3099 | DRG | 2.04 KM |
| Castle Bar Park | 3098 | CBP | 2.17 KM |
| Hanwell | 3191 | HAN | 3.08 KM |
Nearby Listings
| Address | Price | Type | Score | Distance |
|---|---|---|---|---|
| The Knoll, London, W13 | £ 850,000 | BUY | 7 / 10 | 0.00 KM |
| The Knoll, Ealing W13 | £ 829,950 | BUY | Unknown | 0.01 KM |
| The Knoll, Ealing, London, W13 | £ 850,000 | BUY | 6 / 10 | 0.03 KM |
| The Knoll Ealing W13 | £ 900,000 | BUY | Unknown | 0.04 KM |
| The Knoll Ealing W13 | £ 775,000 | BUY | 7 / 10 | 0.04 KM |
Nearby Properties
| Address | Price | Distance |
|---|---|---|
| 76 The Knoll | £ 392,500 | 0.01 KM |
| 58 The Knoll | £ 830,000 | 0.01 KM |
| 62 The Knoll | £ 362,000 | 0.01 KM |
| 66 The Knoll | £ 300,000 | 0.01 KM |
| 54 The Knoll | £ 300,000 | 0.01 KM |