SmoothSale says ..
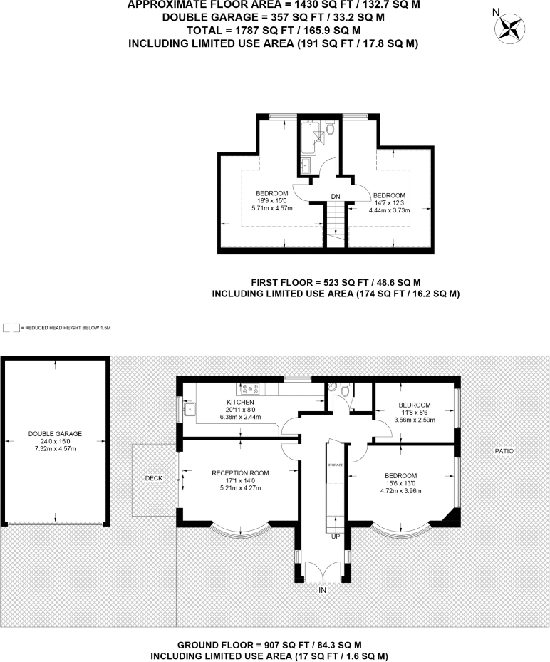
A spacious 4-bedroom detached bungalow on a large corner plot, offering excellent potential for development (STPP). Features include a bay-fronted reception room, freestanding double garage, and a convenient location near amenities and transport links.
Property Oracle says ..
This 4-bedroom, 2-bathroom detached bungalow is situated in Brunswick Park, Barnet, within a reasonable distance to local schools and New Southgate station on the Great Northern line. The property presents itself as a comfortable family home. Images showcase a traditional aesthetic, including a bay window in the living room, a relatively modern kitchen, and several bedrooms of decent size. The outdoor area includes a garden with a patio/deck, offering space for relaxation or entertaining. The property appears well-maintained, but some cosmetic updates or minor renovations might enhance its marketability. The list price of £875,000 needs further contextualisation with precise square footage data to ascertain true value for money against similar properties in the area. The lack of detailed plot size information also affects a comprehensive evaluation. Overall, it’s a liveable property in a decent area, with potential, but a lack of precise data makes a definitive conclusion difficult.
Therefore, we give this property 6 / 10. *Disclaimer: This is our option and does constitute a recommendation or financial advice. Do your own research. *
- Price
- 7
- Condition
- 6
- Location
- 7
- Land
- 4
- Bedrooms
- 4
- Bathrooms
- 2
- Sqft (est)
- 1,787.00
The heatmap indicates the level of crime in the area. The color of the heatmap indicates the crime severity and recency.
Metrics Year-on-Year
- Average area value
- 875,000.00 £Increased by 18.07 %
- Est sale value
- 1,413,517.00 £Increased by 32.50 %
- Average area rental value
- 2,050.00 £/moDecreased by 21.70 %
- Est letting value
- 1,787.00 £/moDecreased by 50.00 %
- Est rental Yield
- 2.81 %Decreased by 33.73 %
- Crime Rate
- 3.00 %Unchanged by 0.00 %
Agent Activity
SmoothSale created the listing.
Nearby Schools
| Name | Type | Ofsted | Distance |
|---|---|---|---|
| Our Lady Of Lourdes Catholic Primary School | Voluntary Aided School | Good | 0.52 KM |
| Focus 1St Academy | Other Independent School | Good | 0.65 KM |
| Bowes And Garfield Children'S Centre | Children's Centre | 0.66 KM | |
| Garfield Primary School | Community School | Good | 0.69 KM |
| St Paul'S Cofe Primary School N11 | Voluntary Aided School | Good | 0.76 KM |
Images
Nearby Streets
| Name | Average Price | Average Sqft | Distance |
|---|---|---|---|
| Cross Road | £ 0 | 0 | 0.00 KM |
| Marlborough Avenue | £ 0 | 0 | 0.00 KM |
| Regal Drive | £ 0 | 0 | 0.00 KM |
| Beaconsfield Close | £ 0 | 0 | 0.00 KM |
| Morton Crescent | £ 0 | 0 | 0.00 KM |
Nearby Transport
| Name | NLC | TLC | Distance |
|---|---|---|---|
| New Southgate | 6019 | NSG | 0.81 KM |
| Bowes Park | 6027 | BOP | 2.43 KM |
| Palmers Green | 6021 | PAL | 3.10 KM |
| Alexandra Palace | 6025 | AAP | 3.15 KM |
| Oakleigh Park | 6020 | OKL | 3.67 KM |
Nearby Listings
| Address | Price | Type | Score | Distance |
|---|---|---|---|---|
| Waterfall Road, London | £ 800,000 | BUY | Unknown | 0.04 KM |
| Bell Brook Rise, Friern Barnet, London, N11 | £ 900,000 | BUY | 8 / 10 | 0.05 KM |
| Waterfall Road, London, N11 | £ 900,000 | BUY | 6 / 10 | 0.09 KM |
| Waterfall Road, Arnos Grove, London, N11 | £ 899,995 | BUY | 7 / 10 | 0.09 KM |
| Pymmes Green Road, New Southgate, N11 | £ 395,000 | BUY | 5 / 10 | 0.11 KM |
Nearby Properties
| Address | Price | Distance |
|---|---|---|
| 38 Waterfall Road | £ 388,000 | 0.05 KM |
| 40 Waterfall Road | £ 625,000 | 0.05 KM |
| 42 Waterfall Road | £ 380,000 | 0.06 KM |
| 16 Ryhope Road | £ 322,000 | 0.06 KM |
| 6 Ryhope Road | £ 372,000 | 0.06 KM |