Wards says ..
OPEN HOUSE SATURDAY 25TH JANUARY 2025 - by appointment only. This end of terrace house is located within a cul-de-sac in a great location, especially for families and anyone looking to commute. With a conservatory extension to the rear off the kitchen, it has ample living space and lots of light ...
Property Oracle says ..
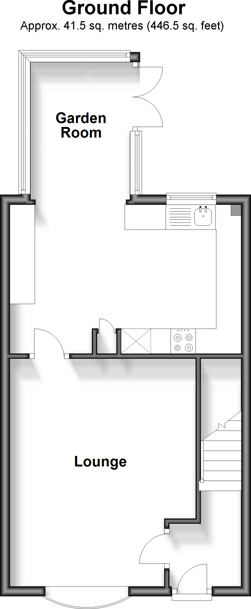
This three-bedroom, one-bathroom end-of-terrace house in Maidstone, Kent, presents itself as a well-maintained family home. The property boasts a modern fitted kitchen, a recently updated bathroom and is presented in good decorative order throughout. The inclusion of a conservatory extension adds to the living space, improving the home’s overall functionality. The images showcase a bright and airy interior, with tasteful décor. The outside space, while modest in size, offers a small garden, ideal for families with young children. The location is convenient, with a selection of well-regarded primary schools in the vicinity, and nearby train stations offering good transport connections. While no specific information was available in relation to the precise proximity of local shops, the property benefits from being within a residential area. The asking price seems relatively competitive considering the property’s features and the reported prices for similar properties in the area, although further verification of comparable properties would improve accuracy in evaluating this. More data regarding the exact size and square footage of the property and nearby comparables would allow for a more robust analysis.
Therefore, we give this property 6 / 10. *Disclaimer: This is our option and does constitute a recommendation or financial advice. Do your own research. *
- Price
- 7
- Condition
- 8
- Location
- 7
- Land
- 4
- Bedrooms
- 3
- Bathrooms
- 1
- Sqft (est)
- 731.95
The heatmap indicates the level of crime in the area. The color of the heatmap indicates the crime severity and recency.
Metrics Year-on-Year
- Average area value
- 366,083.00 £Increased by 3.79 %
- Est sale value
- 324,253.85 £Increased by 80.08 %
- Average area rental value
- 1,594.00 £/moIncreased by 26.41 %
- Est letting value
- 731.95 £/mo
- Est rental Yield
- 5.23 %Increased by 21.91 %
- Crime Rate
- 6.00 %Unchanged by 0.00 %
Agent Activity
Wards created the listing.
Nearby Schools
| Name | Type | Ofsted | Distance |
|---|---|---|---|
| Oaks Primary Academy | Academy Sponsor Led | Outstanding | 0.55 KM |
| Park Way Primary School | Community School | Good | 0.79 KM |
| Molehill Primary Academy | Academy Sponsor Led | Good | 0.85 KM |
| Five Acre Wood School | Foundation Special School | Outstanding | 0.93 KM |
| New Line Learning Academy | Academy Sponsor Led | Good | 1.05 KM |
Images
Nearby Streets
| Name | Average Price | Average Sqft | Distance |
|---|---|---|---|
| Norfolk Road | £ 0 | 0 | 0.00 KM |
| Sutton Road | £ 384,750 | 0 | 0.00 KM |
| Lincoln Road | £ 387,500 | 0 | 0.00 KM |
| Surrey Road | £ 366,250 | 0 | 0.00 KM |
| Woodside Road | £ 0 | 0 | 0.00 KM |
Nearby Transport
| Name | NLC | TLC | Distance |
|---|---|---|---|
| Maidstone West | 5222 | MDW | 3.12 KM |
| Maidstone East | 5115 | MDE | 3.22 KM |
| Maidstone Barracks | 5237 | MDB | 3.73 KM |
| Bearsted | 5091 | BSD | 4.80 KM |
| East Farleigh | 5234 | EFL | 6.05 KM |
Nearby Listings
| Address | Price | Type | Score | Distance |
|---|---|---|---|---|
| Finglesham Court, Maidstone, Kent | £ 325,000 | BUY | 6 / 10 | 0.00 KM |
| Finglesham Court, Maidstone, ME15 | £ 220,000 | BUY | 6 / 10 | 0.01 KM |
| Finglesham Court, Maidstone | £ 199,995 | BUY | 6 / 10 | 0.02 KM |
| Finglesham Court, Maidstone, ME15 | £ 230,000 | BUY | 6 / 10 | 0.05 KM |
| Finglesham Court, Maidstone | £ 350,000 | BUY | 7 / 10 | 0.08 KM |
Nearby Properties
| Address | Price | Distance |
|---|---|---|
| 39 Finglesham Court | £ 195,000 | 0.02 KM |
| 34a Finglesham Court | £ 186,000 | 0.02 KM |
| 37 Finglesham Court | £ 170,000 | 0.02 KM |
| 35a Finglesham Court | £ 202,000 | 0.02 KM |
| 20 Finglesham Court | £ 210,000 | 0.02 KM |