Beechwood Close, Knaphill, Woking, Surrey, GU21
By Seymours Estate Agents
£ 499,950
Reviews
3 out of 5 stars
Seymours Estate Agents says ..
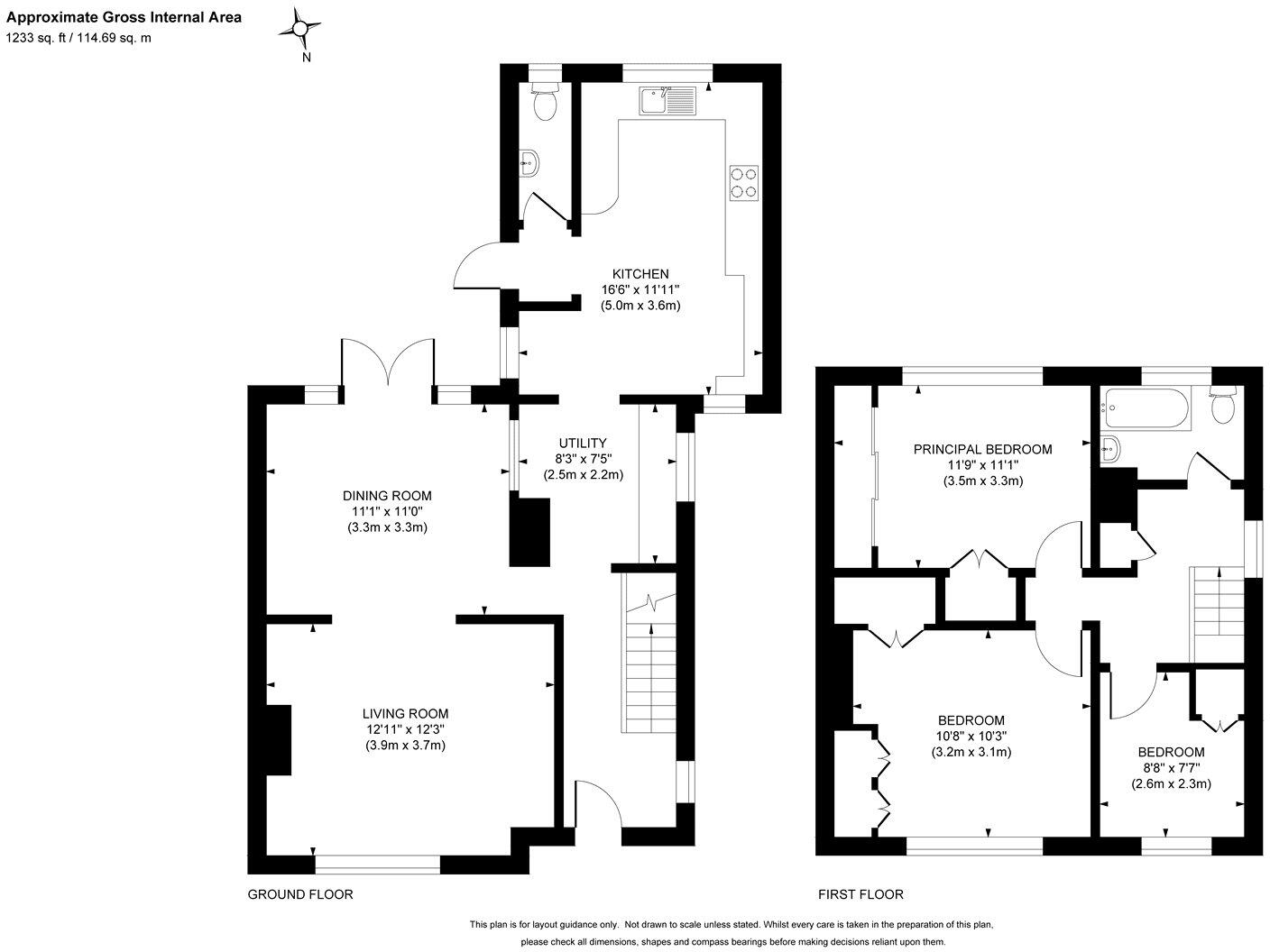
Tucked away in a peaceful cul de sac close to Knaphill village and local bus routes providing easy access to Woking town centre, this well presented three bedroom semi detached home offers spacious and versatile accommodation ideal for modern family living. The ground floor features a welcom...
Property Oracle says ..
This is a three-bedroom semi-detached house in Knaphill, Woking. The property offers a garden and is located within a reasonable distance of local amenities, including schools and transportation links. While the property requires renovation, it presents an opportunity for buyers to customize the space to their liking. The price is relatively in line with the local market, but the condition should be factored into any offer.
Therefore, we give this property 6 / 10. *Disclaimer: This is our option and does constitute a recommendation or financial advice. Do your own research. *
- Price
- 7
- Condition
- 4
- Location
- 7
- Land
- 7
- Bedrooms
- 3
- Bathrooms
- 1
- Sqft (est)
- 854.26
The heatmap indicates the level of crime in the area. The color of the heatmap indicates the crime severity and recency.
Metrics Year-on-Year
- Average area value
- 586,400.00 £Increased by 18.76 %
- Est sale value
- 406,627.76 £Increased by 6.01 %
- Average area rental value
- 2,150.00 £/moIncreased by 9.47 %
- Est letting value
- 854.26 £/moUnchanged by 0.00 %
- Est rental Yield
- 4.40 %Decreased by 7.76 %
- Crime Rate
- 13.00 %Unchanged by 0.00 %
Agent Activity
Seymours Estate Agents created the listing.
Nearby Schools
| Name | Type | Ofsted | Distance |
|---|---|---|---|
| St John'S Primary School | Academy Sponsor Led | Requires improvement | 0.47 KM |
| St John'S Primary School And Sure Start Children'S Centre | Children's Centre | 0.47 KM | |
| St Hugh Of Lincoln Catholic Primary School | Academy Converter | Good | 0.91 KM |
| The Oaktree School | Academy Converter | 1.06 KM | |
| The Winston Churchill School A Specialist Sports College | Foundation School | Good | 1.08 KM |
Images
Nearby Streets
| Name | Average Price | Average Sqft | Distance |
|---|---|---|---|
| Beechwood Close | £ 0 | 0 | 0.00 KM |
| Oakway | £ 475,000 | 0 | 0.00 KM |
| Elmgrove Close | £ 425,000 | 0 | 0.00 KM |
| Rose Lodge | £ 0 | 0 | 0.00 KM |
| Robin Hood Roundabout cycle path | £ 0 | 0 | 0.00 KM |
Nearby Transport
| Name | NLC | TLC | Distance |
|---|---|---|---|
| Brookwood | 5687 | BKO | 3.46 KM |
| Worplesdon | 5686 | WPL | 4.44 KM |
| Woking | 5685 | WOK | 5.72 KM |
| Longcross | 5674 | LNG | 7.49 KM |
| Sunningdale | 5671 | SNG | 8.52 KM |
Nearby Listings
| Address | Price | Type | Score | Distance |
|---|---|---|---|---|
| Beechwood Close, Knaphill, Woking, Surrey, GU21 | £ 499,950 | BUY | 6 / 10 | 0.00 KM |
| Barnby Road, Knaphill, Woking, Surrey, GU21 | £ 599,950 | BUY | Unknown | 0.09 KM |
| Robin Hood Road, Knaphill, Surrey, GU21 | £ 485,000 | BUY | 7 / 10 | 0.10 KM |
| Woking, Woking, GU21 | £ 425,000 | BUY | Unknown | 0.10 KM |
| Knaphill, Woking | £ 415,000 | BUY | 6 / 10 | 0.14 KM |
Nearby Properties
| Address | Price | Distance |
|---|---|---|
| 4 Beechwood Close | £ 420,000 | 0.04 KM |
| 7 Beechwood Close | £ 445,000 | 0.04 KM |
| 17a Beechwood Road | £ 439,950 | 0.09 KM |
| 14 Beechwood Road | £ 334,000 | 0.09 KM |
| 6 Beechwood Road | £ 180,000 | 0.09 KM |