eXp UK says ..
Introducing this perfect starter home in a lovely cul de sac off Summer Trees Avenue in Lea. Ready to move into yet with bags of potential and occupying an excellent plot, contact us for your viewing.
Property Oracle says ..
Therefore, we give this property 6 / 10. *Disclaimer: This is our option and does constitute a recommendation or financial advice. Do your own research. *
- Price
- 7
- Condition
- 5
- Location
- 7
- Land
- 6
- Bedrooms
- 3
- Bathrooms
- 1
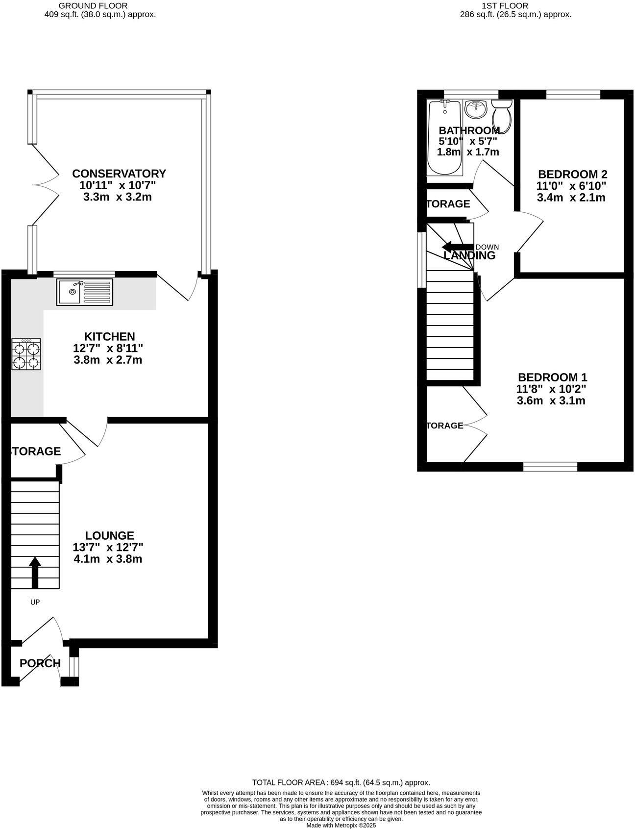
- Sqft (est)
- 694.27
The heatmap indicates the level of crime in the area. The color of the heatmap indicates the crime severity and recency.
Metrics Year-on-Year
- Average area value
- 167,857.00 £Decreased by 15.69 %
- Est sale value
- 124,968.60 £Decreased by 7.22 %
- Average area rental value
- 975.00 £/moIncreased by 19.19 %
- Est letting value
- 694.27 £/mo
- Est rental Yield
- 6.97 %Increased by 41.38 %
- Crime Rate
- 3.00 %Unchanged by 0.00 %
from 199,084.00 £
from 134,688.38 £
from 818.00 £/mo
from 0.00 £/mo
from 4.93 %
from 3.00 %
Agent Activity
eXp UK created the listing.
Nearby Schools
| Name | Type | Ofsted | Distance |
|---|---|---|---|
| Sure Start Preston West Children'S Centre | Children's Centre | 0.52 KM | |
| Ashton Primary School | Community School | Good | 0.56 KM |
| Lea Community Primary School | Community School | Good | 0.83 KM |
| St Bernard'S Catholic Primary School, Preston | Voluntary Aided School | Good | 1.01 KM |
| Cottam Primary School | Community School | Good | 1.06 KM |
Images
Nearby Streets
| Name | Average Price | Average Sqft | Distance |
|---|---|---|---|
| Nelson Crescent | £ 270,000 | 0 | 0.00 KM |
| Ashford Road | £ 0 | 0 | 0.00 KM |
| Charles Way | £ 72,500 | 0 | 0.00 KM |
| Lyndon Close | £ 75,250 | 0 | 0.00 KM |
| Park Drive | £ 385,000 | 0 | 0.00 KM |
Nearby Transport
| Name | NLC | TLC | Distance |
|---|---|---|---|
| Salwick | 2673 | SLW | 6.17 KM |
| Preston (Lancs) | 2753 | PRE | 6.21 KM |
| Lostock Hall | 2689 | LOH | 9.85 KM |
Nearby Listings
| Address | Price | Type | Score | Distance |
|---|---|---|---|---|
| Ash Coppice, Lea, Preston, PR2 1RY | £ 160,000 | BUY | 6 / 10 | 0.00 KM |
| Ash Coppice, Preston, PR2 | £ 180,000 | BUY | Unknown | 0.00 KM |
| Ash Coppice, Lea, Preston, Lancashire, PR2 | £ 195,000 | BUY | 7 / 10 | 0.01 KM |
| Freshfields, Preston | £ 265,000 | BUY | 6 / 10 | 0.15 KM |
| Ash Meadow, Preston, Lancashire, PR2 | £ 224,950 | BUY | 7 / 10 | 0.23 KM |
Nearby Properties
| Address | Price | Distance |
|---|---|---|
| 24 Ash Coppice | £ 157,000 | 0.01 KM |
| 57 Ash Coppice | £ 117,500 | 0.01 KM |
| 45 Ash Coppice | £ 120,000 | 0.01 KM |
| 14 Ash Coppice | £ 132,500 | 0.01 KM |
| 16 Ash Coppice | £ 122,000 | 0.01 KM |