Grasmere Road, Bromley
AL

Grasmere Road, Bromley

By Alan de Maid

£ 635,000

Reviews

3 out of 5 stars

Alan de Maid says ..

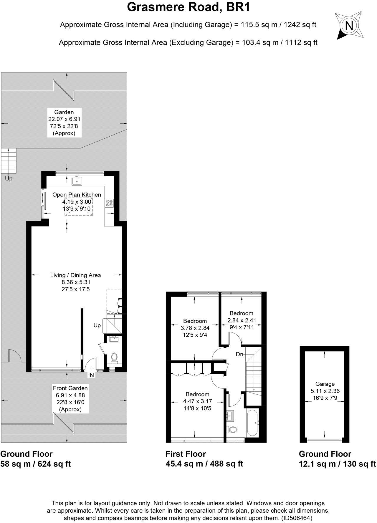
New to the market is this one of a kind recently refurbished Scandi inspired three bedroom end of terrace home boasting a 70ft south facing garden. The current owners have meticulously designed and remodelled the layout of the house creating a beautifully bright and open plan living and ent...

Property Oracle says ..

This is a well-presented, modern end-of-terrace property located in a desirable area of Bromley. The property benefits from a convenient location, good condition, and a well-maintained garden. The interior has been updated with a modern kitchen and bathrooms. The property is within walking distance of Shortlands railway station and several schools. The asking price is slightly above the average for the area, but the property’s condition and features justify the premium.

Therefore, we give this property 7 / 10. *Disclaimer: This is our option and does constitute a recommendation or financial advice. Do your own research. *

Price
7
Condition
8
Location
7
Land
6
Bedrooms
3
Bathrooms
2
Sqft (est)
943.85

The heatmap indicates the level of crime in the area. The color of the heatmap indicates the crime severity and recency.

Metrics Year-on-Year

Average area value
591,923.00 £
Increased by 11.40 %
from 531,371.00 £
Est sale value
568,197.70 £
Increased by 7.89 %
from 526,668.30 £
Average area rental value
1,705.00 £/mo
Decreased by 9.16 %
from 1,877.00 £/mo
Est letting value
943.85 £/mo
Unchanged by 0.00 %
from 943.85 £/mo
Est rental Yield
3.46 %
Decreased by 18.40 %
from 4.24 %
Crime Rate
2.00 %
Unchanged by 0.00 %
from 2.00 %

Agent Activity

  • Alan de Maid created the listing.

Nearby Schools

NameTypeOfstedDistance
Valley Primary SchoolAcademy ConverterGood0.54 KM
Parish Church Of England Primary SchoolAcademy Converter1.03 KM
Harris Primary Academy ShortlandsFree SchoolsOutstanding1.10 KM
Burnt Ash Children And Family CentreChildren's Centre1.21 KM
Bishop Challoner SchoolOther Independent School1.22 KM

Images

Picture No. 17 Picture No. 03 Picture No. 27 Picture No. 26 Picture No. 23 Picture No. 28 Picture No. 09 Picture No. 15 Picture No. 21 Picture No. 07 Picture No. 08 Picture No. 31 Picture No. 12 Picture No. 14 Picture No. 06 Picture No. 10 Picture No. 25 Picture No. 11 Picture No. 20 Picture No. 18 Picture No. 05 Picture No. 22 Picture No. 02 Picture No. 13 Picture No. 24 Picture No. 19

Nearby Streets

NameAverage PriceAverage SqftDistance
Treversh Court £ 000.00 KM
Cawston Court £ 325,00000.00 KM
Glebe Knoll £ 000.00 KM
Queen's Mead Road £ 299,99500.00 KM
Tresco Close £ 412,50000.00 KM

Nearby Transport

NameNLCTLCDistance
Shortlands5084SRT0.83 KM
Bromley North5096BMN1.27 KM
Ravensbourne5083RVB1.53 KM
Sundridge Park5155SUP1.71 KM
Bromley South5064BMS1.82 KM

Nearby Listings

AddressPriceTypeScoreDistance
Grasmere Road, Bromley £ 635,000BUY7 / 100.00 KM
Bromley Avenue, Bromley £ 600,000BUY7 / 100.10 KM
Bromley Avenue, Bromley £ 650,000BUY6 / 100.10 KM
Highland Road, Bromley, BR1 £ 375,000BUY6 / 100.11 KM
Highland Road, Bromley £ 450,000BUY6 / 100.12 KM

Nearby Properties

AddressPriceDistance
32 Grasmere Road £ 575,0000.02 KM
La Capannina £ 380,0000.02 KM
14 Grasmere Road £ 371,0000.02 KM
22 Grasmere Road £ 270,0000.02 KM
3c Grasmere Road £ 122,0000.02 KM