Chancellors says ..
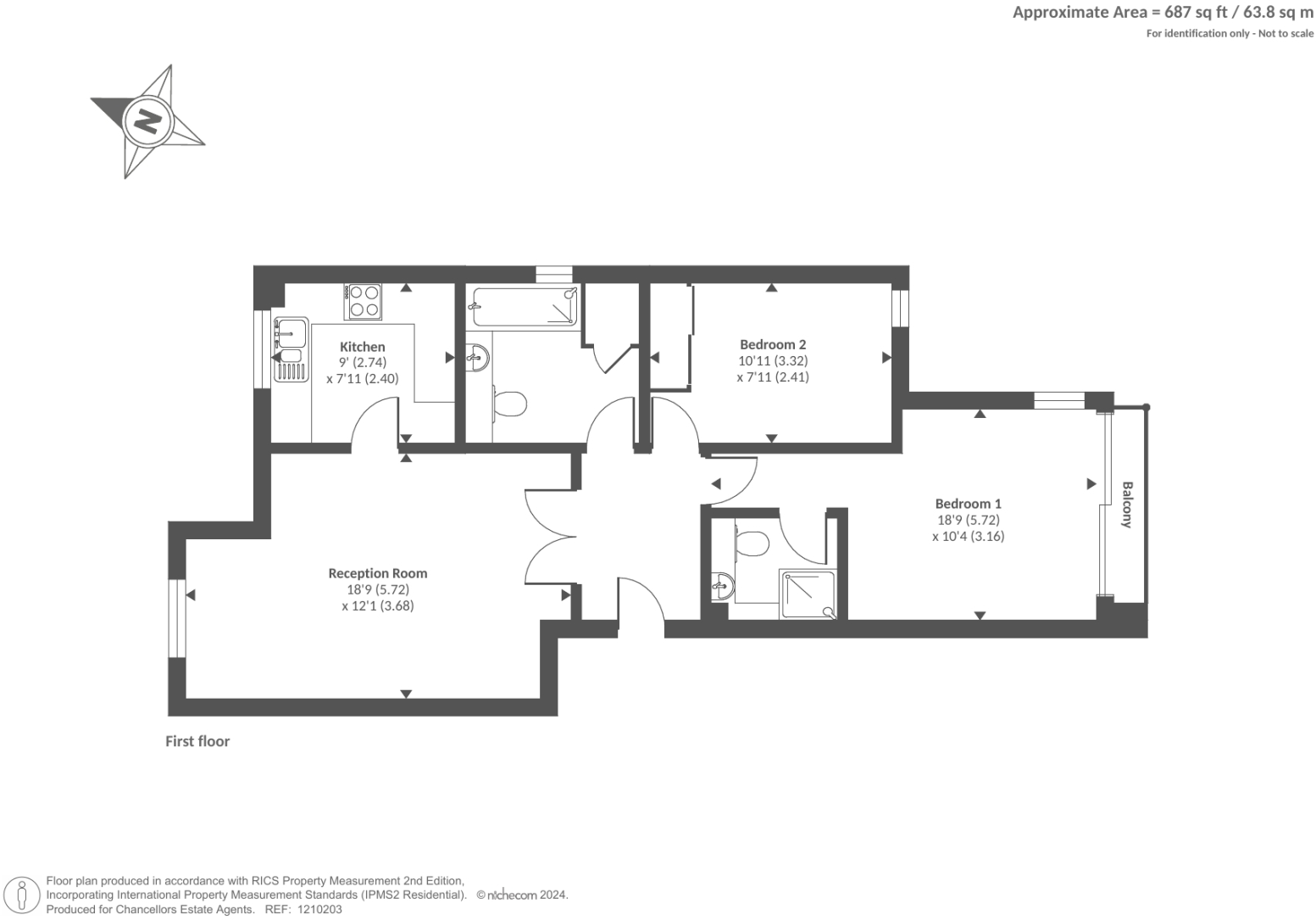
Set in this popular develop, convenient for the many shops, bars and restaurants of Caversham and striking distance of Reading Station is this two double bedroom, first floor apartment being sold with no onward chain.
Property Oracle says ..
Therefore, we give this property 6 / 10. *Disclaimer: This is our option and does constitute a recommendation or financial advice. Do your own research. *
- Price
- 8
- Condition
- 6
- Location
- 7
- Land
- 3
- Bedrooms
- 2
- Bathrooms
- 2
- Sqft (est)
- 578.37
The heatmap indicates the level of crime in the area. The color of the heatmap indicates the crime severity and recency.
Metrics Year-on-Year
- Average area value
- 436,875.00 £Increased by 21.02 %
- Est sale value
- 299,017.29 £Increased by 14.13 %
- Average area rental value
- 1,527.00 £/moDecreased by 4.62 %
- Est letting value
- 578.37 £/moDecreased by 50.00 %
- Est rental Yield
- 4.19 %Decreased by 21.24 %
- Crime Rate
- 2.00 %Unchanged by 0.00 %
from 360,999.00 £
from 262,001.61 £
from 1,601.00 £/mo
from 1,156.74 £/mo
from 5.32 %
from 2.00 %
Agent Activity
Chancellors created the listing.
Nearby Schools
| Name | Type | Ofsted | Distance |
|---|---|---|---|
| Queen Anne'S School | Other Independent School | 0.19 KM | |
| St Anne'S Catholic Primary School | Voluntary Aided School | Good | 0.26 KM |
| Caversham Preparatory School | Other Independent School | 0.43 KM | |
| Chiltern Nursery Nurse Training School | Miscellaneous | 0.43 KM | |
| Thameside Primary School | Community School | Good | 0.47 KM |
Images
Nearby Streets
| Name | Average Price | Average Sqft | Distance |
|---|---|---|---|
| Short Street | £ 0 | 0 | 0.00 KM |
| Harley Road | £ 0 | 0 | 0.00 KM |
| St John's Road | £ 0 | 0 | 0.00 KM |
| Knighton Close | £ 0 | 0 | 0.00 KM |
| Sheepwalk | £ 0 | 0 | 0.00 KM |
Nearby Transport
| Name | NLC | TLC | Distance |
|---|---|---|---|
| Reading | 3149 | RDG | 1.21 KM |
| Reading West | 3160 | RDW | 2.87 KM |
| Earley | 5694 | EAR | 6.34 KM |
| Tilehurst | 3154 | TLH | 6.84 KM |
| Winnersh Triangle | 5698 | WTI | 9.21 KM |
Nearby Listings
| Address | Price | Type | Score | Distance |
|---|---|---|---|---|
| Caversham, Berkshire, RG4 | £ 265,000 | BUY | 6 / 10 | 0.00 KM |
| Hampden Road, Reading, RG4 | £ 425,000 | BUY | 7 / 10 | 0.07 KM |
| Waller Court, Caversham, Reading, Berkshire, RG4 | £ 250,000 | BUY | 6 / 10 | 0.07 KM |
| Waller Court, Caversham, Reading | £ 265,000 | BUY | 6 / 10 | 0.07 KM |
| Waller Court, Caversham, Reading | £ 245,000 | BUY | 5 / 10 | 0.07 KM |
Nearby Properties
| Address | Price | Distance |
|---|---|---|
| 32 Waller Court | £ 169,000 | 0.07 KM |
| 16 Waller Court | £ 252,500 | 0.07 KM |
| 28 Waller Court | £ 260,000 | 0.07 KM |
| 18 Waller Court | £ 260,000 | 0.07 KM |
| 10 Waller Court | £ 103,000 | 0.07 KM |