Fastmove says ..
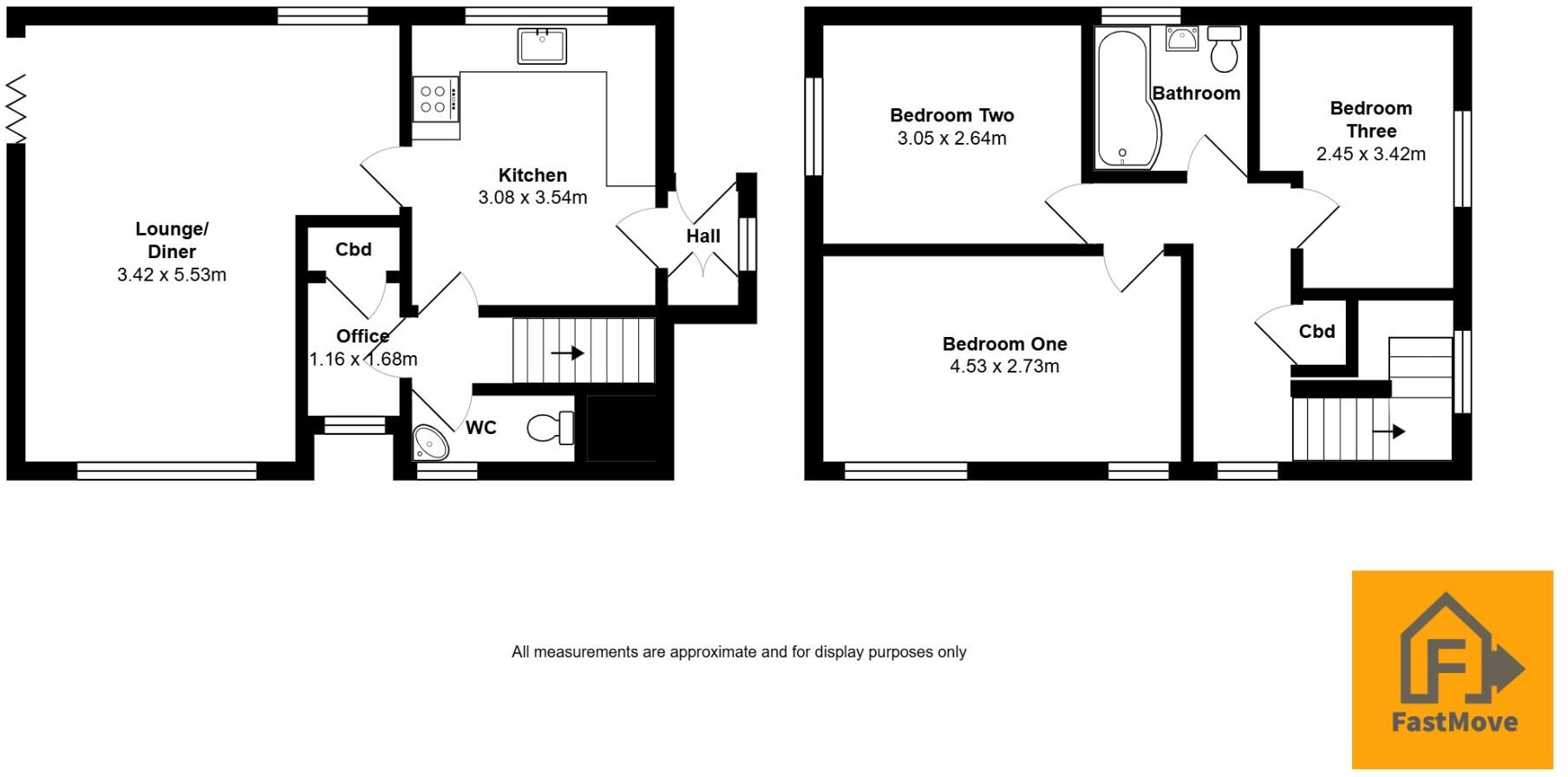
Magnificent three bedroom detached family home. Benefiting from high quality fixtures and fittings stunning kitchen, a wealth of character, spacious garden and parking for a number of vehicles.
Property Oracle says ..
This property is a 3 bedroom detached house located in Linthwaite, West Yorkshire. The property benefits from a modern fitted kitchen and bathroom, and appears to be well maintained and in good condition throughout. There is also a good sized garden to the rear. The location is convenient for local amenities and transport links, with several schools nearby. While the plot size is small, the property itself is well-presented and offers good value for money, considering comparable properties in the area.
Therefore, we give this property 8 / 10. *Disclaimer: This is our option and does constitute a recommendation or financial advice. Do your own research. *
- Price
- 8
- Condition
- 9
- Location
- 8
- Land
- 7
- Bedrooms
- 3
- Bathrooms
- 1
- Sqft (est)
- 651.54
The heatmap indicates the level of crime in the area. The color of the heatmap indicates the crime severity and recency.
Metrics Year-on-Year
- Average area value
- 301,900.00 £Increased by 9.07 %
- Est sale value
- 277,556.04 £Increased by 71.77 %
- Average area rental value
- 990.00 £/moIncreased by 18.71 %
- Est letting value
- 651.54 £/mo
- Est rental Yield
- 3.94 %Increased by 8.84 %
- Crime Rate
- 3.00 %Unchanged by 0.00 %
Agent Activity
Fastmove created the listing.
Nearby Schools
| Name | Type | Ofsted | Distance |
|---|---|---|---|
| Linthwaite Ardron Cofe (Voluntary Aided) Junior And Infant School | Voluntary Aided School | Requires improvement | 0.32 KM |
| Colne Valley High School | Academy Sponsor Led | Good | 0.45 KM |
| Woodside Green, A Share Primary Academy | Academy Sponsor Led | Requires improvement | 1.13 KM |
| Wellhouse Junior And Infant School | Community School | Good | 1.33 KM |
| Linthwaite Clough J I & Early Years Unit | Community School | Good | 1.44 KM |
Images
Nearby Streets
| Name | Average Price | Average Sqft | Distance |
|---|---|---|---|
| Kaye Lane | £ 0 | 0 | 0.00 KM |
| Rose Avenue | £ 0 | 0 | 0.00 KM |
| Storth Avenue | £ 0 | 0 | 0.00 KM |
| High Close | £ 287,500 | 0 | 0.00 KM |
| Myrtle Road | £ 0 | 0 | 0.00 KM |
Nearby Transport
| Name | NLC | TLC | Distance |
|---|---|---|---|
| Slaithwaite | 8450 | SWT | 4.03 KM |
| Lockwood | 8443 | LCK | 4.99 KM |
| Berry Brow | 8431 | BBW | 5.80 KM |
| Huddersfield | 8437 | HUD | 7.09 KM |
| Honley | 8436 | HOY | 7.46 KM |
Nearby Listings
| Address | Price | Type | Score | Distance |
|---|---|---|---|---|
| Broad Oak, Linthwaite, HD7 | £ 350,000 | BUY | 8 / 10 | 0.00 KM |
| Broad Oak, Linthwaite, Huddersfield, West Yorkshire, HD7 | £ 380,000 | BUY | 7 / 10 | 0.01 KM |
| Broad Oak, Linthwaite, Hudersfield, HD7 | £ 400,000 | BUY | 7 / 10 | 0.01 KM |
| High Crest, Linthwaite, Huddersfield | £ 275,000 | BUY | 7 / 10 | 0.18 KM |
| The Lodge, Linthwaite, Huddersfield, West Yorkshire, HD7 | £ 180,000 | BUY | 7 / 10 | 0.23 KM |
Nearby Properties
| Address | Price | Distance |
|---|---|---|
| 97 Broad Oak | £ 299,884 | 0.00 KM |
| 85 Broad Oak | £ 278,000 | 0.00 KM |
| 77 Broad Oak | £ 270,495 | 0.00 KM |
| 81 Broad Oak | £ 150,000 | 0.00 KM |
| 56 Broad Oak | £ 258,000 | 0.00 KM |