Miles & Bird says ..
A charming Victorian end of terrace double-fronted cottage, boasting attractive 'London-stock' elevations, private walled rear garden, and the advantage of double gates at the back to provide off-street-parking for a small-to-medium sized car via Grove Road. In the same family ownership, thi...
Property Oracle says ..
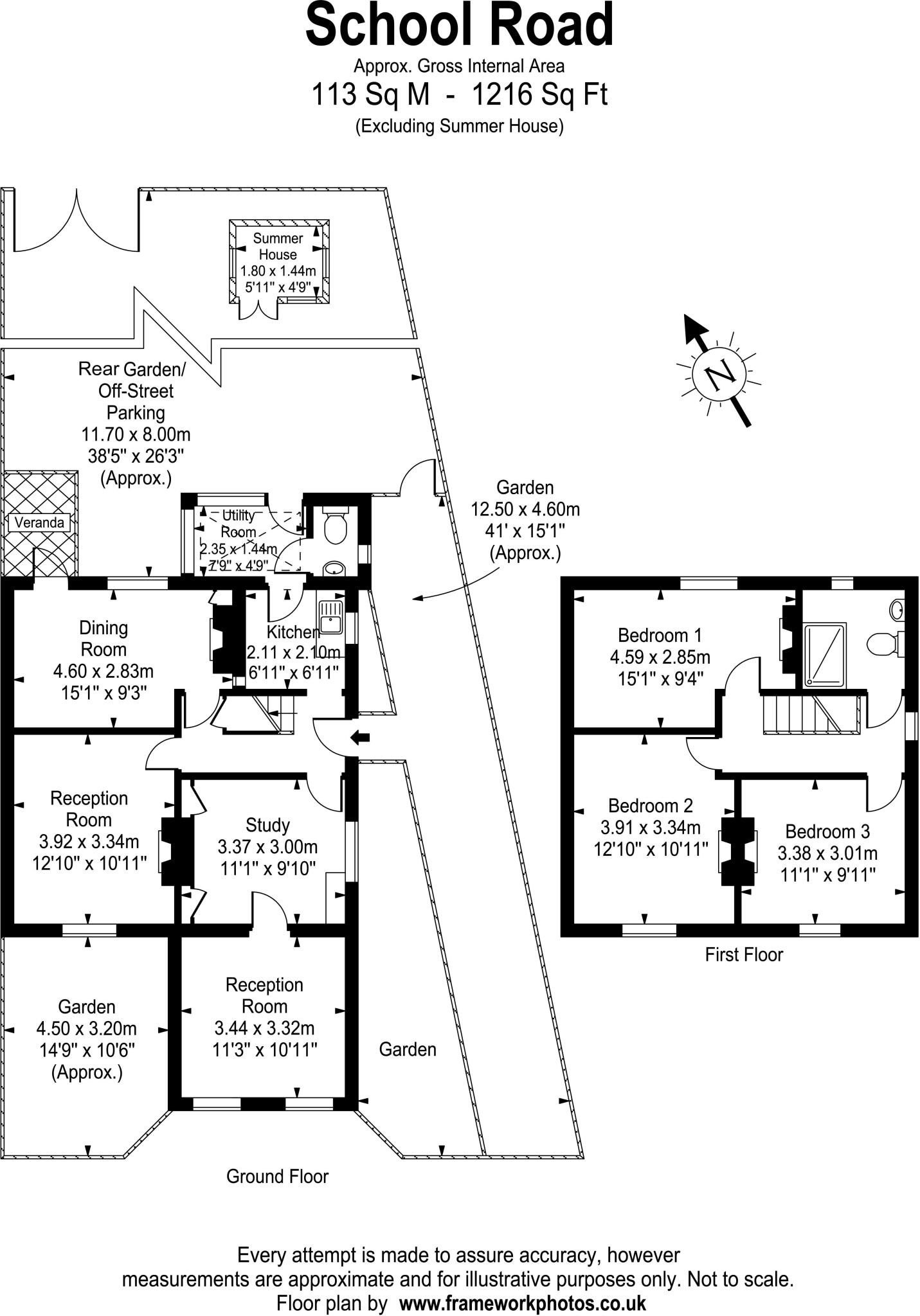
This property is a 3-bedroom, 1-bathroom terraced house located on School Road in East Molesey, Surrey. The list price is £779,000, and the property has a size of 1,216.32 sqft. The plot size is not specified. The property benefits from a good location, close to several highly-rated schools including The Orchard Infant School (Outstanding Ofsted rating) and St Lawrence Cofe Aided Junior School (Good Ofsted rating), both within a 0.5km radius. Several other good schools are also within reasonable proximity. The area also has convenient access to South Western Railway stations, with Hampton Court station being the closest at 1.21km. Based on the provided images, the property appears to be in generally good condition, although some modernisation may be desirable to enhance its overall appeal. The interior is presented in a clean and neutral style, with features such as fireplaces and original details retained. The kitchen and bathroom appear to be relatively modern, and the property benefits from a garden with a shed, adding to its appeal. The average house price in the area is £848,325, and the average price per sqft is £623. While the property’s price per sqft is not provided, the list price of £779,000 seems relatively reasonable compared to other similar properties in the area. Nearby comparable properties on School Road range from £128,000 to £625,000, indicating some price variation based on size and condition. The lack of plot size information for the subject property makes a definitive price comparison difficult.
Therefore, we give this property 7 / 10. *Disclaimer: This is our option and does constitute a recommendation or financial advice. Do your own research. *
- Price
- 7
- Condition
- 7
- Location
- 9
- Land
- 6
- Bedrooms
- 3
- Bathrooms
- 1
- Sqft (est)
- 1,216.32
The heatmap indicates the level of crime in the area. The color of the heatmap indicates the crime severity and recency.
Metrics Year-on-Year
- Average area value
- 736,658.00 £Decreased by 7.15 %
- Est sale value
- 880,615.68 £Increased by 11.56 %
- Average area rental value
- 2,100.00 £/moDecreased by 8.93 %
- Est letting value
- 2,432.64 £/moIncreased by 100.00 %
- Est rental Yield
- 3.42 %Decreased by 2.01 %
- Crime Rate
- 23.00 %Unchanged by 0.00 %
Agent Activity
Miles & Bird created the listing.
Nearby Schools
| Name | Type | Ofsted | Distance |
|---|---|---|---|
| The Orchard Infant School | Foundation School | Outstanding | 0.47 KM |
| St Lawrence Cofe Aided Junior School, East Molesey | Voluntary Aided School | Good | 0.48 KM |
| St Alban'S Catholic Primary School | Academy Converter | Good | 1.01 KM |
| St Paul'S Catholic Primary School, Thames Ditton | Voluntary Aided School | Good | 1.38 KM |
| Hampton Court House | Other Independent School | 1.51 KM |
Images
Nearby Streets
| Name | Average Price | Average Sqft | Distance |
|---|---|---|---|
| School Road | £ 573,429 | 0 | 0.00 KM |
| Grove Road | £ 1,087,500 | 0 | 0.00 KM |
| Manor Road | £ 1,525,000 | 0 | 0.00 KM |
| Kent Road | £ 1,166,650 | 0 | 0.00 KM |
| Church Road | £ 1,093,571 | 0 | 0.00 KM |
Nearby Transport
| Name | NLC | TLC | Distance |
|---|---|---|---|
| Hampton Court | 5561 | HMC | 1.21 KM |
| Thames Ditton | 5610 | THD | 2.00 KM |
| Esher | 5558 | ESH | 2.25 KM |
| Hampton | 5560 | HMP | 2.72 KM |
| Hinchley Wood | 5591 | HYW | 3.14 KM |
Nearby Listings
| Address | Price | Type | Score | Distance |
|---|---|---|---|---|
| School Road, East Molesey | £ 779,000 | BUY | 7 / 10 | 0.00 KM |
| School Road, East Molesey, Surrey, KT8 | £ 595,000 | BUY | 7 / 10 | 0.03 KM |
| Challoners Close, East Molesey, KT8 | £ 935,000 | BUY | 7 / 10 | 0.08 KM |
| Grove Road, East Molesey, KT8 | £ 895,000 | BUY | 7 / 10 | 0.10 KM |
| Challoners Close, East Molesey | £ 785,000 | BUY | 7 / 10 | 0.10 KM |
Nearby Properties
| Address | Price | Distance |
|---|---|---|
| 61 School Road | £ 565,000 | 0.01 KM |
| 26 School Road | £ 171,000 | 0.01 KM |
| 41 School Road | £ 495,000 | 0.01 KM |
| 25 School Road | £ 472,500 | 0.01 KM |
| 12 School Road | £ 455,000 | 0.01 KM |